
Rome, Metropolitan City of Rome Capital, Italy
Residenziale - Casa
Descrizione
ENGLISH:
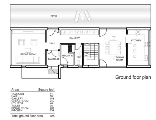
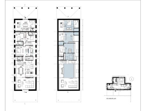
I need to have renderings and 3D top views of existing AutoCAD plants and furnishings, which you can find attached. The provided DWG floor plans and the project in PDF must not be modified but simply used to create 3D floor plans and renderings that will help me sell the farmhouse with the approved project more effectively and quickly.
As you can see, a 10x5m swimming pool can also be built in front of the house; you can design the outdoor furniture that best matches the style of the photos I’ve sent you. For inspiration regarding furnishings and the style I like, you can refer to the projects by Arch. Giuseppe Di Prima on the following webpage: https://www.archilovers.com/giuseppe-di-prima-115961/.
The DWG project also highlights the possibility of transforming the children's bedrooms, complete with their dedicated bathroom and mezzanine, into another mini-apartment. Please create a 3D hypothesis for this as well.
ITALIANO:
Ho bisogno di avere dei rendering e viste dall'alto 3D di piante e arredi Autocad già esistenti che trovate in allegato. Le piantine fornite in DWG e il progetto in PDF NON vanno cambiati ma semplicemente utilizzati per ottenere delle piante e dei rendering 3D che mi serviranno per vendere meglio e più velocemente il casale con il progetto approvato. Come potete vedere si potrà realizzare anche una piscina di 10x5mt fronte casa, su quello potete realizzare l'arredo di design che ritenete si sposi meglio con lo stile delle foto che vi ho inviato. Come spunto per gli arredi e lo stile che mi piace potete andare a vedere i progetti dell'Arch Di Prima alla pagina web https://www.archilovers.com/giuseppe-di-prima-115961/ .
Nel progetto in DWG è evidenziata anche l'ipotesi di trasformare le camere da letto dei ragazzi, con il bagno e soppalco a loro dedicato, in un'altro mini appartamento. Per favore fate anche di questo l'ipotesi in 3D.