
Barcelona, Spain
Residenziale - Casa
Descrizione
Objective - A vision for the refurbishment, interior and exterior design/decoration and small layout changes that we would like to achieve.
We need to repair and furnish the house.
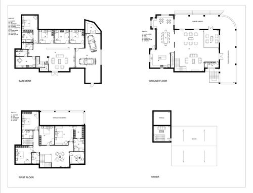
We would also like to remove the wall between the kitchen and dining room.
We would like to install a small bathroom on the ground floor as there is currently only available half way down stairs to basement area.
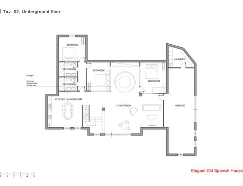
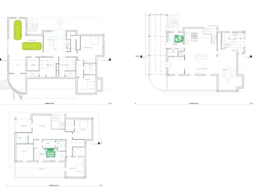
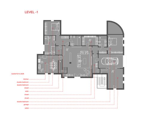
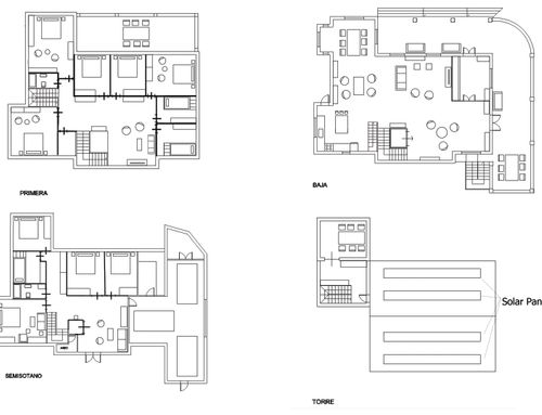
We would like to turn the basement area into a two/three/four bedroom flat, and are unsure about the best layout to achieve.
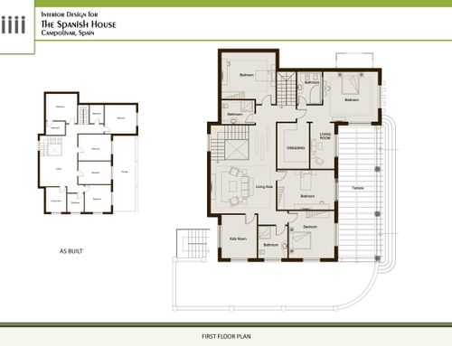
We would like to join two bedrooms on the first floor to make a larger master bedroom.
Some suggestions for renders:
Kitchen/dining room
Lounge
Front of house exterior
Basement living area
Google photos of house in current state with some notes https://photos.app.goo.gl/HgPAGy8orKYAdBtu7
Basement additional detail https://photos.app.goo.gl/nvPE1BpEs2Rs8p28A <- if we create flat downstairs it will be for visiting family and friends.
First floor additional detail https://photos.app.goo.gl/5VQ6JPeSBs2L2miq7
Google photos of house taken a few years ago https://photos.app.goo.gl/YLMZj4nj1GyMyACC7
Pinterest look boards (work in progress)
https://www.pinterest.co.uk/amca014/sp-hse/
https://www.pinterest.co.uk/amca014/furn-sp-hse/
Google photos of some kitchen and bathroom shop https://photos.app.goo.gl/GAzfz7apm3QkPwSt9
Personal detail:
My wife and I intend to use this house as a holiday home for ourselves and two young daughters (currently 1 and 7). Thinking about it now I guess it would be a good idea to put a fence around the swimming pool.
My wife's elderly parents live nearby and will stay with us when we are there... we may need to design ramp access within a few years and stairs are already a problem for them. If they use rooms on first floor I might have to put in one of those stair climbing machines.
My brother and sister have families (young kids again) and live far away so the idea regarding flat downstairs is for their use when they visit, and I expect they could stay several weeks at a time so would like them to be comfortable.
Thanks!