
23900 Lecco, Province of Lecco, Italy
Residenziale - Zona Giorno/Notte
Descrizione
ITA
Buongiorno a tutti, di seguito i principali requisiti del Progetto.
Obiettivo: creare un appartamento elegante, con personalità, più luminoso e con spazio sfruttato meglio. Cerco un “effetto wow” ! L'appartamento è per un uomo (single).
In dettaglio vorrei:
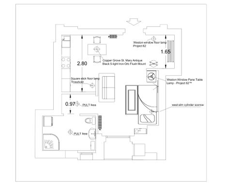
Migliorare l'illuminazione. C'è poca luce naturale. Anche l'illuminazione artificiale è pessima. Ripensare ai punti luce e magari all'uso di specchi (specchi non sono un requisito obbligatorio).
Mi piacerebbe qualche parete colorata e/o una parete con una carta da parati.
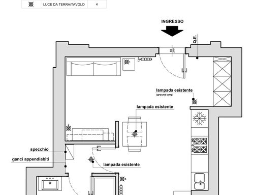
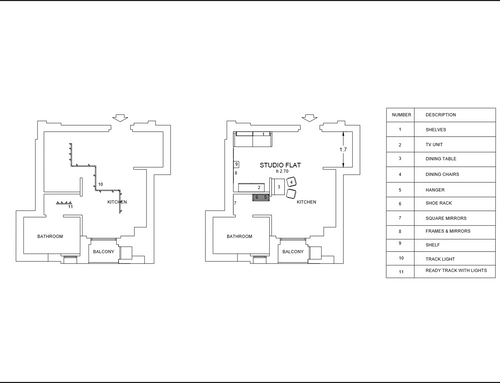
Arredamento. Serve aggiungere scarpiera, appendiabiti e una soluzione per il televisore (no cavi a vista) / porta panni (laundry bag) e in generale un po' di più di spazio per oggetti vari. Vorrei mantenere un'idea di ordine e pulizia dell'ambiente (sono ordinato :-))
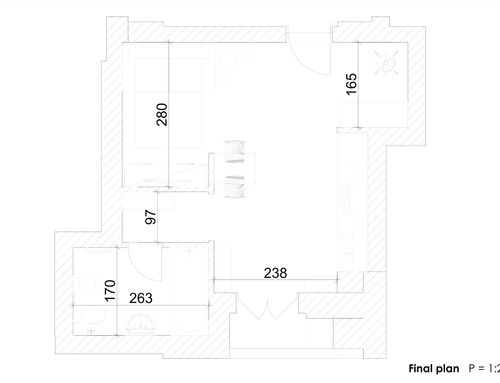
Se possibile vorrei mantenere tutti gli altri mobili già presenti (cucina, divano-letto, tavolo, sedie, armadio) ma sono aperto a variazioni e suggerimenti creativi !
Vorrei sfruttare meglio lo spazio dell' antibagno (magari per scarpiera e appendiabiti ?)
** Non vorrei abbattere o costruire muri **
Spero anche che vi divertiate nel lavorare su questo progetto.
Grazie in anticipo per le vostre proposte !
----
ENG
Good morning,
The main objective of the Project is to create an elegant flat, with its own “personality”, bright and where the space is well exploited. I'm also looking for the "wow effect"! The flat is for a single man.
In detail:
Improve illumination. There is not much natural light. Even artificial lighting is poor. Re-think the illumination please. Use of mirrors could be an option (it's not a mandatory requirement).
I'd like some colored walls as well and/or a wallpaper on one wall.
Furniture. Add a shoe rack, a coat hanger, a solution for the TV (non exposed cables please) and a laundry bag. I'm tidy. I also need some more room for my stuff.
If possible I would like to keep all my furniture (kitchen, sofa bed, table, chairs, wardrobe) but I'm open to variations and creative suggestions !
I would like a better use of the space in the room between the bathroom and the main room (shoe rack and coat hanger ?)
** I would like not to build up or tear down walls **
I Hope you enjoy working on this project.
Thank you in advance for your proposals !!!