🔥 CYBER MONDAY 24H: -60% su tutti i prezzi del sito! Solo fino a mezzanotte. Usa il codice CYBERMONDAY25 👉🏼
img

e luce fu'

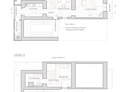
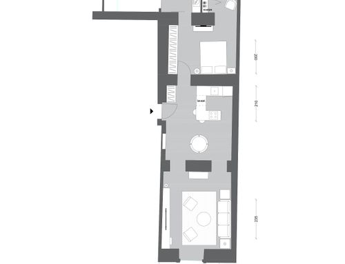
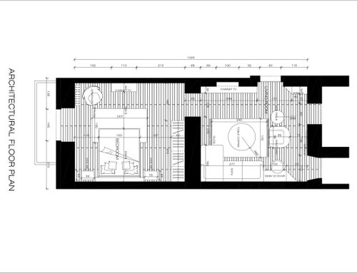
Bari, Metropolitan City of Bari, Italy

Residenziale - Zona Giorno/Notte

  • 1° Posto € 144
  • 2° Posto € 48
  • 3° Posto € 24
  • 4° Posto € 12
  • 5° Posto € 12