
52100 Arezzo, Province of Arezzo, Italy
Residenziale - Appartamento
Descrizione
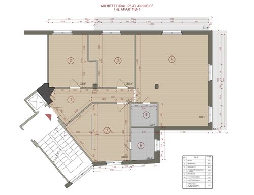
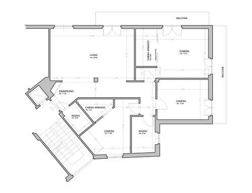
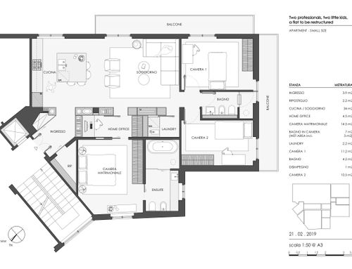
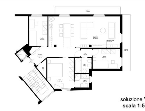
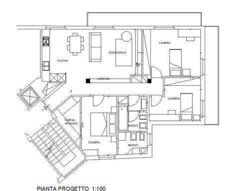
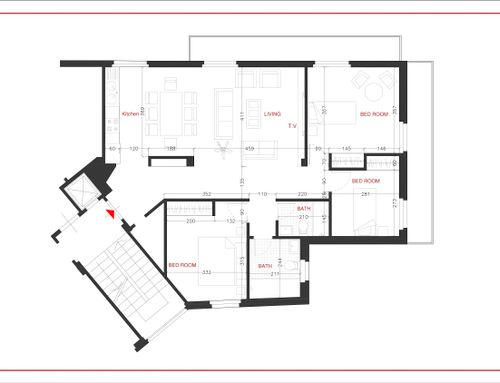
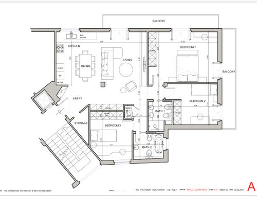
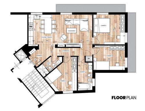
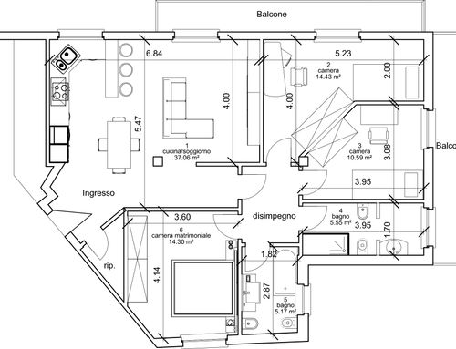
Ci piace lo stile moderno e minimale. vorremmo un ambiente comune cucina e soggiorno, tre camere e due bagni (uno con una vasca, anche piccola). l'appartamento è dotato di quattro grandi finestroni che vorremmo sfruttare per illuminare la casa di luce naturale il più possibile. ci piacerebbe mettere il lavello e parte della cucina sotto la prima finestra entrando nell'appartamento (non finestrone fino a terra). in tutta casa vorremmo coprire l'attuale graniglia con un parquet flottante.
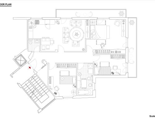
Non so se si vede dal file dwg (perchè io non lo visualizzo), ma c'è una colonna che non possiamo buttare giù, adesso è incorporata nel muro di sx (spalle all'ingresso). va trovato un modo per "giocare" con questa colonna integrandola nel disegno.
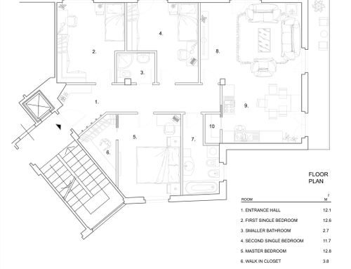
We like a modern and minimal style. We'd like an open space kitchen and living, three bedrooms (1 double, 2 singles), 2 bathroom (1 with a bathtub, even if smaller than usual). The flat has 4 big tall windows, some of which we d like to use to enlighten the living.
We d like part of the kitchen under the regular window when you get in on the left. We d like to put floating parquet in all flat.
I dont know if it is clear from the dwg file (as I dont visualize it): there is a column that we can not throw down, it is now embedded in the wall on the left (considering my shoulders looking at the entrance). we should find a way to "play" with this column by integrating it into the drawing.