
05022 Amelia, Province of Terni, Italy
Residenziale - Appartamento
Descrizione
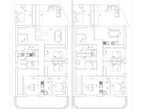
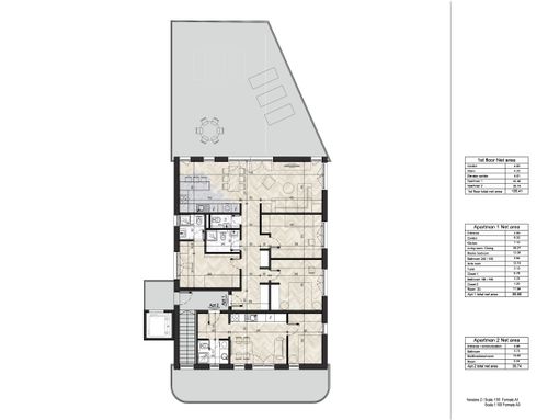
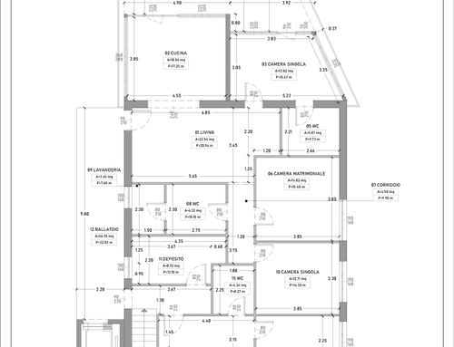
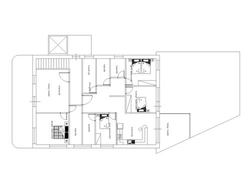
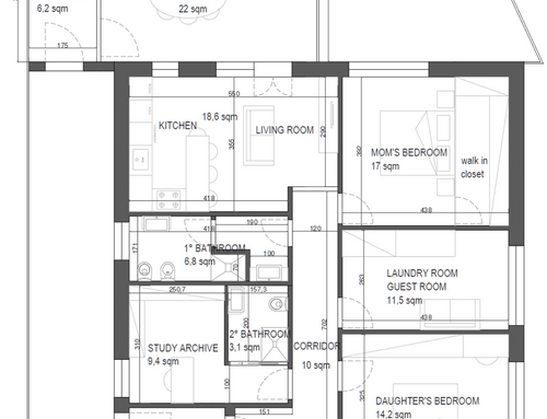
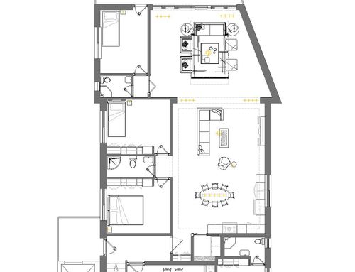
Da un grande appartamento anni 60 (piano primo con ascensore) vorrei ricavare 2 appartamenti. Il primo appartamento sarà la casa per la mia famiglia dove staremo io e due figli grandi (19 e 20 anni) e darà sul grande terrazzo, su questo vorrei in parte ricavare una veranda per ampliare la zona giorno + una camera indipendente con il suo bagno (per il figlio maschio). Il resto della casa dovrà prevedere cucina / soggiorno / bagno / lavanderia e due camere. La stanza n. 5 (vedi planimetria con note) è la meno luminosa e da sul terrazzo condiviso con i vicini potrebbe essere in parte utilizzata come archivio (per la mia attività) e bagno di servizio, per questo motivo non l ho presa in considerazione per la terza camera. Il secondo appartamento dovrà affacciarsi sul terrazzo piccolo e dovrà avere cucina / soggiorno / una camera / un bagno, al momento lo vorrei sfruttare per affitto breve a scopo turistico. Purtroppo non abbiamo una bella vista da nessuna angolazione, il terrazzo piccolo è verso nord/est, il grande sud/ovest. Per quanto alla copertura sul terrazzo grande mi piacerebbe capire se si potesse realizzare con un prefabbricato in legno e porre sul tetto un impianto fotovoltaico che possa alimentare tutto il piano abitato + il piano terra dove saranno dei locali commerciali (tra cui il mio ufficio). E' gradita la segnalazione per utilizzo di eventuali bonus fiscali. Se la realizzazione della copertura sul terrazzo fosse impossibile causa autorizzazioni o costi esagerati, mi limiterei a farne una più piccola per la zona giorno, in tal caso si dovranno valutare 2 bagni e 3 camere nell'appartamento grade. Ultima richiesta: il secondo appartamento sarà ristrutturato successivamente con più calma, attualmente c è il mio ufficio, quindi andrà comunque fisicamente separato ma il bagno dovrà essere strategicamente posizionato in modo tale da servire gli uffici per il momento ma poi sarà il bagno già utile per l'appartamento più piccolo.
ENG
From a large 60s apartment (first floor with lift) I would like to create 2 apartments. The first apartment will be the house for my family where I and two older children (19 and 20 years old) will stay and will overlook the large terrace, on this I would like to partially obtain a veranda to expand the living area + an independent bedroom with its bathroom (for the male child). The rest of the house will have a kitchen / living room / bathroom / laundry room and two bedrooms. The room n. 5 (see floor plan with notes) is the least bright and from the terrace shared with the neighbors it could be used in part as an archive (for my business) and a service bathroom, which is why I did not take it into consideration for the third bedroom. . The second apartment must overlook the small terrace and must have a kitchen / living room / a bedroom / a bathroom, at the moment I would like to use it for short rent for tourist purposes. Unfortunately we do not have a good view from any angle, the small terrace is towards the north / east, the large south / west. As for the roof on the large terrace, I would like to understand if it could be built with a prefabricated wooden structure and put a photovoltaic system on the roof that can power the entire inhabited floor + the ground floor where commercial premises (including my office) will be. Reporting for the use of any tax bonuses is welcome. If the realization of the roof on the terrace were impossible due to authorizations or exaggerated costs, I would limit myself to making a smaller one for the living area, in which case 2 bathrooms and 3 bedrooms in the grade apartment will have to be evaluated. Last request: the second apartment will be renovated later more calmly, currently there is my office, so it will still be physically separated but the bathroom will have to be strategically positioned in such a way as to serve the offices for the moment but then it will be the bathroom already useful for the smallest apartment.
SPA
De un piso grande de los años 60 (primera planta con ascensor) me gustaría crear 2 pisos. El primer departamento será el hogar de mi familia donde estaremos yo y dos niños mayores (19 y 20 años) y tendrá vista a la gran terraza, en este me gustaría obtener parcialmente una terraza para ampliar la sala de estar + un independiente dormitorio con su baño.(para el niño varón). El resto de la casa tendrá cocina/salón/baño/lavadero y dos dormitorios. La habitación n. 5 (ver plano con notas) es el menos luminoso y desde la terraza compartida con los vecinos se podría usar en parte como archivo (para mi negocio) y baño de servicio, por lo que no lo tomé en cuenta para la tercer dormitorio. . El segundo apartamento debe dar a la pequeña terraza y debe tener una cocina/sala de estar/un dormitorio/un baño, por el momento me gustaría utilizarlo para alquiler a corto plazo con fines turísticos. Desafortunadamente no tenemos una buena vista desde ningún ángulo, la terraza pequeña está hacia el norte/este, la grande hacia el sur/oeste. En cuanto a la azotea de la terraza grande, me gustaría saber si se podría hacer con una estructura de madera prefabricada y poner en la azotea un sistema fotovoltaico que pueda alimentar todo el piso habitado + la planta baja donde están los locales comerciales (incluida mi oficina). ) sera. Se agradece informar sobre el uso de cualquier bonificación fiscal. Si la realización del techo en la terraza fuera imposible por autorizaciones o costos exagerados, me limitaría a hacer uno más pequeño para el área de estar, en cuyo caso habrá que evaluar 2 baños y 3 dormitorios en el departamento de grado. Último pedido: el segundo apartamento se renovará más tarde con más tranquilidad, actualmente está mi oficina, por lo que aún estará separada físicamente, pero el baño tendrá que estar ubicado estratégicamente de tal manera que sirva a las oficinas por el momento, pero luego será el baño ya útil para el apartamento más pequeño.