
18038 Sanremo, Province of Imperia, Italy
Residenziale - Appartamento
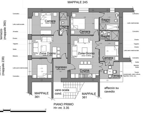
Descrizione
ENG VERS:
Hi everyone,
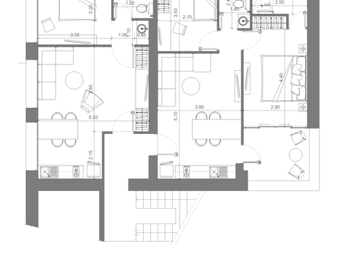
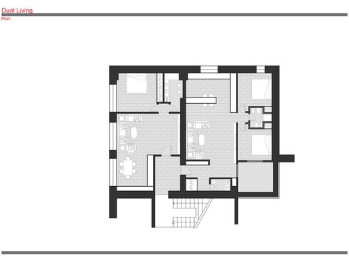
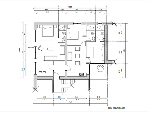
I have an apartment in Sanremo to renovate located on the first floor of a historic and central apartment.
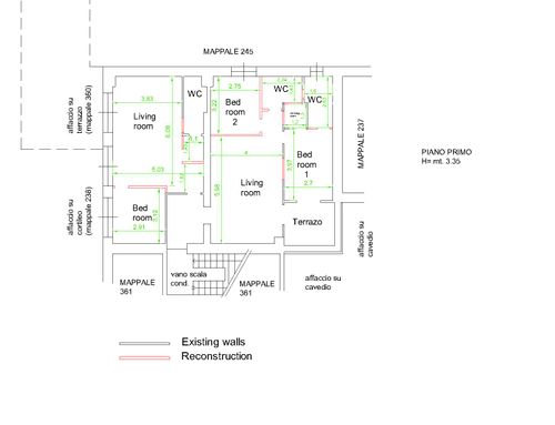
It consists of a main entrance, there are two entrances to access two mini apartments.
One of 85 sq m and the other of 65 sq m.
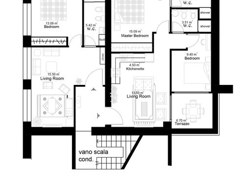
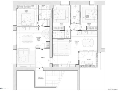
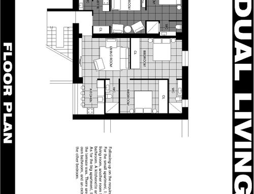
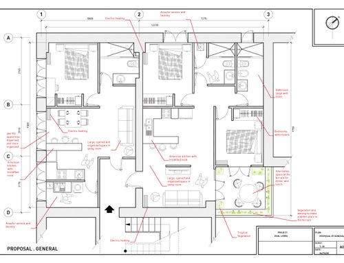
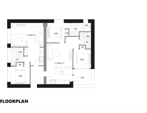
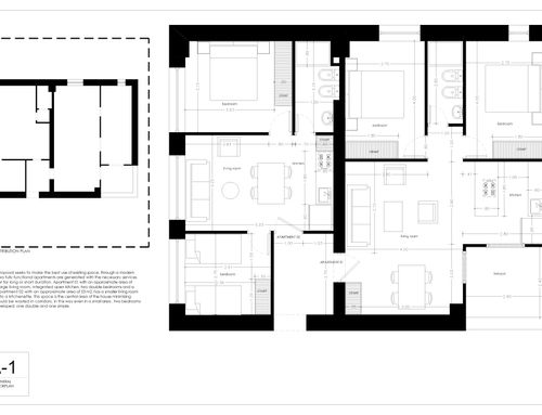
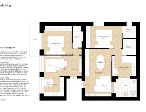
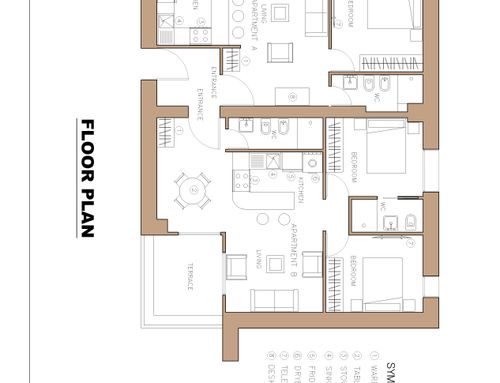
My goal is to receive an optimal and comfortable interior division from the contest. In the 65sqm apartment there must be a bedroom and a large living room with a bathroom.
In the 85sqm apartment I would be interested in the hypothesis of two rooms and a living room with kitchenette with two bathrooms if possible (one bigger and one smaller)
The apartments will be intended for short-term rent.
The quality of the home must be medium to high.
SPA VERS:
Buenos días,
Tengo un apartamento para renovar en San Remo, ubicado en el primer piso de un apartamento histórico y céntrico.
Se compone de una entrada principal, hay dos entradas para acceder a dos mini apartamentos.
Uno de 85 metros cuadrados y el otro de 65 metros cuadrados.
Mi objetivo es recibir del concurso, una división interior óptima y cómoda. En el apartamento de 65 metros cuadrados debe haber un dormitorio y una gran sala de estar con baño.
En el apartamento de 85 m2 me interesaría la hipótesis de dos habitaciones y una sala de estar con cocina americana con dos baños si es posible (uno más grande y otro más pequeño)
Los apartamentos estarán destinados a alquiler a corto plazo.
La calidad del hogar debe ser de media-alta.
ITA VERS:
Buongiorno,
Ho un appartamento a Sanremo da ristrutturare sito al primo piano di un appartamento storico e centrale.
E' composto da un'entrata principale, ci sono due ingressi per accedere a due mini appartamenti.
Uno di 85 mq e l'altro di 65mq.
Il mio obiettivo è ricevere dal contest una divisione degli interni ottimale e confortevole. Nell'appartamento di 65mq deve esserci una camera ed un living ampio con un bagno.
Nell'appartamento di 85mq mi interesserebbe l'ipotesi di due stanze ed un soggiorno con angolo cottura con due bagni se possibile (uno più grande ed uno più piccolo)
Gli appartamenti saranno destinati a fitto breve.
La qualità della abitazione deve essere medio alta.
Virtual tour.
https://youtu.be/fRklFrPg_eI