
Milan, Metropolitan City of Milan, Italy
Residenziale - Appartamento
Descrizione
ITA
Il contest prevede la ristrutturazione della nostra casa.
Ai concorrenti è richiesto di progettare la ristrutturazione dell’appartamento a Milano (in condominio) in cui già viviamo, rendendolo funzionale alle nostre esigenze. La nostra famiglia è composta da una coppia under 40 e da due bambine piccole (4 anni e 4 mesi).
Entrambi lavoriamo full time, quindi spesso siamo fuori tutto il giorno. Per questo motivo, vorremmo valorizzare gli spazi della zona giorno in cui passiamo la maggior parte del tempo insieme.
Riportiamo di seguito le nostre esigenze.
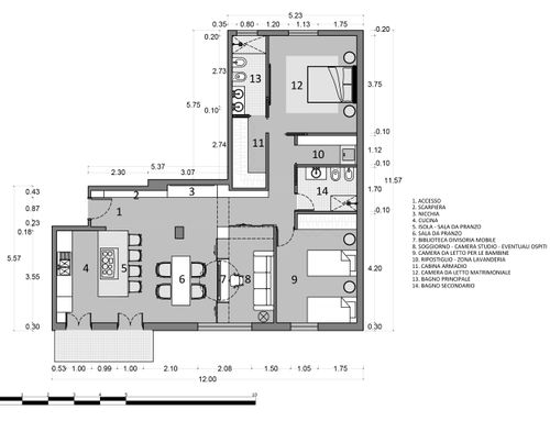
- Cucina comoda e funzionale: quando siamo a casa, passiamo molto tempo in cucina, soprattutto a cena. Per noi la preparazione dei pasti è un momento di scambio e di coinvolgimento importante.
La colazione durante la settimana invece è solitamente veloce ed è un momento di grande frenesia prima di iniziare la giornata.
Pranziamo a casa solo durante il weekend.
- Zona living ampia e accogliente: insieme alla cucina, è il posto in cui passiamo la maggior parte del tempo, spesso tutti insieme sul divano. E' fondamentale che questa zona sia molto luminosa.
Siamo indecisi se creare un ambiente unico, senza separazione tra cucina e zona living oppure se dividere i due ambienti.
Nella prima ipotesi (ambiente unico) ci piacerebbe avere una cucina a penisola con i fuochi e angolo colazione per 4 persone.
Nella seconda ipotesi (ambienti divisi) vorremmo che i due ambienti siano collegati al meglio (ad esempio con una grande porta scorrevole o vetrata).
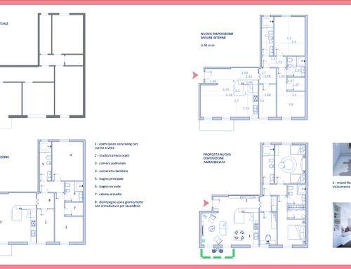
È possibile spostare la parete A indicata in planimetria, dividendo a metà la finestra dell’attuale studio.
Lasciamo ai concorrenti la massima libertà creativa rispetto a questa proposta: verranno valutate positivamente soluzioni innovative che rispettino al massimo le nostre esigenze.
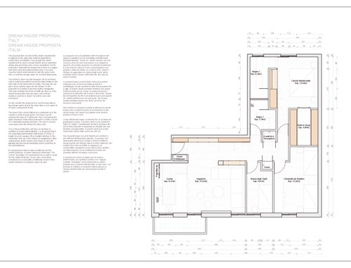
Di questa area vorremmo ricevere il render in 3D.
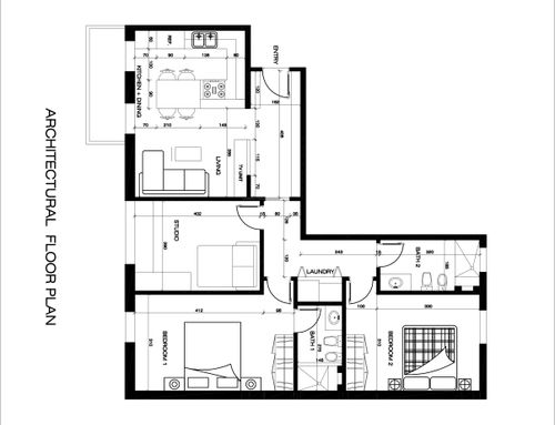
- Corridoio: vorremmo eliminare l’attuale corridoio. Non è possibile eliminare la colonna indicata in planimetria e nelle foto per restrizioni condominiali, per cui chiediamo soluzioni che la valorizzino. Nella ‘nicchia’ presente in corridoio ci piacerebbe creare una libreria/zona foto.
- Camere da letto: vorremmo 3 camere da letto, una matrimoniale, una camera per le bambine (la stanza più grande) e una terza camera (studio) per eventuali ospiti.
La camera da letto matrimoniale dovrà contenere una cabina armadio.
La camera ‘studio’ può essere piccola e contenere solo un divano-letto da usare all’occorrenza.
- Bagni: attualmente esiste un solo bagno, vorremmo crearne due. Ciascun bagno dovrà essere corredato dai sanitari e doccia (no vasca da bagno). Se possibile, vorremmo che uno dei due bagni sia accessibile dalla camera da letto matrimoniale.
- Ripostiglio/Zona Lavanderia: vorremmo un piccolo ambiente da utilizzare come zona lavanderia (con lavatrice e asciugatrice in colonna) e come ripostiglio per deposito di piccoli oggetti.
Ulteriori indicazioni:
- Scarpiera all’ingresso per poter togliere subito le scarpe prima di entrare in casa;
- Parquet in tutta la casa (da valutare se anche in cucina e bagno);
- Condizionatori nelle 3 camere da letto e in cucina/zona living;
- Scaldabagno, attualmente presente in cucina da spostare in uno dei due bagni o nel ripostiglio;
- Muri portanti: solo quelli perimetrali e la colonna indicata in planimetria;
- Arredamento moderno e minimal (si allegano foto di ispirazione).
Verranno valutate positivamente le idee che risponderanno al meglio alle nostre esigenze, con soluzioni creative e innovative.
________
ENG
The contest involves the renovation of our home.
Competitors are asked to plan the renovation of the apartment in Milan (in a condominium) in which we already live, making it functional to our needs. Our family consists of mum, dad and two little girls (4 years and 4 months).
We both work full time, so we are often out all day. For this reason, we would like to enhance the spaces of the living area where we spend most of the time together.
Our needs are listed below.
- Comfortable and functional kitchen: when we are at home, we spend a lot of time in the kitchen, especially at dinner. For us, the preparation of meals is an important moment of exchange and involvement.
Breakfast during the week, on the other hand, is usually fast and is a moment of great frenzy before starting the day.
- Large and welcoming living area: together with the kitchen, it is the place where we spend most of the time, often all together on the sofa.
We are undecided whether to create a single environment, without separation between the kitchen and the living area or whether to divide the two environments.
In the first hypothesis (single room) we would like to have a peninsula kitchen with burners and a breakfast corner for 4 people.
In the second hypothesis (divided rooms) we would like the two rooms to be connected in the best possible way (for example with a large sliding or glass door).
It is possible to move wall A indicated in the plan, dividing the window of the current studio in half.
We leave the competitors maximum creative freedom with respect to this proposal: innovative solutions will be positively evaluated that fully respect our needs.
We would like to receive the 3D render of this area.
- Corridor: we would like to eliminate the current corridor. It is not possible to delete the column indicated in the plan and in the photos due to condominium restrictions, so we ask for solutions that enhance it. In the present 'niche' we would like to create a library / photo area.
- Bedrooms: we would like 3 bedrooms: one for us parents, one (the largest room) for the girls and a third room (study) for any guests.
The bedroom of us parents must contain a walk-in closet.
The 'study' room can be small and contain only a sofa bed to be used if necessary.
- Bathrooms: there is currently only one bathroom, we would like to create two. Each bathroom must be equipped with sanitary fittings and shower (no bathtub). If possible, we would like one of the two bathrooms to be accessible from the parents' bedroom.
- Closet / Laundry Area: we would like a small room to be used as a laundry area (with washing machine and dryer in the column) and a storage room for storing small items.
Further information:
- Shoe cabinet at the entrance to be able to immediately remove your shoes before entering the house;
- Parquet throughout the house (to be evaluated if also in the kitchen and bathroom);
- Air conditioners in the 3 bedrooms and in the kitchen / living area;
- Water heater, currently present in the kitchen to be moved to one of the two bathrooms or to the closet;
- Load-bearing walls: only the perimeter walls and the column indicated in the plan;
- Modern and minimal furniture (inspirational photos are attached).
The ideas that best meet our needs will be positively evaluated.
_____
SPA
El concurso implica la reforma de nuestra vivienda.
Se pide a los competidores que planifiquen la renovación del apartamento en Milán (en un condominio) en el que ya vivimos, haciéndolo funcional a nuestras necesidades. Nuestra familia está formada por mamá, papá y dos niñas (4 años y 4 meses).
Ambos trabajamos a tiempo completo, por lo que a menudo estamos fuera todo el día. Por este motivo, nos gustaría potenciar los espacios de la zona de estar donde pasamos la mayor parte del tiempo juntos.
Nuestras necesidades se enumeran a continuación.
- Cocina cómoda y funcional: cuando estamos en casa pasamos mucho tiempo en la cocina, sobre todo en la cena. Para nosotros, la preparación de las comidas es un momento importante de intercambio e implicación.
El desayuno durante la semana, en cambio, suele ser rápido y es un momento de gran frenesí antes de comenzar el día.
- Salón amplio y acogedor: junto con la cocina, es el lugar donde pasamos la mayor parte del tiempo, muchas veces todos juntos en el sofá.
Estamos indecisos entre crear un ambiente único, sin separación entre la cocina y la sala de estar o si dividir los dos ambientes.
En la primera hipótesis (habitación individual) nos gustaría tener una cocina tipo península con quemadores y un rincón de desayuno para 4 personas.
En la segunda hipótesis (habitaciones divididas) nos gustaría que las dos habitaciones estuvieran conectadas de la mejor manera posible (por ejemplo, con una gran puerta corredera o de vidrio).
Es posible mover la pared A indicada en el plano, dividiendo la ventana del estudio actual por la mitad.
Dejamos a los competidores la máxima libertad creativa con respecto a esta propuesta: se evaluarán positivamente soluciones innovadoras que respeten plenamente nuestras necesidades.
Nos gustaría recibir el render 3D de esta área.
- Corredor: nos gustaría eliminar el corredor actual. No es posible eliminar la columna indicada en el plano y en las fotos debido a restricciones de condominio, por lo que pedimos soluciones que la mejoren. En el 'nicho' actual nos gustaría crear una biblioteca / área de fotos.
- Dormitorios: nos gustaría 3 dormitorios: uno para los padres, uno (la habitación más grande) para las niñas y una tercera habitación (estudio) para los invitados.
El dormitorio de los padres debe tener un vestidor.
La sala de 'estudio' puede ser pequeña y contener solo un sofá cama para ser utilizado si es necesario.
- Baños: actualmente solo hay un baño, nos gustaría crear dos. Cada baño debe estar equipado con sanitarios y ducha (sin bañera). Si es posible, nos gustaría que uno de los dos baños sea accesible desde el dormitorio de los padres.
- Área de Closet / Lavandería: nos gustaría una pequeña habitación para ser utilizada como área de lavandería (con lavadora y secadora en la columna) y un cuarto de almacenamiento para guardar artículos pequeños.
Más información:
- Zapatero en la entrada para poder quitarse los zapatos inmediatamente antes de entrar a la casa;
- Parquet en toda la casa (a evaluar si también en la cocina y el baño);
- Aires acondicionados en los 3 dormitorios y en la cocina / sala de estar;
- Calentador de agua, actualmente presente en la cocina para ser trasladado a uno de los dos baños o al armario;
- Muros de carga: solo los muros perimetrales y la columna indicada en el plano;
- Mobiliario moderno y minimalista (se adjuntan fotos inspiradoras).
Se evaluarán positivamente las ideas que mejor se adapten a nuestras necesidades.