
Sèn Jan di Fassa, Autonomous Province of Trento, Italy
Residenziale - Loft
Descrizione
***** ENGLISH ****
The hayloft is located in front of to a newly renovated apartment in a small but characteristic mountain village in the middle of the Dolomites.
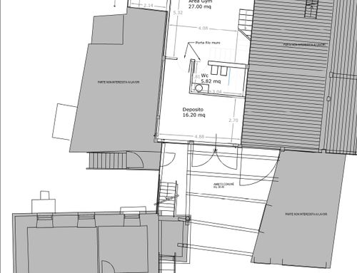
Currently it is in its raw state, it is divided into two floors with a total area of 100m2. The idea would be to use it initially as an annex to the apartment, with a small storage area near the entrance, two bathrooms (one on each floor), a small sauna, a gym area and a cinema area, but with a layout that will allow in the future to transform it into an apartment with the storage area, the two bathrooms, a small kitchen, two bedrooms.
No thermal power plants are to be planned as the boiler is located in the adjacent apartment and water, electricity and gas connections have been provided.
The roof will be redone but the shape and volumes must remain the current ones.
The preferred style is typical of the mountains, with all the walls, ceilings and floors in rustic wood.
**** ITALIANO ****
Il fienile è adiacente ad un appartamento appena ristrutturato in un piccolo ma caratteristico paese di montagna nel mezzo delle Dolomiti.
Attualmente si trova allo stato grezzo, è diviso in due piani con una superficie complessiva di 100mq. L’idea sarebbe di utilizzarlo inizialmente come dependance dell’appartamento, con una zona deposito vicina all’ingresso, due bagni (uno per piano), una piccola sauna, una zona gym e una zona cinema, ma con una impostazione che permetta nel futuro di trasformarlo in un appartamento con il piccolo deposito in entrata, una piccola cucina, due stanze e due bagni.
Non sono da prevedere centrali termiche in quanto la caldaia si trova nell’appartamento adiacente e sono stati previsti gli allacci di acqua, luce e gas.
Il tetto verrà rifatto ma la forma e i volumi devono rimanere quelli attuali.
Lo stile preferito è quello tipico di montagna, con tutte le pareti, i soffitti e i pavimenti in legno rustico.
****ESPANOL****
El granero se encuentra junto a un piso recién renovado en un pequeño pero característico pueblo de montaña en medio de las Dolomitas.
Actualmente se encuentra en estado inacabado, y está dividido en dos plantas con una superficie total de 100m2. La idea sería utilizarlo inicialmente como un anexo al piso, con una zona de almacenaje cerca de la entrada, dos baños (uno en cada planta), una pequeña sauna, una zona de gimnasio y una zona de cine, pero con una distribución que permita transformarlo en el futuro en un piso con la pequeña zona de almacenaje en la entrada, una pequeña cocina, dos habitaciones y dos baños.
No hay calefacción central ya que la caldera se encuentra en el piso adyacente y están previstas las conexiones de agua, electricidad y gas.
El tejado se rehará, pero la forma y los volúmenes deben seguir siendo los actuales.
El estilo preferido es el típico de montaña, con todas las paredes, techos y suelos de madera rústica.