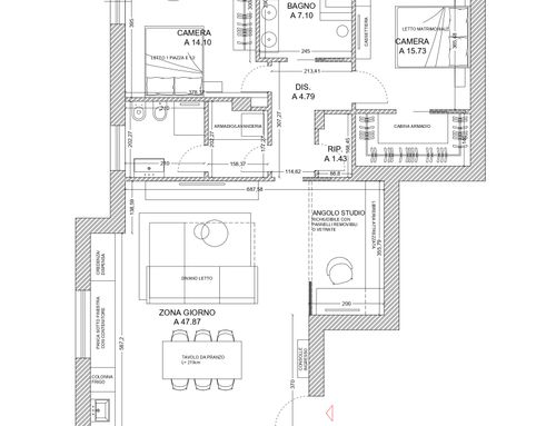
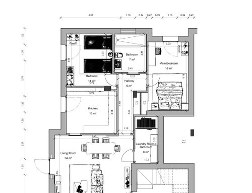
Descrizione
EN:
The interior layout of the apartment (excluding some windows) is adjustable; new ideas and adjustments are welcome.
Basicq modern style. Kitchen preferably in a country style and flooring in either matte light parquet or light resin. Country or industrial details at the architect's discretion. The colors are white or generally light, without strong contrasts.
ES:
La distribución interior del apartamento (excluyendo ventanas) es ajustable; se aceptan nuevas ideas y ajustes. Estilo moderno básico. La cocina preferiblemente en estilo rústico y el suelo en parquet mate claro o resina clara. Detalles rústicos o industriales a discreción del arquitecto. Los colores son blancos o generalmente claros, sin contrastes fuertes.