
Novara, NO, Italia
Residenziale - Villa
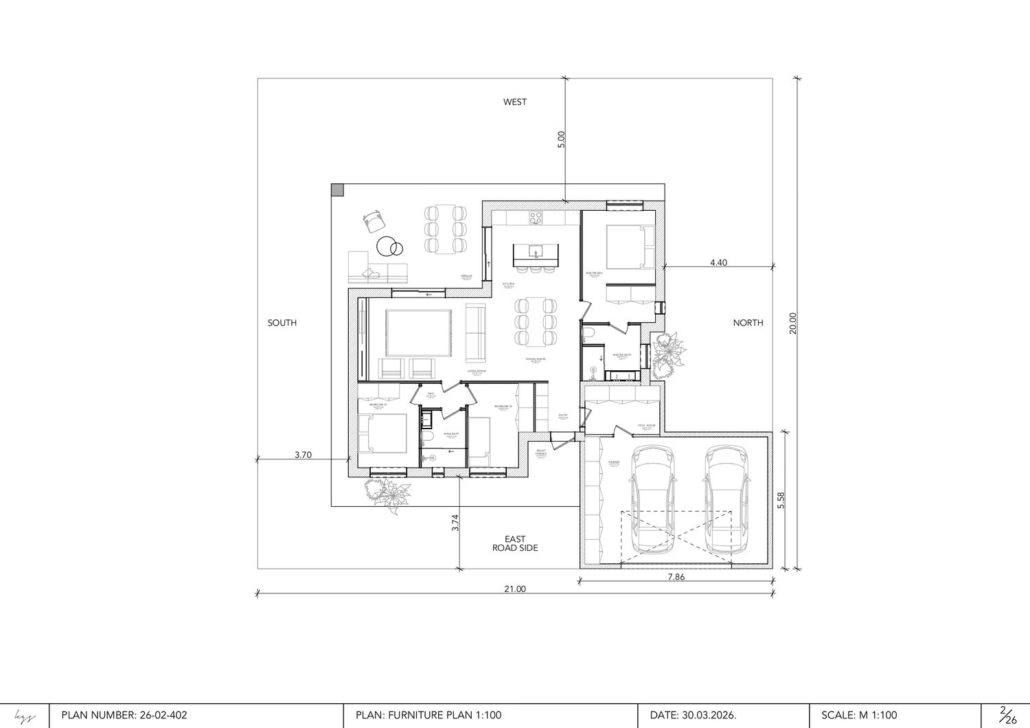
The villa is a single-storey residence on a 21 × 20 m plot (420 m²). The commercial floor area is 110 m², with the garage, technical room, and terraces excluded from that figure.
The layout is divided into two main zones. The living area consists of an open-plan kitchen, dining room, and living room positioned along the south and west sides of the house, with direct access to a 26 m² terrace at the rear. The sleeping area contains two bedrooms with a shared bathroom and a master bedroom with its own ensuite, located on the opposite side of the plan for privacy.
The double garage (approximately 39 m²) and the technical room (6 m²) are attached to the east side of the house and accessible from inside through an internal door. The main entrance faces the road on the east, with a covered front terrace of about 15 m².
The building is set back 3.7-5 metres from the property boundaries. Orientation places the main living spaces toward the south and west to benefit from natural light, while service areas and the garage occupy the north and east sides.
The exterior is contemporary in style — flat roofs at staggered heights, light-rendered walls, and large glazed openings on the garden side. The garage is marked by a dark-finished door on the front elevation.