Vai al contenuto
🔥 CYBER MONDAY 24H: -60% su tutti i prezzi! Fino a mezzanotte. Codice CYBERMONDAY25 👉🏼
APPROFITTA ORA
🔥 CYBER MONDAY 24H: -60% su tutti i prezzi del sito! Solo fino a mezzanotte. Usa il codice CYBERMONDAY25 👉🏼
APPROFITTA ORA
Come Funziona
Progetti
Designer
Prezzi
Corsi
News
Come Funziona
Progetti
Designer
Prezzi
Corsi
News
Login
Login
IT
EN
IT
EN
Lancia un Progetto
home
/
concorsi
/
from one to two! an house for rent to students/tourists
Torna ai progetti
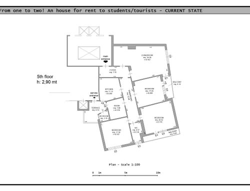
from one to two! an house for rent to students/tourists
Bari, Italy
Residenziale - split
1° Posto
€ 360
2° Posto
€ 120
3° Posto
€ 60
4° Posto
€ 30
5° Posto
€ 30
Progetti Ricevuti
Descrizione
Risorse
1° andrea gamberini
8.2
1°
2° andrea dessì
8
2°
3° isabella di simone
7.6
3°
4° giuseppe francavilla
7.4
4°
5° daniele ballardini
7.2
5°
6° paola boati
7
7° david molina
7
8° predrag milosevic
6.2
9° stoean ana
6
10° deluser-694263c76a2f14.45572875 deluser-694263c76a2f14.45572875
5.6
11° jelena popovic
5.6
Descrizione
Risorse
Immagini (41)
Riferimenti (5)
Come Funziona
Progetti
Designer
Prezzi
Corsi
News
IT
EN
IT
EN
launch a project
Come Funziona
Progetti
Designer
Prezzi
Corsi
News
IT
EN
IT
EN
lancia un progetto