🔥 CYBER MONDAY 24H: -60% su tutti i prezzi del sito! Solo fino a mezzanotte. Usa il codice CYBERMONDAY25 👉🏼
home / concorsi / from a warehouse to an open space
img

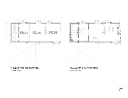
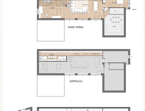
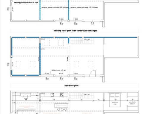
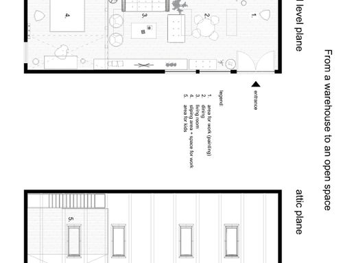
from a warehouse to an open space

Bologna, Metropolitan City of Bologna, Italy

Residenziale - Loft

  • 1° Posto € 252
  • 2° Posto € 84
  • 3° Posto € 42
  • 4° Posto € 21
  • 5° Posto € 21