
08100 Nuoro, Province of Nuoro, Italy
Residenziale - Appartamento
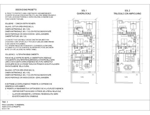
Descrizione
ENG:
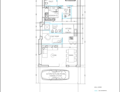
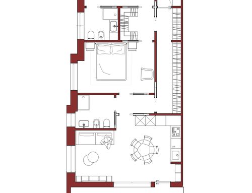
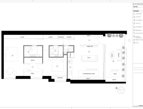
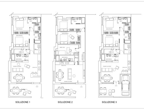
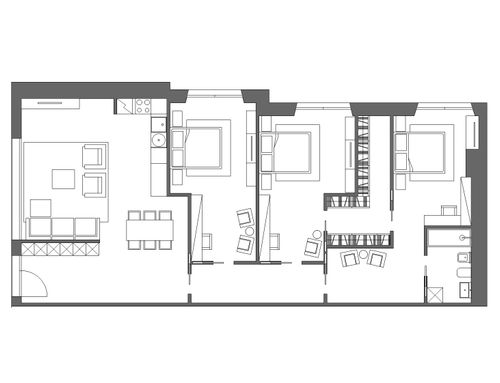
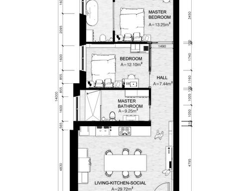
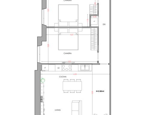
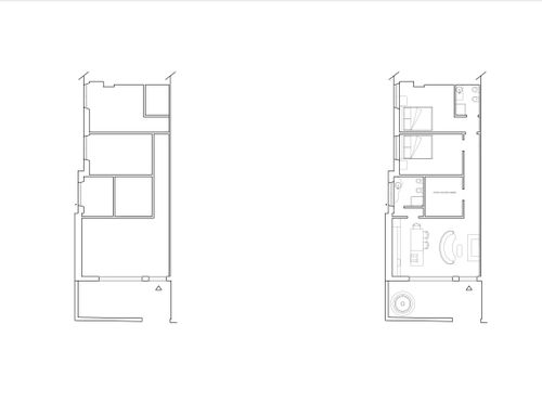
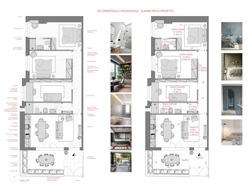
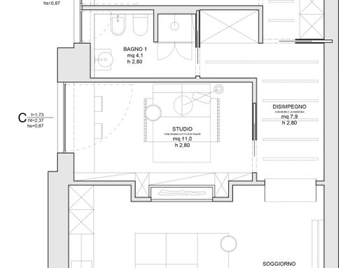
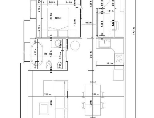
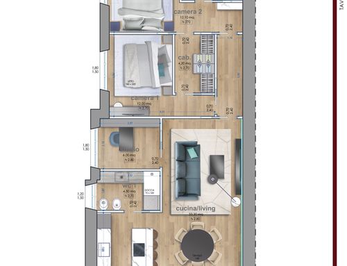
A commercial space recently converted for residential use requires internal and external redesign. The request is to create: 2 double bedrooms, one with an ensuite bathroom, a room to be used as a study or small bedroom (optional), a master bathroom, and a dining/living area.
The two double bedrooms may share a walk-in closet with dual access, reclaiming the interior space that would otherwise be used for wardrobes. Pocket doors are preferred over swinging doors. An additional window can be opened on the windowed side.
ESP:
Un local comercial recientemente convertido para uso residencial requiere una reconfiguración interna y externa. Se solicita crear: 2 habitaciones dobles, una con baño en suite, una habitación destinada a estudio o habitación pequeña (opcional), un baño principal y una zona de comedor/sala de estar.
Las dos habitaciones dobles pueden compartir un vestidor con acceso doble, recuperando el espacio interior que de lo contrario se destinaría a armarios. Se prefieren puertas correderas en lugar de puertas batientes. Se puede abrir una ventana adicional en el lado con ventanas.
ITA:
Un locale commerciale appena convertito ad uso abitativo, necessita di riprogettazione interna e esterna, si richiede di ricavare: 2 camere matrimoniali di cui una con bagno in camera, una camera da destinarsi a studio o cameretta (opzionale), un bagno padronale e una zona pranzo/soggiorno.
Le due camere matrimoniali potranno avere una cabina armadio in comune con doppio accesso recuperando lo spazio interno altrimenti destinato a armadi/guardaroba.
Preferibili porte scrigno a quelle a battente.
Sul lato finestrato è possibile aprire un ulteriore finestra.