
Città della Pieve, Province of Perugia, Italy
Residenziale - Stanza
Progetto per una piccola cucina lineare in muratura, con bancone contenitore/snack. Sportelli e cassetti in legno, da realizzare su misura; cassetti di varie dimensioni, con ampia capienza.
Il piano di lavoro è posto a 90 cm da terra per facilitare la comodità ergonomica; per poter aprire la finestra senza interferenze, e sfruttare lo spazio di davanzale come ripiano, si è pensato quindi di rialzare lo stesso a livello del piano cucina, sostituendo l'infisso con uno a parte inferiore fissa e superiore apribile (apertura ad anta+vasistas).
La proposta principale (variante 1) è quella che consente di avere cappa e lavello il più vicini possibile all'attacco della canna fumaria e a quello di adduzioni e scarichi.
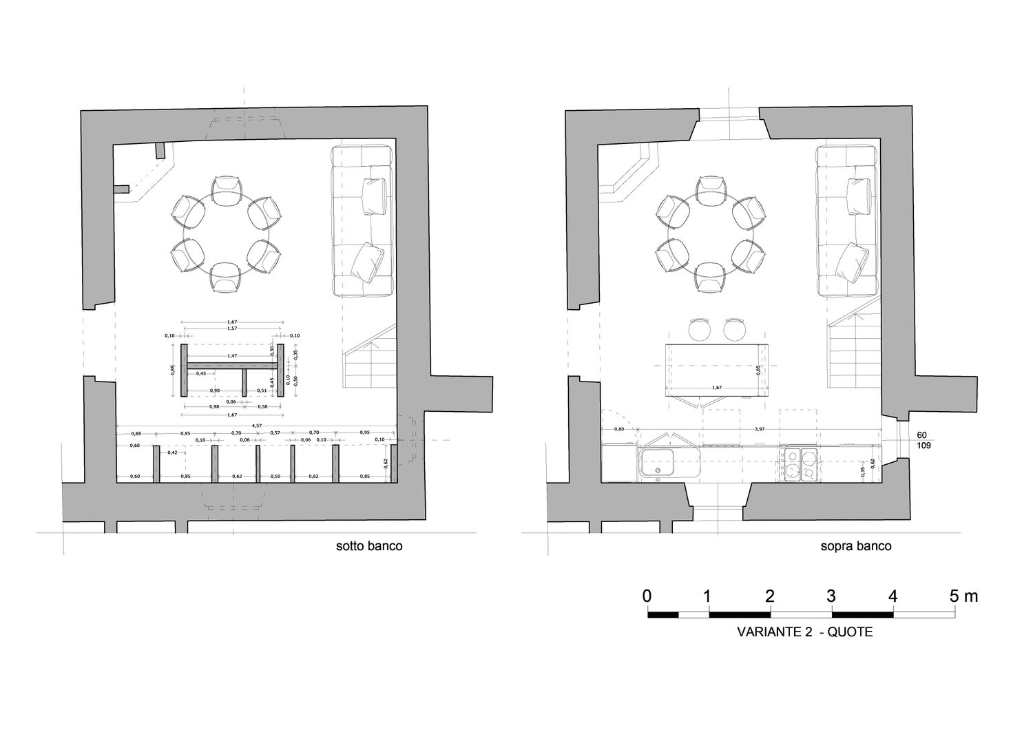
Realizzato anche lo schema per una seconda proposta alternativa, in cui vengono separate le aree caldo (forno, piano cottura) dalle aree freddo (frigorifero, lavello).