
Seregno, MB, Italia
Residenziale - Appartamento
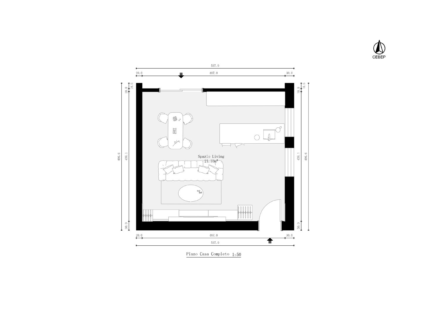
La proposta ottimizza lo spazio di 4,5 × 4,9 m creando una zona giorno equilibrata, funzionale e visivamente aperta.
La cucina è organizzata in linea con cappa integrata e non a vista, lasciando la parete completamente pulita ed elegante. Di fronte è posizionato un tavolo per 4 persone, facilmente fruibile e con passaggi comodi su tutti i lati.
L’area relax include un divano da 4 posti rivolto verso la parete TV, garantendo una corretta distanza visiva. All’ingresso è inserito un porta abiti discreto e comodo per l’uso quotidiano.
Il layout assicura percorsi fluidi, ottima fruibilità e una chiara distinzione delle funzioni, mantenendo un ambiente moderno, armonioso e pratico.