
30020 Fossalta di Piave, Metropolitan City of Venice, Italy
Residenziale - Zona Giorno/Notte
Descrizione
ENG
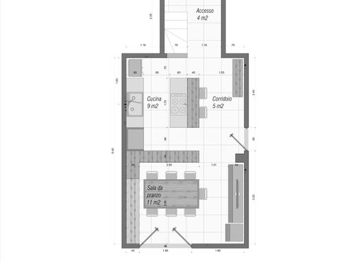
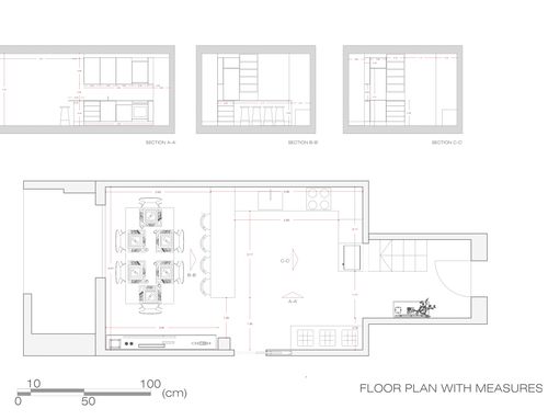
Kitchen and dining zone; modern white style with wooden details and, if it si possible, a small peninsula for snack/breakfast. In dining zone there will be a wooden table for 6 or 8 persons and a small but comfortable seat (the sofa is upstairs). A led TV is needed. Two points for lights are placed in the middle of the room.
SPA
Cocina y comedor; estilo blanco moderno con detalles de madera y, de ser posible, una pequeña península para merienda/desayuno.
En el comedor habrá una mesa de madera para 6 u 8 personas y y un asiento pequeño pero cómodo (el sofá se encuentra arriba). Una TV led es necesaria. Dos puntos para las luces están colocados en el centro de la habitación.
ITA
Ambiente che preveda cucina moderna, ci piacerebbe con piccola penisola snack/breakfast, bianca lucida con particolari in legno che richiamino il tavolo da pranzo in legno da 6 o 8 persone. Ci piacerebbe ricavare inoltre una piccola seduta comoda, ma allo stesso tempo di design, che sostituisse il divano (posto al piano superiore). Nell'ambiente vorremmo avere anche un posto per la TV. La stanza con vano d'ingresso all'appartamento è evidenziata in rosso nella planimetria allegata. Ci sono 2 attacchi luce in centro stanza da utilizzare.