
Roma, RM, Italia
Residenziale - Stanza
La nostra proposta progettuale cerca di creare gli spazi desiderati dal cliente, fermo restando che:
⦁ per la norma italiana vigente (D.M. 5/7/1975) e per il regolamento edilizio della città di Roma, la superficie minima di una camera singola è di 9 mq;
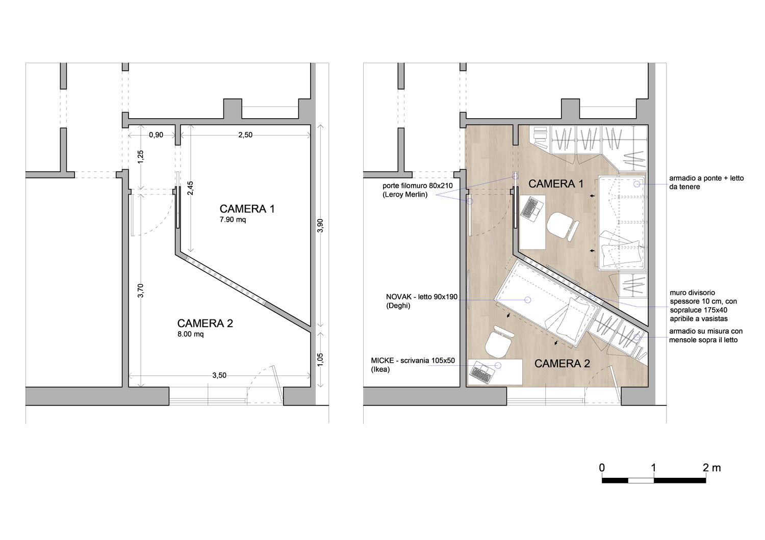
⦁ la superficie della camera attuale (17,5 mq), tolto l'ingombro delle pareti necessarie per la suddivisione, rende purtroppo possibile solo la creazione di due stanze che hanno dimensione inferiore al minimo di legge (7,90 qm e 8,00 mq) e di un disimpegno ridotto al minimo indispensabile;
⦁ data la posizione dell'infisso affacciato verso l'esterno, solo una camera avrà l'apporto di luce e aria naturale necessario per essere identificata come camera; la seconda sarà cieca.
Quindi, il progetto cerca di ovviare almeno in parte a questi problemi, nel seguente modo:
1. creare muri divisori di spessore minimo possibile (10 cm incluso intonaco) per occupare meno spazio possibile;
2. realizzare un sopraluce apribile fra le due camere, in modo che quella più interna (camera 1) abbia almeno il minimo di ricambio d'aria possibile;
3. inserire porte filomuro salvaspazio;
4. posizionare nella camera 1 l'armadio a ponte e il letto da tenere, insieme ad una scrivania compatta;
5. posizionare nella seconda camera arredi minimali (letto, scrivania compatta, armadio con mensole da realizzare su misura);
6. sfruttare al massimo lo spazio senza invaderlo eccessivamente e mantenendolo vivibile.
Nei disegni allegati abbiamo inserito note con indicazioni relative ai muri e agli arredi, in modo da essere più esaurienti e completi possibili.