🔥 CYBER MONDAY 24H: -60% su tutti i prezzi del sito! Solo fino a mezzanotte. Usa il codice CYBERMONDAY25 👉🏼
img

Creazione nuova cameretta

Roma, RM, Italia

Residenziale - Stanza

Monica Fallarino

  • architect
  • Napoli, Italy
Descrizione Progetto

La stanza, di dimensioni 3,5 x 5 metri (per una superficie totale di circa 17,5 mq) presenta una finestra e una porta-finestra poste in adiacenza, elemento che rappresenta una prima criticità nella suddivisione funzionale dello spazio, in quanto riduce fortemente la flessibilità distributiva e limita le opzioni progettuali per ottenere due ambienti ben distinti e dotati di illuminazione e aerazione diretta.
Le misure utilizzate per lo sviluppo progettuale sono state ricavate dall’importazione in AutoCAD di un file PDF, in assenza di una planimetria DWG o di un rilievo diretto in loco. Questo aspetto, unito alla mancanza di un'ispezione visiva diretta del serramento, comporta un margine di incertezza sulla reale fattibilità di alcuni interventi (come, ad esempio, la costruzione di una parete divisoria tra le due aperture).
Dal punto di vista normativo, si ricorda che la superficie minima di una camera singola è pari a 9 mq, come stabilito dal DM 5 luglio 1975. Dalle misure ottenute risulta che la camera sia di 17.5 mq e, considerando che l'inserimento di un tramezzo fisso che comporta inevitabilmente una sottrazione di superficie utile, si consiglia l’adozione di pareti divisorie in cartongesso con orditura metallica zincata da 75 mm, oppure optare per soluzioni flessibili come pannelli scorrevoli o elementi d’arredo divisori, che consentono una parziale separazione degli spazi, senza incidere eccessivamente sulla superficie netta delle stanze.
Sono state elaborate tre ipotesi progettuali:
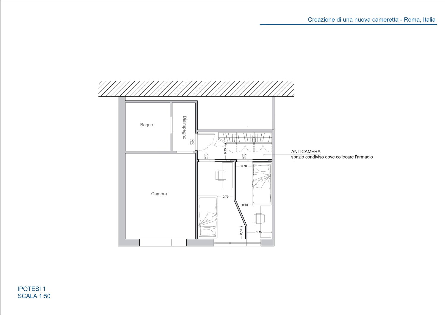
1. Prima ipotesi: suddivisione mediante tramezzo in parte inclinato per ottimizzare le superfici e realizzazione di un piccolo disimpegno comune con armadio condiviso. Le due camere ricavate, seppur ridotte, sono dotate di letto e scrivania, con un minimo di autonomia funzionale.
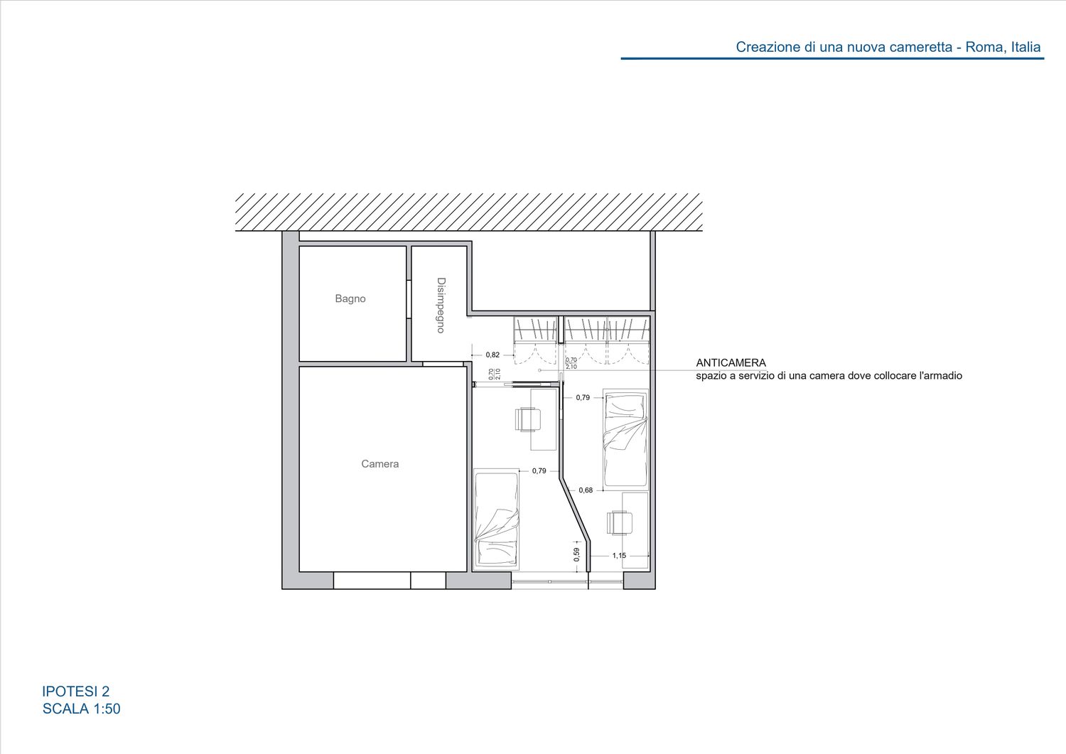
2. Seconda ipotesi: suddivisione più regolare in cui una camera ospita anche l’armadio, mentre l’altra utilizza uno spazio esterno alla stanza per collocarlo. Anche in questo caso, le camere sono funzionali ma contenute.
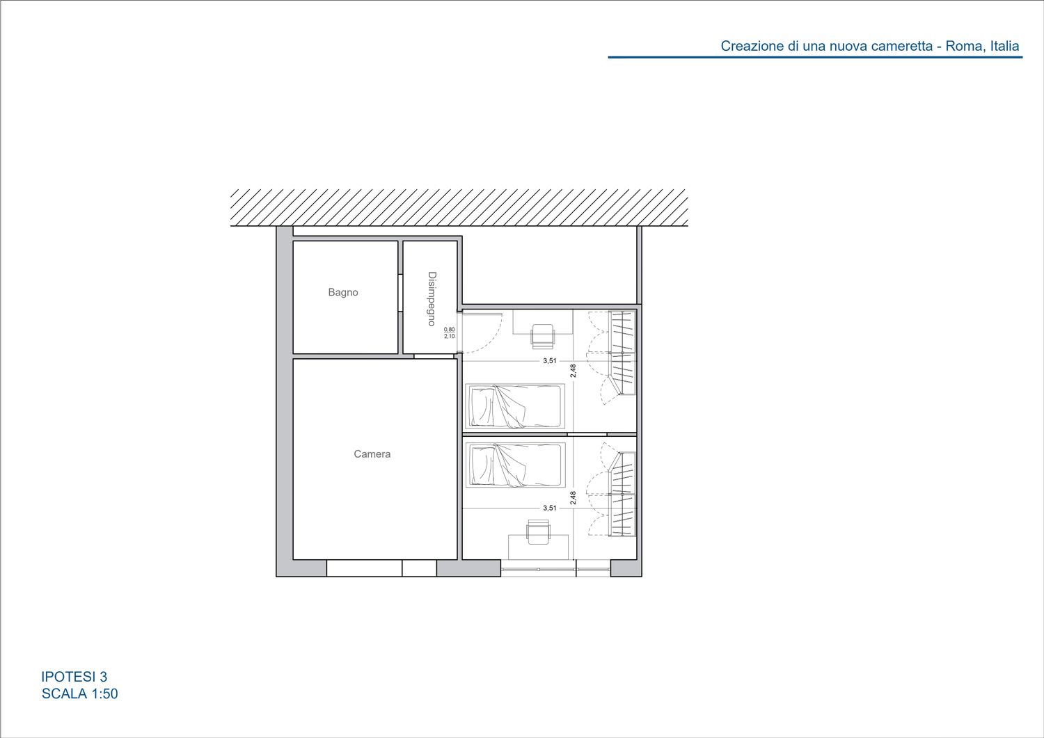
3. Terza ipotesi: suddivisione centrale della stanza in due ambienti rettangolari di dimensioni simili, mediante l’inserimento di un pannello scorrevole o mobile non fisso, o l’adozione di adeguato elemento di arredo divisorio. L’elemento scelto sarà posizionato in senso trasversale rispetto alla lunghezza dell’ambiente, e consentirà di ottenere due spazi distinti dal punto di vista visivo, pur rimanendo fisicamente comunicanti. Si evidenzia che l’ingresso alla stanza rimane unico, così come la presenza di aperture verso l’esterno, entrambe collocate nella stessa metà della stanza. Ne consegue che per accedere alla seconda camera è necessario passare attraverso la prima, e solo quest’ultima beneficia direttamente di luce e ventilazione naturale. La seconda stanza riceve luce indiretta filtrata dal pannello/elemento di arredo. Nonostante questo limite, la configurazione consente una distribuzione degli spazi più lineare e regolare, garantendo a ciascun ambiente un certo grado di funzionalità, con la possibilità di inserire letto e scrivania. È una proposta che sacrifica in parte la privacy, ma ottimizza la spazialità e valorizza la semplicità dell’arredo, rappresentando una soluzione flessibile in presenza di vincoli strutturali e dimensionali.
In conclusione, la ridotta superficie disponibile, la configurazione delle aperture e l’assenza di rilievi esatti rappresentano vincoli importanti. Le soluzioni proposte cercano di contemperare le esigenze funzionali con i limiti oggettivi dell’ambiente. Sarà fondamentale, in fase di scelta, valutare con attenzione quali aspetti si intendano privilegiare (privacy, ampiezza, arredi, flessibilità), accettando necessariamente qualche compromesso.

Leggi di Più