🔥 CYBER MONDAY 24H: -60% su tutti i prezzi del sito! Solo fino a mezzanotte. Usa il codice CYBERMONDAY25 👉🏼
home / concorsi / contemporary paris
img

contemporary paris

Rimini, Province of Rimini, Italy

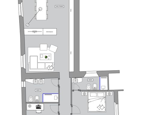
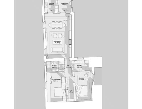
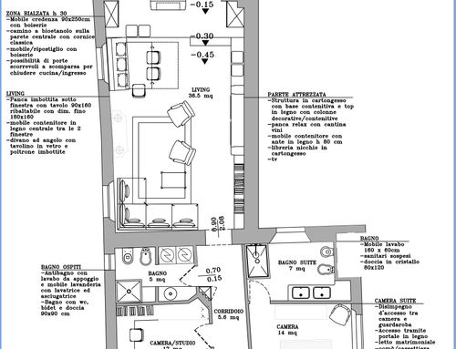
Residenziale - Appartamento

  • 1° Posto € 528
  • 2° Posto € 176
  • 3° Posto € 88
  • 4° Posto € 44
  • 5° Posto € 44