
Milan, Metropolitan City of Milan, Italy
Residenziale - Appartamento
Descrizione
ENG
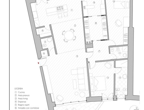
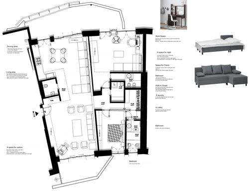
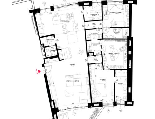
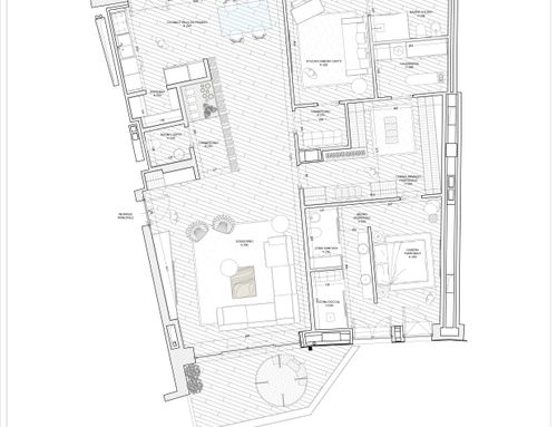
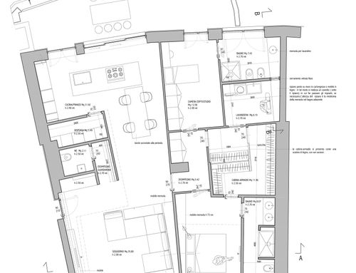
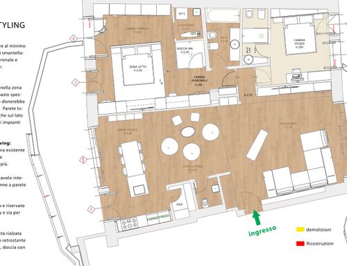
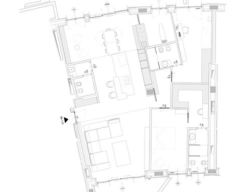
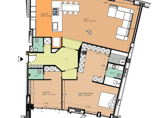
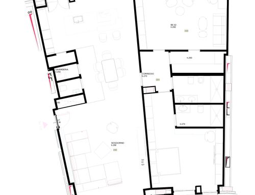
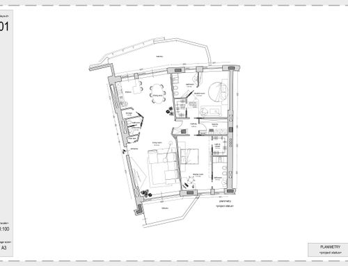
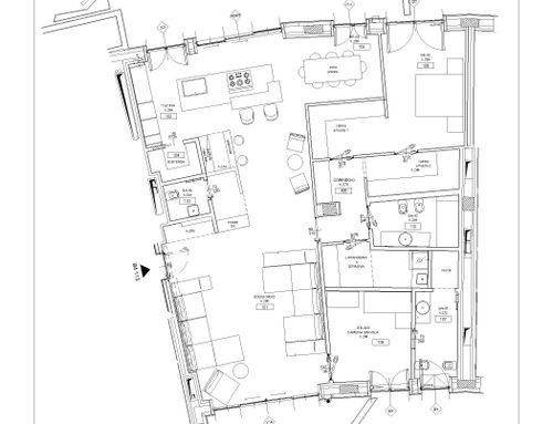
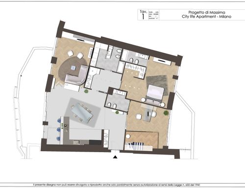
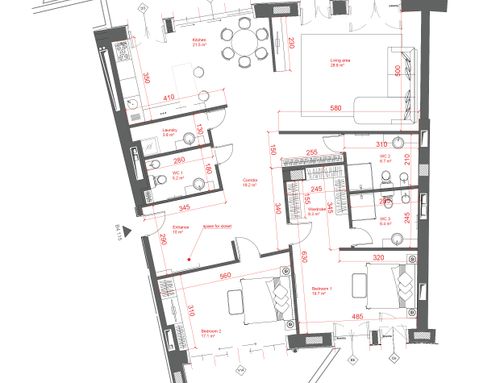
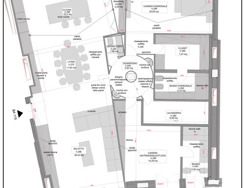
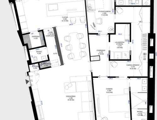
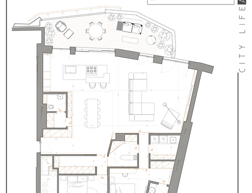
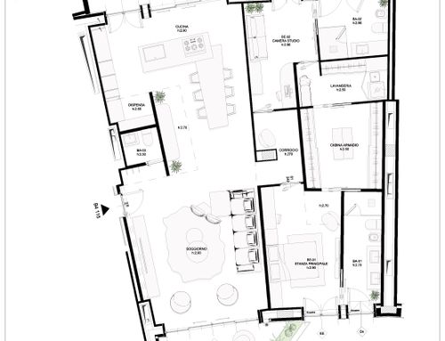
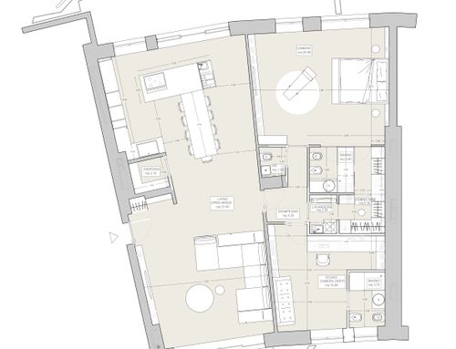
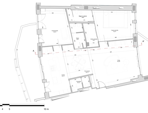
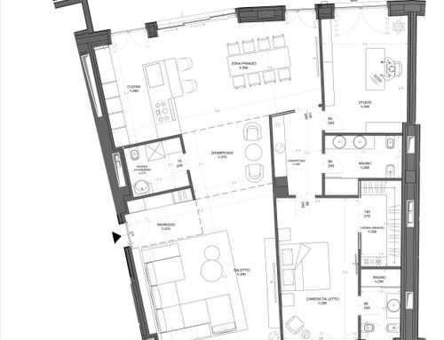
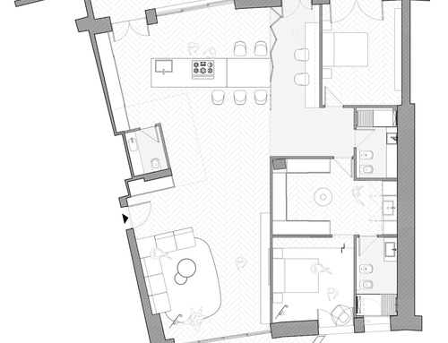
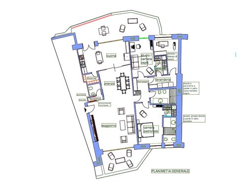
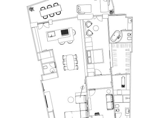
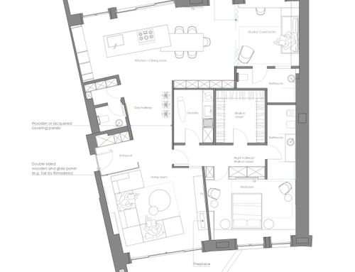
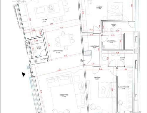
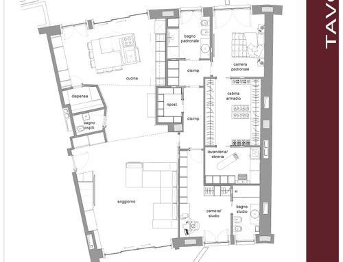
Dear designers, I'd like to find the best organization prossible for my apartment in Milan. I need to redesign all the internal spaces with just a general indication of the disposition of the pieces of furniture. The apartment should have a big and spacious living area/kitchen with enclosed guest bathroom. I need a master bedroom with enclosed bathroom. I need a walk-in-closed and a laundry. I need an additional bedroom/study with bathroom (enclosed or external). No bathtub. Thank you!!
SPA
Queridos diseñadores, me gustaría encontrar la mejor organización posible para mi apartamento en Milán. Necesito rediseñar todos los
espacios interiores con solo una indicación general de la disposición de los muebles. El apartamento deberá tener un área de sala de estar / cocina grande y espaciosa con un baño de visitas cerrado.
Necesito un dormitorio principal con baño privado. También un vestidor y una lavandería. Necesito un dormitorio/estudio adicional con baño, (ya sea privado o externo). No bañera. ¡Gracias!
ITA
Da tempo sto ricercando la migliore suddivisione per il mio appartamento di Milano. Ho necessità di una progettazione degli interni, con sommaria indicazione degli arredi. L'appartamento dovrà essere dotato: ampia zona living più cucina con bagno di servizio. Una camera da letto padronale con bagno. Cabina armadio. Una lavanderia. Un ulteriore camera/studio con bagno (interno oppure esterno alla camera). Non occorre prevedere una vasca da bagno. Grazie!