
83012 Cervinara, Province of Avellino, Italy
Residenziale - Zona Giorno/Notte
Descrizione
ITALIANO
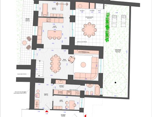
Buonasera a tutti, vi caricherò tutto il materiale possibile in modo da rendervi più facile il lavoro. Non vi impressionate dalle foto ma è tenuta molto male. Ho deciso di prendermi una parte di casa dei miei genitori in modo da ricavarmi un appartamento su due livelli di 140/150 mq. L'idea è quella di una zona notte nella parte superiore e quella giorno al primo piano. Mi piacerebbe avere degli spazi ampi con delle vetrate che affacciano in giardino. Penso che una libreria in una casa sia molto importante anche se piccola. Bisognerebbe creare una scala, magari moderna, in modo da collegare le due zone. Dal computo metrico caricato vedrete che il tecnico ha segnalato l'unico posto dove potrà essere messa la scala e i muri da demolire lasciando la mazzetta di 70 cm a destra e sinistra. Se avete altre idee per la scala fate pure o chiedetemi. Non sarebbe male vederla anche dal salone.
Quindi ricapitolando, nella zona giorno vorrei cucina (vedi foto) con zona leaving molto ampia, un bagno, un ripostiglio con lavanderia (lavatrice, asciugatrice e lavabo) e uno studio. Nel piano superiore c'è poco da fare, troviamo una camera da letto principale da ricavarci solo una cabina armadio, c'è un bagno grande, una camera più piccola e un corridoio dove andrà messa la scala. Sempre dal computo metrico si evince una "ex vasca" che verrà demolita e si potrebbe sfruttare la parte coperta in modo da ampliare la casa. Essendo uno sportivo vorrei ricavarmi una piccola palestra sempre se possibile dagli spazi ma se essa deve togliere spazio al salone allora posso anche farne a meno. Dalle foto vedrete che c'è un camino nella prima sala e magari si potrebbe riprendere nella sala centrale oppure eliminare anche quella parete in modo da rendere la zona piu' grande e piu' profonda. Vedete voi la soluzione più bella e funzionale.
Ho caricato nella sezione immagini anche degli acquisti già fatti come: tv 65" per il salone, tv 55" per sala pranzo o camera da letto, lampadario FLOS, lampada FLOS, un quadro e uno specchio 2*2.
N.B.: ci tengo molto a questa casa anche perchè penso sia quella definitiva.
Non esitate a contattarmi per qualsiasi dubbio.
Buon Lavoro
ENGLISH
Good evening everyone, I will upload all the material possible in order to make your job easier. You are not impressed by the photos but it is very poorly maintained. I decided to take a part of my parents' house in order to obtain a two-level apartment of 140/150 square meters. The idea is that of a sleeping area at the top and the day area on the first floor. I would like to have large spaces with windows overlooking the garden. I think a bookstore in a house is very important even if it's small. A staircase should be created, perhaps modern, in order to connect the two areas. From the loaded metric calculation you will see that the technician has indicated the only place where the ladder and the walls to be demolished can be placed, leaving the 70 cm bundle to the right and left. If you have other ideas for the ladder go ahead or ask me. It wouldn't be bad to see her from the living room too.
So in summary, in the living area I would like a kitchen (see photo) with a very large leaving area, a bathroom, a utility room with laundry (washing machine, dryer and sink) and a study. On the upper floor there is little to do, we find a master bedroom to make only a walk-in closet, there is a large bathroom, a smaller bedroom and a corridor where the staircase will be placed. Also from the metric calculation we can see a "former tank" that will be demolished and the covered part could be exploited in order to expand the house. Being a sportsman I would like to get a small gym, always if possible from the spaces but if it has to take away space from the salon then I can also do without it. From the photos you will see that there is a fireplace in the first room and maybe you could resume in the central room or even eliminate that wall in order to make the area bigger and deeper. See for yourself the most beautiful and functional solution.
I have also uploaded in the images section some purchases already made such as: 65 "TV for the living room, 55" TV for the dining room or bedroom, FLOS chandelier, FLOS lamp, a picture and a 2 * 2 mirror.
N.B .: I really care about this house also because I think it's the definitive one.
Do not hesitate to contact me for any questions.
Good job
ESPANOL
Buenas noches a todos, subiré todo el material posible para facilitarles el trabajo. No está impresionado por las fotos, pero está muy mal mantenido. Decidí tomar parte de la casa de mis padres para obtener un apartamento de dos niveles de 140/150 metros cuadrados. La idea es la de un área para dormir en la parte superior y la zona de día en el primer piso. Me gustaría tener amplios espacios con ventanales al jardín. Se debe crear una escalera, quizás moderna, para conectar las dos áreas. Creo que una librería en una casa es muy importante incluso si es pequeña. A partir del cálculo métrico cargado verá que el técnico ha indicado el único lugar donde se puede colocar la escalera y los muros a demoler, dejando el bulto de 70 cm a derecha e izquierda. Si tienes otras ideas para la escalera, adelante o pregúntame. No estaría de más verla desde el salón también.
Entonces, en resumen, en la sala de estar me gustaría una cocina (ver foto) con un área de descanso muy grande, un baño, un lavadero con lavandería (lavadora, secadora y fregadero) y un estudio. En la planta alta hay poco que hacer, encontramos un dormitorio principal para hacer solo un vestidor, hay un baño amplio, un dormitorio más pequeño y un pasillo donde se colocará la escalera. También del cálculo métrico podemos ver un "tanque anterior" que será demolido y la parte cubierta podría explotarse para ampliar la casa. Siendo deportista me gustaría conseguirme un pequeño gimnasio, siempre si es posible de los espacios pero si tiene que quitarle espacio al salón, también puedo prescindir de él. En las fotos verás que hay una chimenea en la primera sala y tal vez podrías retomar en la sala central o incluso eliminar esa pared para hacer el área más grande y más profunda. Vea usted mismo la solución más bella y funcional.
También he subido en la sección de imágenes algunas compras ya realizadas como: TV de 65 "para el living, TV de 55" para el comedor o dormitorio, candelabro FLOS, lámpara FLOS, un cuadro y un espejo 2 * 2.
N.B .: Me importa mucho esta casa también porque creo que es la definitiva.
No dudes en contactar conmigo para cualquier consulta.
Buen trabajo español