
37019 Peschiera del Garda, VR, Italy
Commerciale - Altro
Descrizione
Sto costruendo un locale multifunzione, Bar, Ristorante, noleggio biciclette e barche.
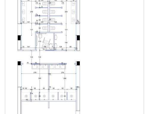
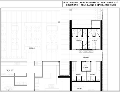
Necessito di progettare il locale Bagni e docce per i clienti. Questo locale misurerà 10mx6m e dovrà contenere 8 bagni (4 donne e 4 uomini+ orinatoi), lavabo anche in comune o quasi, bagno disabili, 6 docce (3+3) spogliatoi.
Considero i bagni di un locale come un biglietto da visita del locale.
La clientela di frequentazione è internazionale, per lo più tedesca ed olandese, sono di medio alto livello ed hanno famiglia al seguito. Il locale farà orario continuato dalle 11 alle 24
ENG
I'm building a multipurpose room, bar, restaurant, bicycle and boat rental.
I need to design the local Bathrooms and showers for customers. This room will measure 10mx6m and will contain 8 toilets (4 women and 4 men + urinals), washbasin, also shared or nearly so, disabled toilet, 6 showers (3+3) changing rooms.
I consider the bathrooms of a club as a business card of the club.
The clientele is international, mostly German and Dutch, they are medium-high level and have families in tow. The restaurant will be open continuously from 11 to 24
SPA
Estoy construyendo un local con múltiples usos: bar, restaurante, alquiler de bicicletas y alquiler de barcos.
Necesito diseñar el cuarto de aseo y ducha para los clientes. Este local medirá 10mx6m y deberá contener 8 aseos (4 mujeres y 4 hombres + urinarios), lavabo también compartido o casi compartido, aseo para minusválidos, 6 duchas (3+3), y vestuarios.
Considero que los baños de un local son su tarjeta de visita.
La clientela es internacional, sobre todo alemana y holandesa, de clase media y con familia. El club abre ininterrumpidamente de 11.00 a 24.00 horas.