
12082 Frabosa Soprana CN, Italy
Residenziale - Appartamento
Descrizione
ENG:
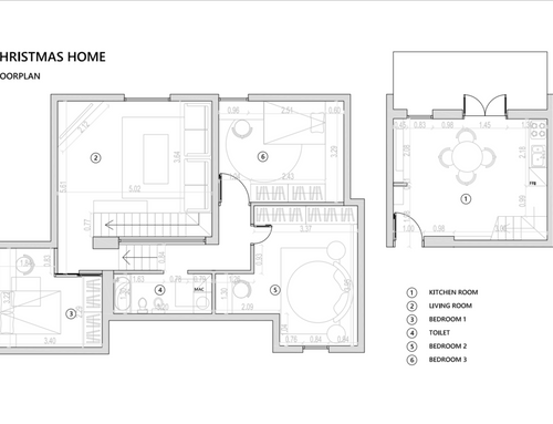
Hi everyone, I have an apartment of about 90 square meters that I would like to use as a Christmas house. It is a property that I will rent during the winter and I would like to have the essence of Christmas in every corner of the house. I'd like to allocate a room to Santa Claus, a room to the elves, Mother Christmas's room. I would like the kitchen to be in wood, I would like a kitchenette. Living room / reception for children and adults and in general I would like to have the whole house with a Christmas theme. I also have a living room where I would like to do the children's toy workshop (+ 25m2) and I would like to have the aurora borealis on the roof or the starry sky with optical fibers so that by switching off I would have the atmosphere of a forest. I'd like to build a gazebo/structure on the terrace that could give continuity to the house considering that it snows a lot in winter.
Spending budget: €90/120k
SPA:
Hola a todos, tengo un apartamento de unos 90 metros cuadrados que me gustaría utilizar como casa de Navidad. Es una propiedad que alquilaré durante el invierno y me gustaría tener la esencia de la Navidad en todos los rincones de la casa. Me gustaría asignarle una habitación a Papá Noel, una habitación a los duendes, la habitación de Papá Noel. Me gustaria que la cocina fuera de madera, me gustaria una cocina americana. Sala/recepción para niños y adultos y en general me gustaría tener toda la casa con tema navideño. También tengo un salón donde me gustaría hacer el taller de juguetes para niños (+25m2) y me gustaría tener la aurora boreal en el techo o el cielo estrellado con fibras ópticas para que al apagar tenga el ambiente de un bosque. Me gustaría hacer un mirador/estructura en la terraza que pudiera dar continuidad a la casa teniendo en cuenta que en invierno nieva mucho.
Presupuesto de gastos: 90/120k€
ITA:
Salve a tutti, ho un appartamento di circa 90mq che vorrei adibire a casa del Natale. E' un immobile che affitterò periodo invernale e vorrei avere l'essenza del Natale in ogni angolo della casa. Mi piacerebbe destinare una camera a Babbo Natale , una camera agli elfi , la camera di mamma Natale. La cucina vorrei fosse in legno, mi piacerebbe un cucinino. Soggiorno / ricevimento per piccoli e grandi ed in generale mi piacerebbe avere tutta la casa a tema natalizio. Ho anche un soggiorno dove mi piacerebbe fare il laboratorio giocattoli dei bambini (+ di 25mq) e vorrei avere l'aurora boreale sul tetto oppure cielo stellato con le fibre ottiche così spegnendo avrei l'atmosfera di un bosco. Mi piacerebbe realizzare sul terrazzo un gazebo/struttura che potesse dare continuità alla casa considerando che in inverno nevica molto.
Budget di spesa : 90/120k €