23030 Chiuro, Province of Sondrio, Italy
Residenziale - Casa
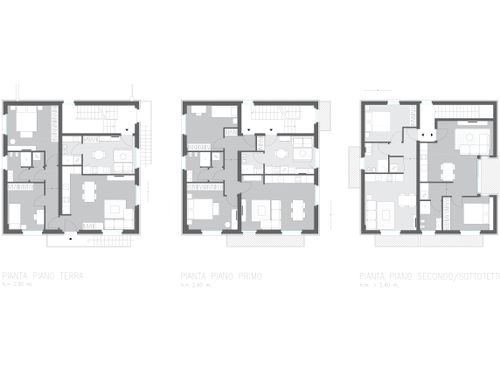
Descrizione
Hello everyone, I have a house from the 60s that I would like to renovate, there are two floors + attic of about 100 square meters per floor. I would like to combine an apartment and a studio apartment per floor + the attic divided into two mini apartments + various solutions for the canopy and the outside, etc., thank you for your attention, greetings, E.
- - - - - - - -
Buongiorno a tutti, ho una casa dei anni 60 che vorrei ristrutturare, sono due piani + mansarda di circa 100 mq per piano. Vorrei combinare un appartamento e un monolocale per piano + la mansarda divisa in due mini appartamenti + varie soluzioni per la tettoia e l’esterno ecc.., grazie per la vostra attenzione, saluti, E.
- - - - - - - -
Buenos días a todos, tengo una casa de los años 60 que me gustaría reformar, son dos plantas + ático, cada planta mide unos 100 m2. Me gustaría combinar un piso y un estudio en cada planta + el ático dividido en dos mini apartamentos + varias soluciones para la marquesina y el exterior, etc., gracias por vuestra atención, saludos, E.