
Reggio Emilia, RE, Italia
Residenziale - Appartamento
Dear Client,
Thank you for sharing your brief and the vision for your new home. Based on your guidelines, I have developed a proposal for the first floor apartment that balances strong visual appeal with everyday comfort and practicality, creating a space that is both Instagram-worthy and genuinely livable.
The design approach focuses on maximizing brightness, spatial fluidity, and warmth. A modern yet welcoming aesthetic guides the entire project, where clean contemporary lines are softened by carefully introduced natural materials and warm tonal selections. The chosen wood-effect porcelain stoneware in warm shades establishes a cohesive and luminous base throughout the apartment, ensuring durability while maintaining the visual comfort of natural wood. The bathrooms are treated with complementary finishes in lighter warm tones, avoiding overly bold patterns in favor of a refined and timeless atmosphere.
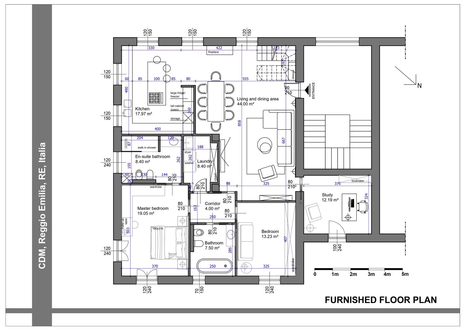
The living and dining area has been developed around your preference for the exposed steel-and-wood staircase and the contemporary dining table with charcoal metal legs and a wooden top. These elements act as key compositional anchors within the open space. The seating area is designed to feel bright, soft, and inviting, featuring a generous corner sofa and accompanying chairs in a warm white tone. Metal accents are introduced through the coffee table and lighting fixtures, reinforcing the modern character without overwhelming the warmth of the space. An industrial-style bookcase and TV unit add depth and personality, while a dedicated accent armchair creates a comfortable corner for leisure and relaxation. To enhance the welcoming atmosphere, the fireplace is positioned on the permitted external wall, becoming a natural focal point of the living area.
The kitchen is organized along three walls to maximize efficiency and storage capacity. It includes a large fridge/freezer, a tall cabinet housing the oven, and an additional tall storage unit. Upper cabinetry is arranged along one wall, while the wall with windows is intentionally kept lighter with only base units to preserve natural light and visual openness. Travertine is proposed for the countertop and island surfaces, introducing an elegant and timeless material contrast within the otherwise contemporary composition. The island is positioned centrally and functions as the operational heart of the kitchen, integrating the cooking hob and a comfortable seating area with stools for informal breakfasts and snacks.
As shown in the renders, the kitchen can optionally be separated from the living area by sliding doors if greater spatial division is desired in the future, offering flexibility without compromising the open-plan concept.
Please note that some materials may appear slightly different in the rendered images compared to real-life finishes. For example, the travertine surfaces in reality are intended to have a softer, more matte appearance than what is visible in certain views. These visualizations are meant to communicate the design intent and spatial atmosphere rather than represent the exact final material sheen.
Within the set of rendered images, you will also find several alternative solutions explored to give you additional stylistic options. These include a version with an exposed brick accent wall for a more pronounced industrial character, a proposal featuring green dining chairs for a bolder color accent, and the optional kitchen sliding door configuration mentioned above.
The internal staircase connecting to the upper floor is designed as a distinctive architectural feature. It features a modern dark metal structure paired with wooden treads, creating a light yet sculptural presence that aligns with the overall style of the apartment.
The master bedroom is conceived as a calm and functional private retreat. It includes a double bed, a spacious corner wardrobe, and a dedicated make-up table. After careful evaluation of proportions, the initial walk-in closet idea was intentionally abandoned to avoid creating an overly tight or compromised space. The current layout ensures better comfort, circulation, and storage efficiency. The en-suite bathroom emphasizes comfort and elegance, with a very generous walk-in shower and a palette of light, warm materials that reinforce the relaxing atmosphere you requested.
In the second bathroom, the door position has been adjusted toward the center of the wall. This modification allows the bidet and toilet to be properly aligned opposite the sink, improving both ergonomics and visual balance. The bathroom features the requested freestanding bathtub and maintains the warm, light material palette.
The laundry room has been carefully organized for full practicality. In addition to the washing machine, dryer, and large-basin sink, a dedicated storage closet is included to accommodate the ironing board, vacuum cleaner, and household equipment, ensuring the space remains tidy and efficient.
The guest bedroom is designed with flexibility in mind, offering a very spacious wardrobe so the room can serve both short stays and longer visits with equal comfort. The final 12 m² room is organized as a functional home office, conceived to be bright, orderly, and conducive to focused work.
All internal doors are designed as sliding pocket doors, in accordance with your specifications, helping to optimize circulation and maintain visual continuity throughout the apartment, while the entrance and laundry doors remain hinged as required.
Overall, the proposal aims to extract the maximum potential from the spatial configuration you described, creating a refined, bright, and highly functional home tailored to your lifestyle and aesthetic preferences.
I wish you all the best with your project!
Best regards!