
Reggio Emilia, RE, Italia
Residenziale - Appartamento
En:
Following your requirements, we have developed a design that balances modern aesthetics with functional comfort.
Each zone has been curated with a distinct color palette and a specific material selection to ensure every corner is "Instagram-worthy" while remaining welcoming.
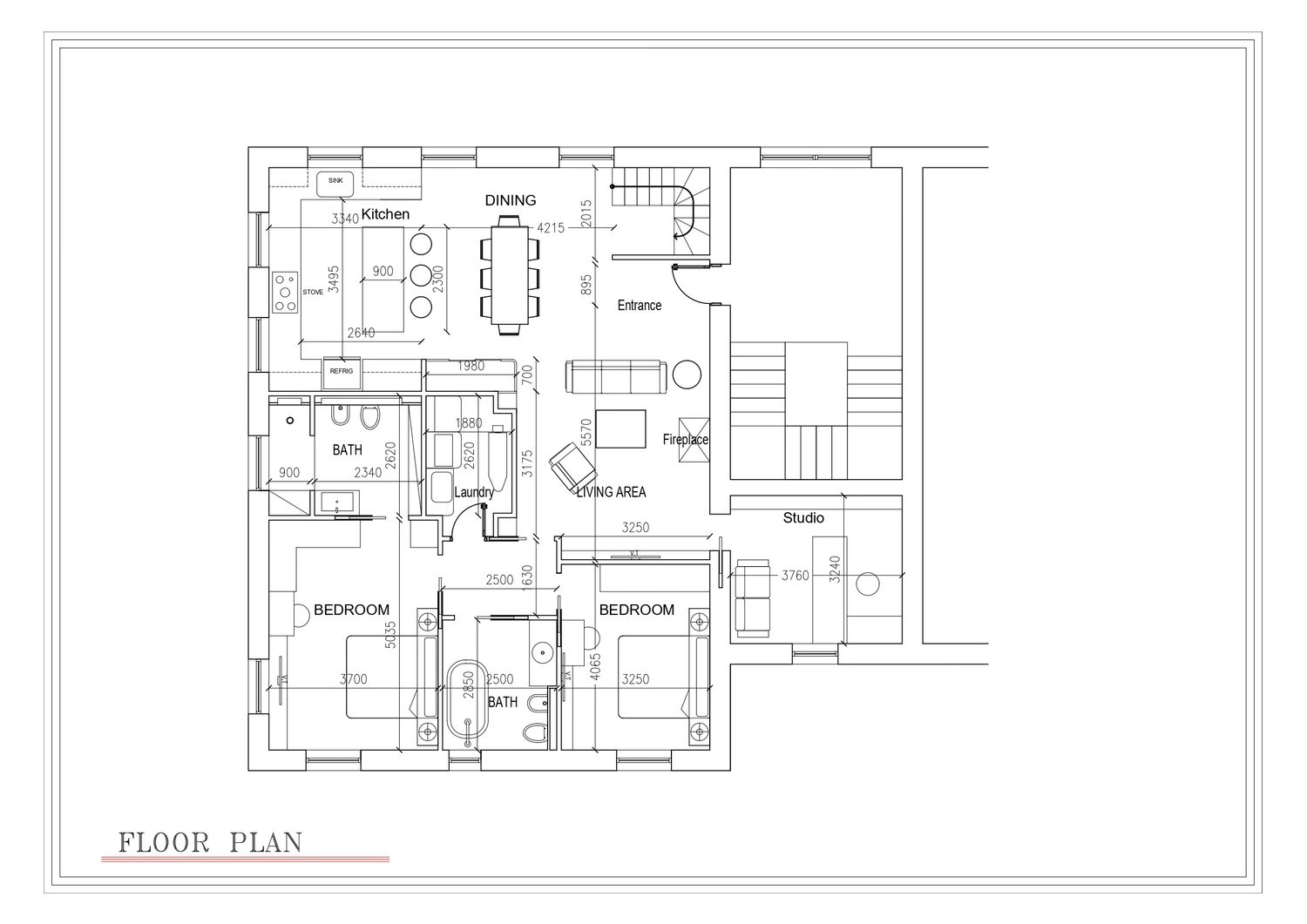
_Spatial Layout and Flow:
-The Entrance and Staircase: Upon entry, the focus is on the modern metal staircase. Its dark structure and wooden steps serve as a primary architectural feature, connecting the floors with a clean, industrial-chic look.
-Dining and Kitchen Hub: Centrally positioned, the wooden dining table with dark metal legs offers a direct view of both the peninsula and the expansive kitchen. This layout creates an open, social atmosphere perfect for hosting.
-Living Area (Left Wing): To the left, the living room features a strategically placed fireplace on the external wall. The TV wall is designed to complement the open-plan feel while maintaining a cozy ambiance.
-Studio and Private Quarters: Following the flow of the sliding pocket doors, the layout transitions into the 12 m² office (Studio) and continues into the sleeping area, ensuring a clear separation between social and private spaces.
_Style and Color Palette
Modern Warmth: The style is defined by clean lines and high-quality finishes. We used warm-toned, wood-effect porcelain flooring throughout to unify the space without making it feel sterile.
Light and Bright: To maximize natural light, we opted for light worktops and non-black tapware in the kitchen. The bathrooms follow a similar logic with light, warm tones and minimal patterns.
Material Contrast: The design relies on the contrast between warm wood touches and dark metal accents (staircase and table legs), creating a Elegance, contemporary look that is easy to maintain and visually striking.
IT:
Seguendo le vostre esigenze, abbiamo sviluppato un design che bilancia l'estetica moderna con il comfort funzionale.
Ogni zona è stata curata con una palette di colori distintiva e una selezione specifica di materiali per garantire che ogni angolo sia "degno di Instagram" pur rimanendo accogliente.
_Disposizione e flusso spaziale:
-Ingresso e scala: All'ingresso, l'attenzione è rivolta alla moderna scala in metallo. La sua struttura scura e i gradini in legno fungono da elemento architettonico principale, collegando i piani con un look pulito e industrial-chic.
-Zona pranzo e cucina: Posizionato centralmente, il tavolo da pranzo in legno con gambe in metallo scuro offre una vista diretta sia sulla penisola che sull'ampia cucina. Questa disposizione crea un'atmosfera aperta e conviviale, perfetta per ospitare.
-Zona giorno (ala sinistra): A sinistra, il soggiorno presenta un camino posizionato strategicamente sulla parete esterna. La parete TV è progettata per completare l'atmosfera open space, mantenendo al contempo un'atmosfera accogliente.
- Studio e zona notte: Seguendo il flusso delle porte scorrevoli a scomparsa, la disposizione si sviluppa nell'ufficio di 12 m² (Studio) e prosegue nella zona notte, garantendo una netta separazione tra spazi comuni e privati.
_Stile e palette di colori
Calore moderno: Lo stile è definito da linee pulite e finiture di alta qualità. Abbiamo utilizzato pavimenti in gres porcellanato effetto legno dai toni caldi in tutto l'ambiente per unificare lo spazio senza renderlo sterile.
Luminoso e luminoso: Per massimizzare la luce naturale, abbiamo optato per piani di lavoro chiari e rubinetteria non nera in cucina. I bagni seguono una logica simile, con toni chiari e caldi e motivi minimali.
Contrasto di materiali: Il design si basa sul contrasto tra caldi tocchi di legno e dettagli in metallo scuro (scala e gambe del tavolo), creando un look elegante e contemporaneo, facile da mantenere e di grande impatto visivo.