🔥 CYBER MONDAY 24H: -60% su tutti i prezzi del sito! Solo fino a mezzanotte. Usa il codice CYBERMONDAY25 👉🏼
img
2°

Casauro

Cagliari, CA, Italia

Residenziale - Appartamento

Valentina Bruno

  • interior-designer
  • alezio, Italy
Descrizione Progetto

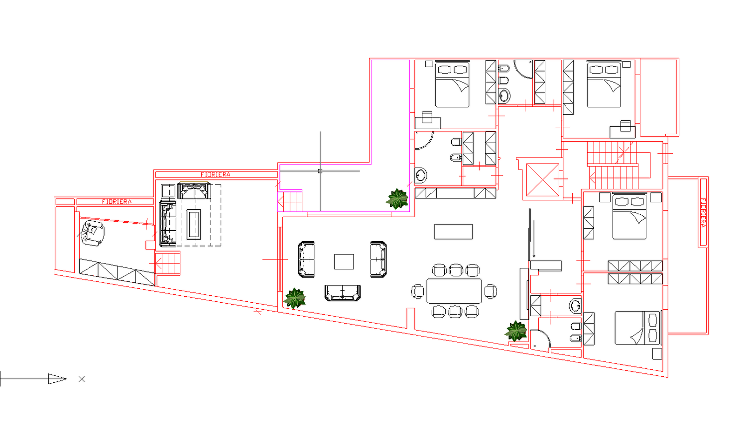
Ho progettato questa abitazione per rispondere fedelmente alle vostre esigenze, con una chiara distinzione tra le zone funzionali, gli spazi di servizio e gli ambienti dedicati al relax. La casa dispone di due accessi indipendenti: l’ingresso principale conduce direttamente alla zona giorno e introduce a un disimpegno che, schermando la vista immediata della cucina e della zona notte, garantisce ordine e privacy; questo spazio può essere chiuso all’occorrenza da una porta scorrevole, modulando la comunicazione con la cucina in base alle necessità. L’ingresso secondario, invece, porta direttamente nella zona notte dei ragazzi, pensata come area autonoma che in un futuro potrà essere separata dal resto della casa per diventare uno spazio indipendente.

Il cuore conviviale dell’abitazione è un ampio soggiorno open space che riunisce cucina, sala da pranzo e area living. La cucina con isola è stata concepita come luogo funzionale e conviviale, capace di dialogare visivamente con la zona pranzo, organizzata attorno a un grande tavolo, e con l’area living, caratterizzata da un ampio divano che si apre verso l’esterno. Questo ambiente può trasformarsi in una vera e propria sala cinema domestica grazie alla predisposizione per un proiettore frontale e a uno schermo retraibile a soffitto che, una volta abbassato, funge anche da oscurante per le finestre, creando l’atmosfera ideale per il relax e l’intrattenimento.

La zona notte è organizzata per garantire comfort e privacy. La camera matrimoniale è affiancata da un bagno adiacente, mentre le due camere destinate ai ragazzi, vicine tra loro, condividono un bagno dedicato. Una quarta camera, pensata come spazio flessibile, può essere adibita a stanza per gli ospiti o a studio, rendendo la disposizione versatile e adatta sia all’uso quotidiano sia a una futura suddivisione dell’abitazione in unità autonome.

Completano la distribuzione interna tre bagni totali, che assicurano praticitĂ  e riducono i conflitti di utilizzo, una lavanderia dedicata che libera la zona giorno dalle attivitĂ  di servizio e un ripostiglio che garantisce ordine e funzionalitĂ .

La casa si arricchisce infine di spazi esterni che diventano vere e proprie estensioni della vita domestica. Una terrazza vivibile arredata con un ampio divano è pensata per il relax, ma può facilmente ospitare un barbecue, trasformandosi in uno spazio ideale per pranzi e cene all’aperto. Poco distante, una zona relax distaccata, arredata con libreria e comoda seduta, offre un ambiente intimo e accogliente dedicato alla lettura e al benessere.

In ogni scelta progettuale l’obiettivo è stato quello di garantire funzionalità, comfort e possibilità di adattamento nel tempo, così da rispondere concretamente alle vostre esigenze quotidiane e future

Leggi di PiĂą