
Cagliari, CA, Italia
Residenziale - Appartamento
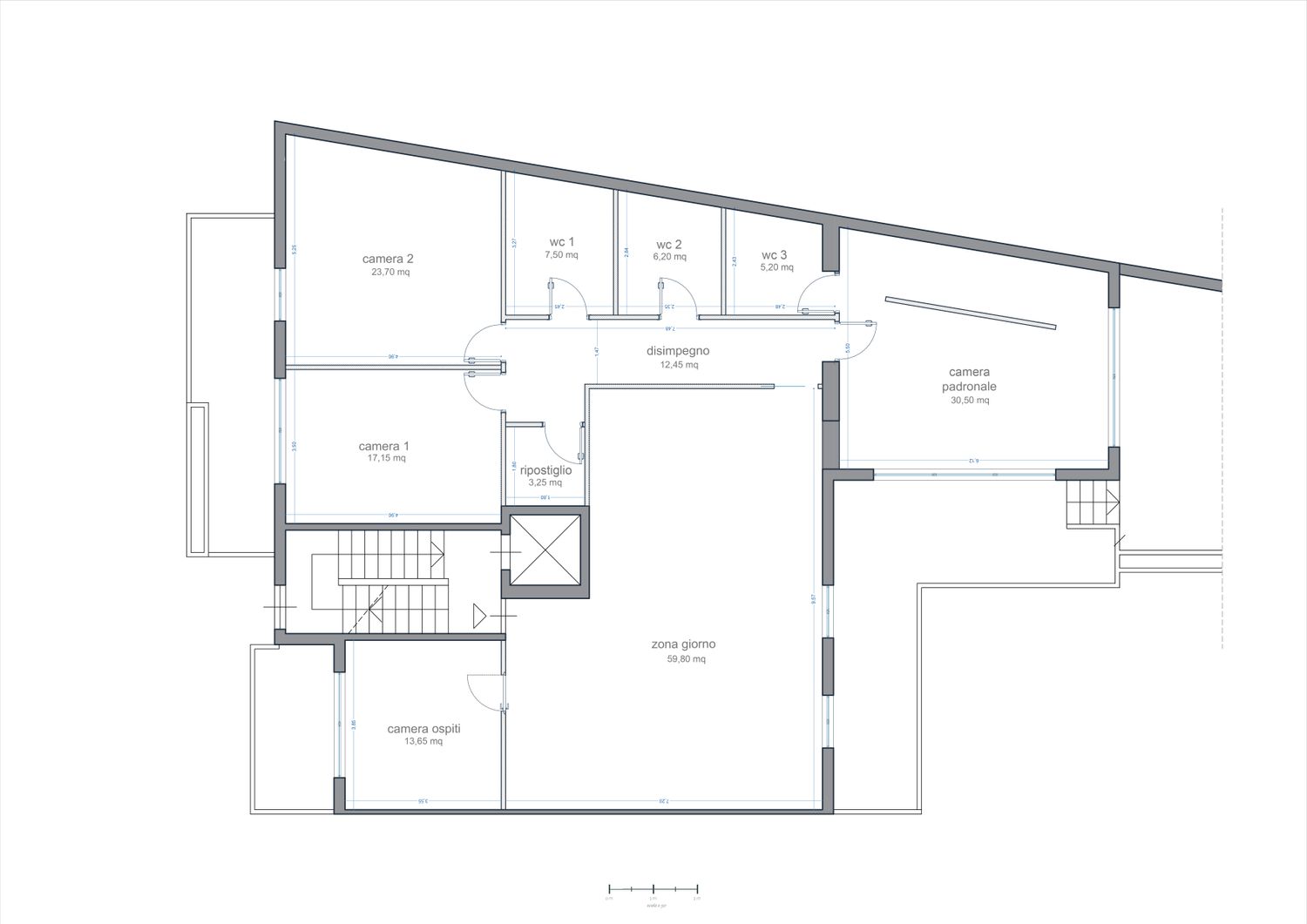
Il progetto nasce dalla richiesta di realizzare una zona giorno ampia e funzionale, tre camere da letto, una camera per gli ospiti, tre bagni e un ripostiglio. Tutte le esigenze del cliente sono state soddisfatte cercando, al contempo, di rispettare il più possibile la distribuzione originaria degli spazi, in particolare mantenendo l’ingresso nella posizione esistente, così da evitare interventi che richiedessero ulteriori pratiche edilizie.
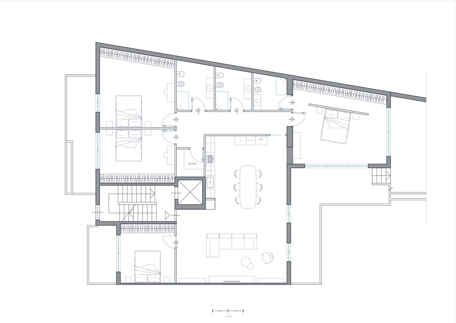
L’accesso all’abitazione si apre su un’ampia zona giorno, concepita come cuore della casa. L’ambiente è studiato affinché la cucina risulti più defilata rispetto al soggiorno, preservando un senso di ordine e accoglienza per chi entra. Una parete dogata in legno accompagna l’intero lato sinistro (in corrispondenza del blocco ascensore) e integra un’anta che funge da cappottiera per gli ospiti, oltre a schermare completamente l’area operativa della cucina. Quest’ultima si articola con un lungo piano attrezzato con lavello e piano cottura, mentre le colonne sono state collocate su una parete distinta, ottimizzando la funzionalità e la fruibilità dello spazio.
La zona soggiorno ospita un dettaglio progettuale discreto e raffinato: dietro un parato decorativo è infatti celata una porta filoparete che conduce alla camera degli ospiti. La scelta di collocarla in questa posizione risponde a due esigenze principali: garantire maggiore privacy all’ospite, che non accede direttamente alla zona notte familiare, e prevedere un’eventuale destinazione alternativa a studio, valorizzata dalla sua posizione più appartata.
Un’ampia porta scorrevole in vetro bronzato introduce invece alla zona notte, composta da due camere per i ragazzi, due bagni, un ripostiglio e la camera padronale con bagno privato.
Nonostante la richiesta iniziale prevedesse almeno un bagno finestrato, l’analisi delle bucature esistenti non ha reso possibile una distribuzione armoniosa senza modifiche sostanziali alle aperture, che avrebbero comportato pratiche autorizzative aggiuntive. Si è quindi optato per la realizzazione di tre bagni ciechi, uno dei quali ad uso esclusivo della camera matrimoniale. Quest’ultima, particolarmente ampia, è arricchita da una parete divisoria che cela l’armadiatura retrostante, lasciandola intravedere grazie all’inserimento di vetro cannettato, soluzione che conferisce leggerezza ed eleganza all’ambiente.