🔥 CYBER MONDAY 24H: -60% su tutti i prezzi del sito! Solo fino a mezzanotte. Usa il codice CYBERMONDAY25 👉🏼
img

Casauro

Cagliari, CA, Italia

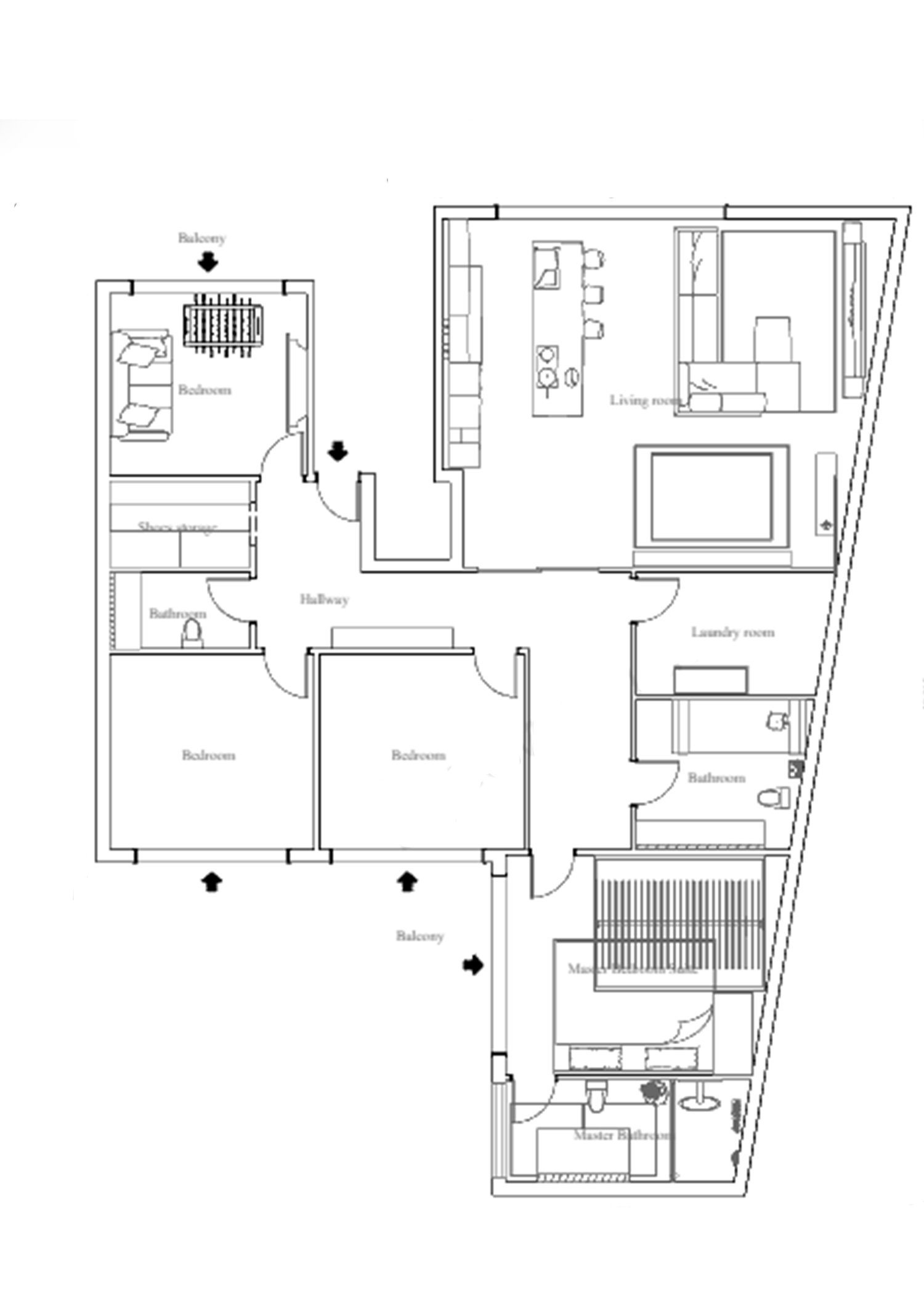
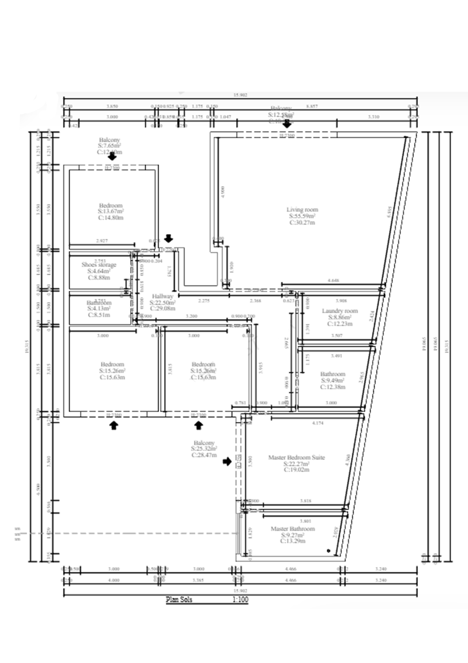
Residenziale - Appartamento

Ramoul Laura

  • interior-designer
  • Paris, France
Descrizione Progetto

Bathroom
A modern and refined bathroom design. The dark walls contrast with the light flooring, creating an elegant and intimate atmosphere. The large backlit mirror enhances depth and brightness, while the decorative wall niches and greenery add a natural and contemporary touch.

Living room, dining area, and open kitchen
A luxurious and welcoming living space. The living room features a large emerald-green sofa with contrasting cushions, paired with an elegant coffee table. The dining area highlights a marble table with tasteful and warm decoration. The open kitchen, enhanced with marble finishes and refined lighting, creates a modern atmosphere, perfect for hosting and sharing moments.

Entrance / Hallway
A warm and artistic design. The green walls bring a natural tone, enriched by sculpted wooden wall panels and decorative pendant lights. Integrated lighting highlights the decorative features, giving the space a welcoming and refined ambiance.

Windowless Bathroom – Ventilation Solutions
1- Mechanical Ventilation (VMC): the ideal solution to renew air and remove humidity.

2- Electric extractor fan: installed on the wall or ceiling, connected to a ventilation duct.

3- Humidity-sensing fan: automatically activates according to the humidity level.

4- Air vents/grilles: allow air circulation between the bathroom and other rooms.

5- Dehumidifier (as a complement): useful to limit condensation in small bathrooms.

✅ VMC remains the most effective and long-term solution.
Here is an address for VMC : Termodelta / Oggiano Raffaele
Via Puccini 34, Dolianova, 09041 Cagliari

Leggi di Più