πŸ”₯ CYBER MONDAY 24H: -60% su tutti i prezzi del sito! Solo fino a mezzanotte. Usa il codice CYBERMONDAY25 πŸ‘‰πŸΌ
img

Casauro

Cagliari, CA, Italia

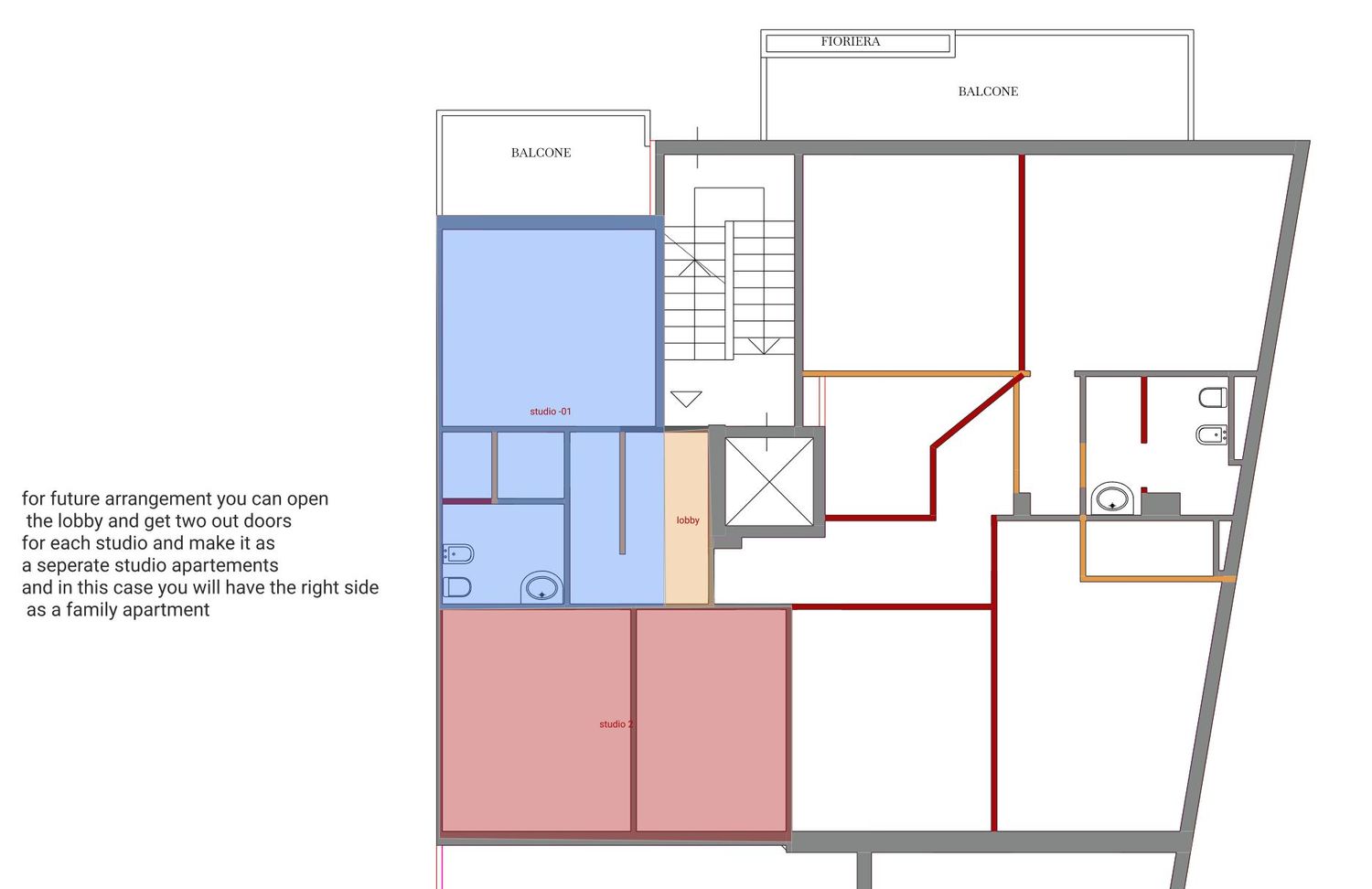
Residenziale - Appartamento

Asmaa Gomaa

  • interior designer
  • kfr el sheikh, Egypt
Descrizione Progetto

Leggi di PiΓΉ