
Cagliari, CA, Italia
Residenziale - Appartamento
Dear Esteemed Client,
Thank you for your trust in entrusting the design, planning, and renovation of your project to our professional team.
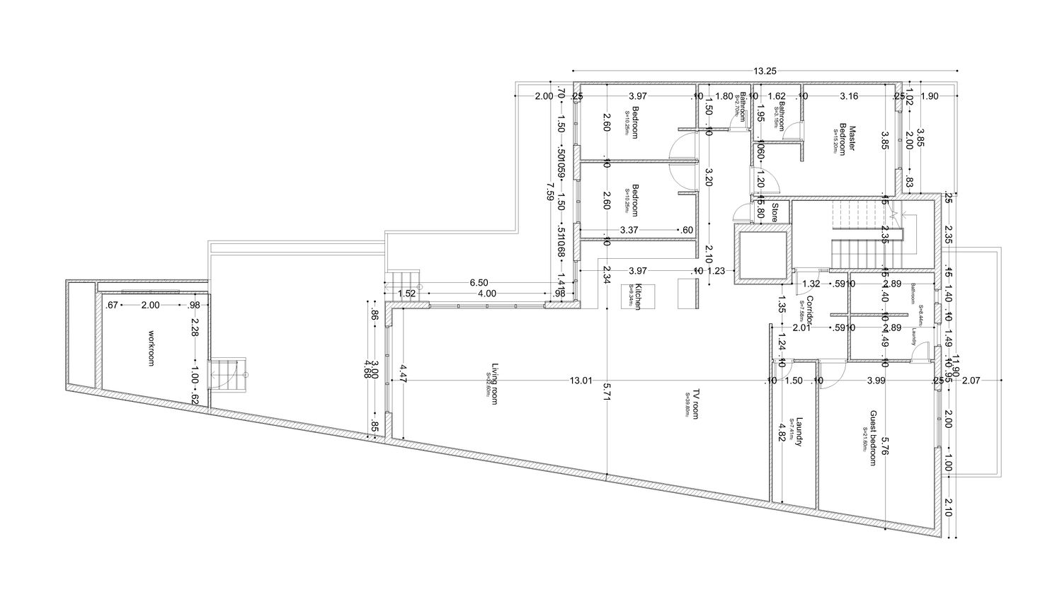
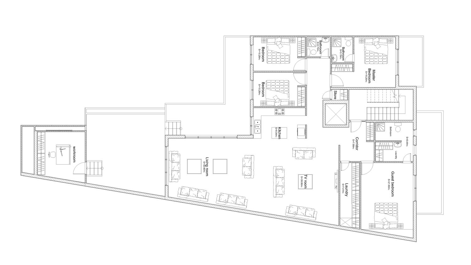
In the spatial planning and layout, our priorities were based on:
Accessibility and flow between areas.
The separation of public and private zones.
The quality of natural light and ventilation.
Maximizing the utility and efficiency of the available space.
As per your request, all required spaces have been incorporated with appropriate square footage and sound architectural proportions.
Key Design Features:
The main entrance has been relocated to improve the overall space division and zoning.
An entry foyer with a closet has been provided.
A guest room with a private, ventilated bathroom and laundry area is conveniently located near the entrance.
The main unit's laundry room is situated in the main entry corridor, providing adequate space.
The TV room and living room (seating area) are positioned on the right side of the plan to take advantage of the larger available space.
The kitchen is located at the heart of the plan for easy access to all areas of the unit and features a central island.
A suitably sized storage room has been incorporated in the corridor between the master bedroom and the child's bedroom.
The master bedroom includes a private bathroom and a closet.
Upon your approval of the plan, I would be pleased to receive progress photos of the construction phases.
Email: eng.afshinbahrami@gmail.com
We look forward to your feedback.
Best regards,