
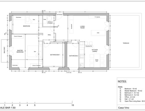
00030 Colonna, Metropolitan City of Rome, Italy
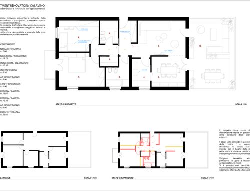
Residenziale - Appartamento
Descrizione
In English is at the bottom of the email
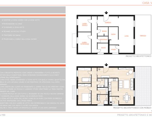
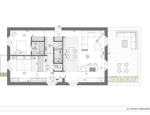
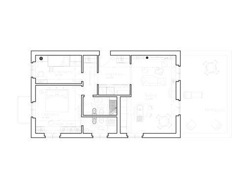
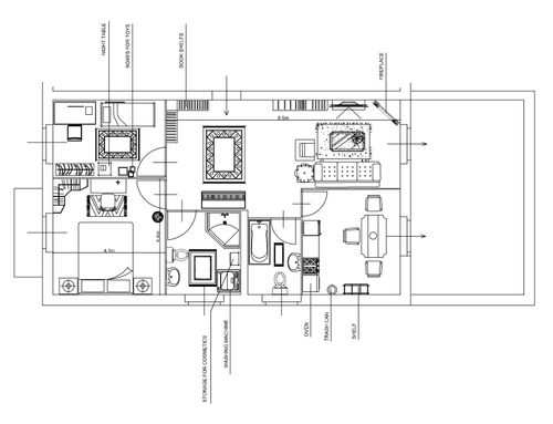
- Invertire zona giorno/notte e riorganizzare gli spazi
-L’edificio ha 50 anni. Suppongo che non ci siano problemi a togliere i muri che non sono portanti.
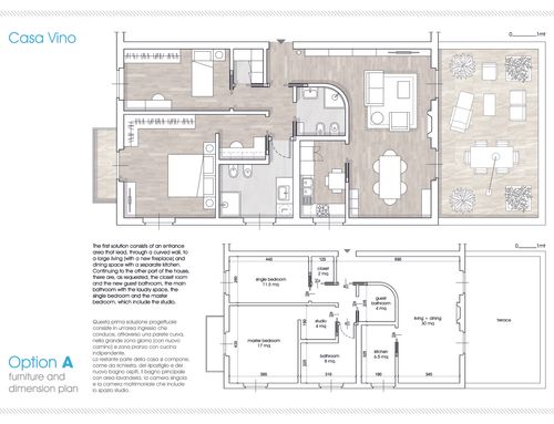
-Vorremo spostare la parte giorno dove si trova il terrazzo e separare se possibile quella notta con un muro divisorio (se ha senso)
-Idealmente avremmo bisogno di un ripostiglio e un piccolissimo studio dove mettere una piccola scrivania e sedia (utilizzando una delle finestre). Il piccolo studio potrebbe stare anche nella zona notte.
-Abbiamo bisognio di mantenere due bagni
-Si puo’ togliere il camino dall’attuale cucina e eventualmente crearne uno nella nuova zona giorno. Magari tra le due finestre che danno sul terrazzo
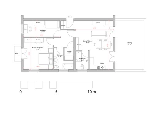
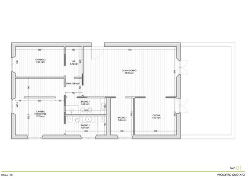
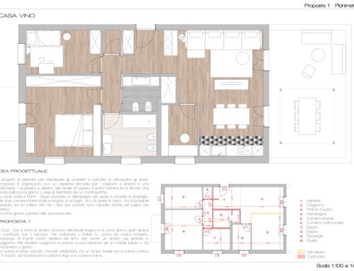
-the desire is too exchange the kitchen and the bedroom so to have the night area on the same area and the living/kitchen area close to the terrace
-ideally I would like to have a wall to separate completely the night area to the living/kitchen one (if makes sense)
- we need a storage room (the dimension as today) and a very small studio (just for a desk and chair) and eventually this can also be located in one room
-we need to keep 2 bathrooms and both with showers is fine
-in the current kitchen there is a fire place and we are fine to remove it as we could also build a new one in the living room