
71036 Lucera, Province of Foggia, Italy
Residenziale - Appartamento
Descrizione
ENG
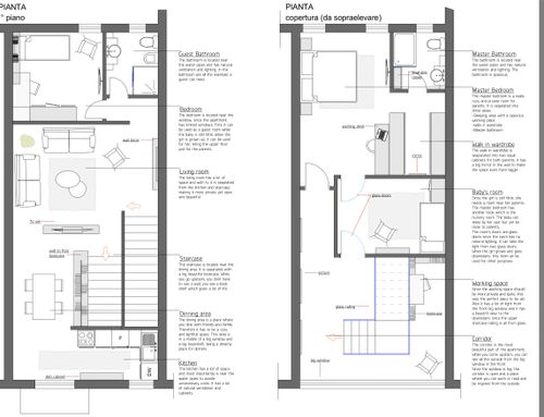
Dear designers, this apartment has two floors (first floor plus an half-storey that can be build on the attic) it's independent and has a private access (see photos). On the first floor, we need to realize a staircase that leads to the terrace. On the terrace we have the possibility to raise an additional floor. The terrace is entirely owned by us and its square footage is exactly the same as the floor below. We will raise an additional floor in the future installing a wooden structure. At the moment I'd like to cover only part of the terrace and leave the rest open to use in the summer.
Elements we'd like to have:
1) Walk-in closet and en-suite bathroom in the master bedroom. The bearing pillars are marked in the floorplan.
2) We need help in the design and position of the new staircase.
3) We need a living room, a bedroom for our daughter and a guest bathroom. If there is space, we could also use a study room.
We are a family of three.
I will also like to receive projects that will give value to the front-street entrance.
--------------------
ESP
Estimados diseñadores, este apartamento tiene dos pisos (primer piso más un medio piso que se puede construir en el ático) es independiente y tiene un acceso privado (ver fotos).
En el primer piso, debemos realizar una escalera que conduzca a la terraza. En la terraza tenemos la posibilidad de subir un piso adicional.
La terraza es de nuestra propiedad y sus metros cuadrados son exactamente iguales a los del piso de abajo.
Levantaremos un piso adicional en el futuro instalando una estructura de madera.
Por el momento me gustaría cubrir solo una parte de la terraza y dejar el resto abierto para usar en el verano.
Elementos que nos gustaría tener:
1) Walk-in closet y baño en suite en el dormitorio principal. Los pilares de apoyo están marcados en el plano del piso.
2) Necesitamos ayuda en el diseño y la posición de la nueva escalera.
3) Necesitamos una sala de estar, un dormitorio para nuestra hija y un baño de visitas. Si hay espacio, también podríamos añadir una sala de estudio.
Somos una familia de 3. También me gustaría recibir proyectos que den valor a la entrada de la calle.
--------------------
ITA
L'appartamento che si vuole ristrutturare, risulta essere su due livelli, 1° piano e copertura da sopraelevare (in parte). E' indipendente e vi si accede tramite una scala indipendente (allego foto). Al primo piano bisogna realizzare una scala per accedere al terrazzo, dove realizzerò una sopraelevazione, per cui si tenga conto anche di questo spazio. Si consideri che il terrazzo è tutto di proprietà ed ha una metratura uguale a quella sottostante (la sopraelevazione verrà realizzata in legno), considerando che è tutto sopraelevabile, vorrei chiuderlo solo in parte, lasciando una porzione che mi dia la possibilità di utilizzare un'area scoperta per l'estate.
Va data preferenza a:
1) cabina armadio e bagno nella camera da letto padronale (le colonne montanti sono indicate in pianta);
2) disegno della scala e posizionamento;
3) vorrei una zona living, una stanzetta per la bambina e un bagnetto di servizio a disposizione anche degli ospiti. Eventualmente una zona studio (ne terrò conto).
Nucleo familiare: 3 persone.
Nel dare il miglior giudizio, terrò conto anche di chi mi darà una soluzione per valorizzare il prospetto fronte strada con l'ingresso!!!