Naples, Metropolitan City of Naples, Italy
Residenziale - Appartamento
Descrizione
Video Tour: https://www.dropbox.com/s/uven1t1ka11akhi/Video%20Sixth%20Floor.m4v?dl=0
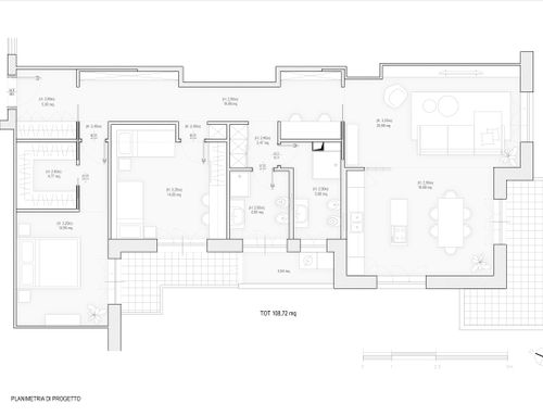
L'appartamento รจ da ristrutturare completamente e quindi c'รจ possibilitร di rivedere la disposizione degli spazi. La casa sarร l'abitazione principale di una coppia di trentenni (camera da letto matrimoniale con soluzioni di guardaroba capienti). Va tenuta presente la possibilitร di "espandere" la famiglia nel prossimo futuro (almeno una seconda stanza da letto va considerata come possibile cameretta da uno\due letti singoli). Va tenuta presente la possibilitร di ospitare due persone almeno con un divano letto\letto a scomparsa matrimoniale. Possibilmente l'area giorno va collocata dove ci sono le stanze c. e d. le cui finestre e balconi sono molto panoramiche. I bagni devono essere due (la posizione della mandata dell'acqua e della colonna fecale sono indicate in planimetria, non sono esattamente precise al cm ma rendono bene l'idea). Non vorrei soluzioni diverse dallo scarico diretto (cioรจ non scarichi con pompe elettrificate) e possibilmente eviterei anche "gradini" se fosse possibile. Dei due bagni se uno potesse avere la vasca sarebbe interessante ma non รจ un requisito tassativo. Avere almeno una doccia in entrambi sarebbe invece piรน importante. Per quanto riguarda la cucina, รจ accettabile una soluzione non abitabile con ambiente comune con la zona giorno, vorremmo perรฒ che l'ambiente cucina possa essere "nascosto" o comunque in un certo senso separato in qualche modo dal contatto diretto 24h su 24h dalla zona giorno. La cucina deve comunque essere dotata di tutto (doppio lavello, lavastoviglie, forno, frigorifero, microonde e un minimo di spazio di lavoro). Tra zona giorno e\o camera da letto matrimoniale sono interessanti soluzioni che facilitino due postazioni di "smart working" (computer portatile e\o al massimo portatile piรน un monitor). Anche in questo caso una postazione รจ necessaria, la seconda รจ meno tassativa. Dei balconi, quello esposto verso il panorama verrebbe liberato dalla attuale veranda (si vede in foto, non in planimetria) mentre quello esposto verso la "strada" rimarrebbe verandato fino alla ringhiera lasciando "scoperti" solo i balconi delle stanze a. e b. attuali (vedi planimetria). Questa veranda puรฒ ospitare la lavatrice o attivitร simili di stoccaggio ma non puรฒ diventare "abitabile". Per l'arredamento ci piacerebbe uno stile moderno con richiami vintage, colori luminosi, budget tra il medio e medio basso (IKEA, Maison du Monde e simili sono da considerare) con magari qualche elemento per la funzionalitร da valutare anche su budget un po' piรน alti ma che restino elementi specifici (addirittura componenti su misura se aiutano la funzionalitร degli ambienti, ma non come regola generale). Un ripostiglio potrebbe essere una buona idea per alleggerire altre aree, ma non so se c'รจ margine di spazio per ricavarlo senza sacrificare altre aree, resta un punto aperto da valutare in base alle soluzioni proposte. Se ci fosse margine per avere anche una piccola area di ripostiglio sarebbe L'appartamento dovrร essere reso indipendente con caldaia e riscaldamenti (probabilmente a pavimento) con poi predisposizione o installazione anche di condizionatori. Pur dovendo cambiare gli infissi, si tratta di un condominio non รจ possibile cambiare il prospetto esterno del palazzo (in termini di apparenza e posizione delle finestre e dei balconi).
ENG
The apartment is to be completely renovated and therefore there is the possibility to review the layout of the spaces. The house will be the main residence of a couple in their thirties (double bedroom with large wardrobe solutions). The possibility of "expanding" the family in the near future should be kept in mind (at least a second bedroom should be considered as a possible bedroom with one \ two single beds). It should be borne in mind the possibility of hosting two people at least with a double sofa bed / foldaway bed. Possibly the living area should be placed where the rooms are c. and d. whose windows and balconies are very panoramic. The bathrooms must be two (the position of the water supply and the fecal column are indicated on the plan, they are not exactly accurate to the cm but give a good idea). I would not like solutions other than direct discharge (ie not discharges with electrified pumps) and I would possibly also avoid "steps" if it were possible. Of the two bathrooms, if one could have a bathtub it would be interesting but it is not a mandatory requirement. Having at least one shower in both would be more important. As for the kitchen, an uninhabitable solution with a common area with the living area is acceptable, but we would like the kitchen area to be "hidden" or in some way separated in some way from direct contact 24/7 from the area. day. The kitchen must still be equipped with everything (double sink, dishwasher, oven, refrigerator, microwave and a minimum of work space). Between the living area and \ or the double bedroom there are interesting solutions that facilitate two "smart working" stations (laptop and / or laptop plus a monitor). Also in this case a station is necessary, the second is less mandatory. Of the balconies, the one facing the panorama would be freed from the current veranda (seen in the photo, not in the plan) while the one facing the "street" would remain up to the railing, leaving only the balconies of the rooms "uncovered" and b. current (see plan). This veranda can accommodate the washing machine or similar storage but cannot become "habitable". For the furniture we would like a modern style with vintage references, bright colors, a budget between the medium and medium-low (IKEA, Maison du Monde and the like are to be considered) with maybe some element for functionality to be evaluated even on a budget a little higher but that specific elements remain (even tailor-made components if they help the functionality of the environments, but not as a general rule). A closet could be a good idea to lighten other areas, but I don't know if there is room for space to obtain it without sacrificing other areas, it remains an open point to be evaluated based on the proposed solutions. If there was room for even a small storage area, the apartment would have to be made independent with boiler and heating systems (probably underfloor) with the provision or installation of air conditioners. While having to change the fixtures, it is a condominium, it is not possible to change the external elevation of the building (in terms of appearance and position of the windows and balconies).
SPA
El piso se va a reformar por completo y por tanto existe la posibilidad de revisar la distribuciรณn de los espacios. La casa serรก la residencia principal de una pareja en la treintena (dormitorio doble con grandes soluciones de guardarropa). Debe tenerse en cuenta la posibilidad de "expandir" la familia en un futuro cercano (al menos un segundo dormitorio debe considerarse como un posible dormitorio con una / dos camas individuales). Hay que tener en cuenta la posibilidad de alojar al menos dos personas con un sofรก cama doble \ cama plegable. Posiblemente la sala de estar deberรญa ubicarse donde estรกn las habitaciones c. y d. cuyas ventanas y balcones son muy panorรกmicos. Los baรฑos deben ser dos (la posiciรณn del suministro de agua y la columna fecal estรกn indicadas en el plano, no son exactamente exactos al cm pero dan una buena idea). No me gustarรญa soluciones distintas a la descarga directa (es decir, no descargas con bombas electrificadas) y posiblemente tambiรฉn evitarรญa "pasos" si es posible. De los dos baรฑos, si uno pudiera tener baรฑera serรญa interesante pero no es un requisito obligatorio. Tener al menos una ducha en ambos serรญa mรกs importante. En cuanto a la cocina, una soluciรณn inhabitable con un รกrea comรบn con la sala de estar es aceptable, pero nos gustarรญa que el รกrea de la cocina estuviera "escondida" o de alguna manera separada de alguna manera del contacto directo 24/7 con el รกrea. dรญa. Sin embargo, la cocina debe estar equipada con todo (fregadero doble, lavavajillas, horno, frigorรญfico, microondas y un mรญnimo de espacio de trabajo). Entre la sala de estar y \ o el dormitorio doble hay soluciones interesantes que facilitan dos puestos de "trabajo inteligente" (portรกtil y / o portรกtil mรกs un monitor). Tambiรฉn en este caso es necesaria una estaciรณn, la segunda es menos obligatoria. De los balcones, el que da al panorama quedarรญa liberado de la galerรญa actual (que se ve en la foto, no en el plano) mientras que el que da a la "calle" quedarรญa hasta la barandilla, dejando sรณlo los balcones de las habitaciones "descubiertos". y B. actual (ver plano de planta). Esta veranda puede acomodar la lavadora o almacenamiento similar pero no puede convertirse en "habitable". Para los muebles nos gustarรญa un estilo moderno con referencias vintage, colores brillantes, un presupuesto entre medio y medio-bajo (se deben considerar IKEA, Maison du Monde y similares) con quizรกs algunos elementos de funcionalidad a evaluar incluso con un presupuesto un poco. superior pero que quedan elementos especรญficos (incluso componentes a medida si ayudan a la funcionalidad de los entornos, pero no como regla general). Un armario podrรญa ser una buena idea para aligerar otras รกreas, pero no sรฉ si hay espacio para obtenerlo sin sacrificar otras รกreas, sigue siendo un punto abierto a evaluar en base a las soluciones propuestas. Si hubiera espacio incluso para un รกrea de almacenamiento pequeรฑa, el apartamento tendrรญa que hacerse independiente con sistemas de caldera y calefacciรณn (probablemente por suelo radiante) con la provisiรณn o instalaciรณn de acondicionadores de aire.
Si bien tiene que cambiar los accesorios, es un condominio, no es posible cambiar la elevaciรณn externa del edificio (en tรฉrminos de apariencia y posiciรณn de las ventanas y balcones).