
24043 Caravaggio, Province of Bergamo, Italy
Residenziale - Casa
Descrizione
ITALIAN - ENGLISH - SPANISH
Google maps location:
https://goo.gl/maps/zAJkK1q6QYTiAoqw5
ITALIAN
VINCOLI/ LIMITAZIONI
la villa รจ costruita sul territorio italiano, per cui vale la legge italiana e quella del comune di Caravaggio.
http://www.comune.caravaggio.bg.it/upload/caravaggio_ecm10/documentiallegati/allegatoBRegolamentoEdilizio_13660_14474.pdf
โ Non deve essere classificata come casa di lusso ex Decreto del 2 agosto 1969 โ Min. Lavori Pubblici
http://www.sicet.it/archivio-web/pages/urbanistica/leggi_urb/DM_1072-69.html
- Non sono previsti, nรฉ possibili ampliamenti di volumetria superiori a 170 mc.
- Non escludiamo, ma vorremmo limitare al minimo indispensabile, i lavori di demolizione/costruzione/ristrutturazione
- La somma (OMNICOMPRENSIVA) di tutti gli interventi previsti non dovrร superare i 200.000 euro
STATO ATTUALE โ AS IS
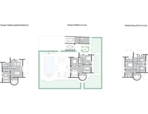
Lโimmobile edificato nel 1970 e mai sottoposto a ristrutturazione (ad eccezione del tetto), si identifica come villa unifamiliare libera su 4 lati su area verde privata; attualmente si presenta con tre livelli di calpestio e precisamente una zona semi-interrata di circa 100 mq con altezza soffitto 220cm, adibita a cantina, un piano rialzato di circa 100 mq con altezza soffitto 300cm adibito ad abitazione civile e un secondo piano di circa 100mq con altezza soffitto 300cm ad abitazione civile. Lโedificio รจ completato da un area di circa 400 mq adibita a giardino.
Attualmente, lโedificio ha un accesso pedonale dalla pubblica via, e due accessi carrai che conducono allโautorimessa.
l piani abitativi (piano rialzato e secondo piano) si compongono nel seguente modo:
ingresso che ci conduce alla cucina abitabile, tramite disimpegno si raggiunge il comodo soggiorno, le due camere da letto ed il bagno con la vasca; completano gli appartamenti i balconi per lโintero lato nord e sud.
Il piano seminterrato, si compone:
โ di un locale di 100 mq con altezza 220cm. LโInterrato รจ illuminato da luce naturale esterna con finestre a bocca di lupo apribili.
Completano due box in muratura fuori terra, divisi da un locale lavanderia.
La scala interna a chiocciola collega tutti i piani della villa.
Le facciate dellโimmobile sono per la gran parte ricoperte di piastrelle (klinker) sui toni del beige/rosato e del tabacco che non ci dispiacerebbe poter conservare, riuscendo, perรฒ comunque a rinnovare il look dellโedificio rendendolo piรน contemporaneo
STATO DI PROGETTO-DESIDERATO โ TO BE
Vorremmo ricavare unโunica abitazione su due piani; una casa luminosa, elegante, accogliente e moderna che racchiuda la funzionalitร necessaria per l'uso quotidiano, con l'inserimento di tratti teatrali ed elementi che possano sorprendere ospiti e visitatori.
La casa dovrร esser studiata per ospitare con confort una famiglia di 4 persone (2 adulti e 2 bambini), ma prevedere anche una opportuna sistemazione per i miei genitori quando dovesse esser richiesto (considerando che in futuro potrebbe esser necessario che vivano permanentemente con noi).
Idealmente sul piano rialzato di circa 100mq vorremmo ricavare la zona giorno con ALMENO- bagno, una camera per gli ospiti (i miei genitori), cucina, sala pranzo e soggiorno, questโultimi vorremmo si sviluppassero sul lato giardino invadendo lo stesso con un corpo verandato o giardino dโinverno,
mentre al secondo piano la parte notte/studio con Camera matrimoniale con cabina armadio, due camere singole (una per ciascuno dei bimbi), uno studio da dove svolgere le mie attivitร professionali, bagno(+))
Complessivamente gli ambienti minimi che la casa dovrร presentare sono:
OBBLIGATORIO:
1. Camera matrimoniale con cabina armadio,
2. due camere singole (una per ciascuno dei bimbi),
3. uno studio da dove svolgere le mie attivitร professionali,
4. una camera matrimoniale per gli ospiti (i miei genitori),
5. una cucina ampia e vivibile, in grado di ospitare un frigorifero doppio
6. una sala da pranzo
7. uno spazio esterno protetto facilmente accedibile dalla cucina/zona pranzo fruibile per pranzi informali
8. un salotto dove potersi ritrovare con la famiglia o con gli amici per vedere un film e chiaccherare,
9. una palestra,
10. almeno due bagni,
11. una lavanderia,
12. un ripostiglio dove riporre gli oggetti per la pulizia della casa.
13. una cantina per scorte cibo e vino
FORTEMENTE DESIDERATO:
1. un secondo studio/locale polivalente per l'utilizzo del resto della famiglia,
2. una taverna per accogliere in maniera informale amici nostri e dei bimbi
3. un giardino d'inverno o una serra bioclimatica,
4. un bagno aggiuntivo con accesso diretto dalla camera matrimoniale,
5. sala cinema.
6. una piscina
OPZIONALE:
1. una sala giochi dove poter installare old school arcade videogame, flipper e simili,
2. Spazio esterno per lโallenamento
Nel dettaglio:
ci piacerebbe che tutta la casa avesse unโimpronta โurban jungleโ per garantire una compenetrazione degli spazi esterni con lโinterno dellโedificio
โข ingresso/vano scale โ Stile di arredo suggerito โurban jungleโ -:
โข 4 camere da letto:
โข Prima matrimoniale โ Stile di arredo suggerito โclassico moderno/shabby chicโ - deve includere una cabina armadio walk-in ed (eventualmente) bagno in camera.
โข Seconda matrimoniale โ Stile di arredo suggerito โclassicoโ โ per i nonni, meglio se al piano terra
โข Prima camera singola โ Stile di arredo suggerito โecletticoโ
โข Seconda camera singola - โ Stile di arredo suggerito โecletticoโ
โข Bagno 1 โ zona notte Stile di arredo suggerito โclassico modernoโ: finestrato con vasca da bagno e doccia;
โข Bagno 2 โ zona giorno Stile di arredo suggerito โcontemporaneoโ : finestrato con ampio piatto doccia;
โข Bagno 3 โ zona notte Stile di arredo suggerito โshabby /boho chicโ: (opzionale con accesso dalla camera matrimoniale) se possibile finestrato con piatto doccia; I bagni non devono prevedere porzione di Lavanderia che risulta giร esistente e ricavata nella struttura dei box.
โข Cucina โ Stile di arredo suggerito โcontemporaneo - : ampia e predisposta ad accogliere svariati accessori per la cucina (affettatrice, centrifuga, friggitrice, frullatore, macchina del pane, ecc) e con ampi spazi di appoggio. Una penisola o unโisola sarebbero soluzioni gradite laddove possibili e funzionali per poterle utilizzare per i pranzi veloci quotidiani. La cucina dovrร esser separata dalla sala da pranzo, ma valutiamo positivamente strutture mobili/ porte a scomparsa che permettano, alla bisogna, di metterle in comunicazione.
โข Sala da pranzo โ Stile di arredo suggerito โclassico modernoโ - limitrofa e collegata alla cucina, munita di un tavolo piรน ampio e importante per le cene e i pranzi conviviali
โข Zona Salottoโ Stile di arredo suggerito โclassico modernoโ -: vorremmo che fosse accogliente per piรน persone contemporaneamente e in grado di ospitare un ampio schermo tv e impianto home theatre se non presente โsala cinemaโ.
โข Zona Studio principale: Stile di arredo suggerito โecletticoโ โ ampia scrivania, librerie e spazio espositivo per gli oggetti
โข Zona โsala cinemaโ โ Stile di arredo suggerito โeclettico /boho chicโ -
Altre info e/o indirizzi per lo sviluppo del progetto:
1. la Cucina, sala pranzo e living potrebbero prevedere lโapertura di grandi vetrate e la creazione di una pergola o un Giardino di Inverno che sporga verso lo stesso. Eโ accettabile avere cucina e sala da pranzo unite, laddove sia possibile separarle con porte scorrevoli o simili.
2. Dalla cucina soggiorno dovrebbe poter essere possibile raggiungere direttamente il giardino.
3. Ci piacerebbe se ci fosse la possibilitร di creare uno spazio protetto o un โgiardino segretoโ
4. vorremmo che la scala che mette in comunicazione i vari piani fosse un elemento di disimpegno e ingresso per lโimmobile e vorremmo EVITARE di dover passare in soggiorno o altri locali per raggiungerne altri
5. Ai fini del risparmio energetico e per abbattimento dei costi di manutenzione siamo propensi installazione pannelli fotovoltaici, isolamento facciate mediante insufflaggio in intercapedine, installazione caldaia a pompa di calore per il riscaldamento
6. E' elemento importante la luminositร di ogni ambiente e in particolar modo di quelli che saranno fruiti maggiormente durante le ore diurne, tutti i locali principali dovranno prevedere un impianto di raffrescamento.
7. L'immobile dovrร prevedere elementi attivi e passivi che ne aumentino la sicurezza e la tutela della famiglia nei confronti di rischio ladri e aggressioni.
8. L'immobile รจ circondato da un ampio giardino e vorremmo che lo spazio interno e quello esterno (specialmente durante la bella stagione) possa sfruttarsi senza soluzione di continuitร .
9. Il giardino dovrร esser studiato per garantire la privacy dell'immobile, accogliere i momenti di svago e relax della famiglia e dei propri amici, includendo angoli che possano stimolare i giochi avventurosi dei due piccoli di casa (0 e 3 anni attualmente).
10. lo spazio contenitivo รจ molto importante e deve esser ben distribuito nei vari locali dell'edificio
Sottotetto
Attualmente il sottotetto non prevede spazi sfruttabili.
Interrato
in questo piano si richiede una progettazione che, se non altrove dislocati, includa la sala cinema, la cantina, lโarea giochi e la palestra o altri soluzioni compatibili.
ENGLISH
CONSTRAINTS / LIMITATIONS
the villa is built on the Italian territory, for which the Italian law and that of the municipality of Caravaggio are valid.
http://www.comune.caravaggio.bg.it/upload/caravaggio_ecm10/documentiallegati/alutturaBRegolazioneEdilizio_13660_14474.pdf
- It must not be classified as a luxury home pursuant to the Decree of 2 August 1969 - Min. Public Works
http://www.sicet.it/ enforcement-web/pages/urbanistica/leggi_urb/DM_1072-69.html
- No expansions of volume greater than 170 mc. are foreseen or possible
- We do not exclude, but we would like to limit the demolition / construction / renovation works to a minimum
- The sum (ALL INCLUSIVE) of all the planned interventions should not exceed โฌ 200,000
CURRENT STATE - AS IS
The property built in 1970 and never subjected to renovation (with the exception of the roof), is identified as a single-family villa free on 4 sides on a private green area; currently it has three levels of walking and precisely a semi-underground area of โโabout 100 square meters with a ceiling height of 220cm, used as a cellar, a mezzanine floor of about 100 square meters with a ceiling height of 300cm used as a civil residence and a second floor of about 100 square meters used with ceiling height 300cm for residential use. The building is completed by an area of โโabout 400 square meters used as a garden.
Currently, the building has pedestrian access from the public street, and two driveways that lead to the garages.
The residential floors (mezzanine and second floor) are made up as follows:
entrance that leads us to the eat-in kitchen, through the hallway you reach the comfortable living room, the two bedrooms and the bathroom with tub; the apartments are completed by balconies for the entire north and south side.
The basement floor consists of:
- of a room of 100 square meters with a height of 220cm. The basement is illuminated by external natural light with openable windows.
There are two garages for the cars above ground , divided by a laundry room.
The internal spiral staircase connects all the floors of the villa.
The facades of the building are mostly covered with tiles (klinker) in shades of beige / pink and tobacco that we would not mind being able to keep, managing, however, to renew the look of the building making it more contemporary
DESIRED PROJECT STATUS - TO BE
We would like to create a single house on two floors; a bright, elegant, welcoming and modern house that contains the functionality necessary for everyday use, with the inclusion of theatrical features and elements that may surprise guests and visitors.
The house will have to be designed to comfortably accommodate a family of 4 (2 adults and 2 children), but also provide suitable accommodation for my parents when required (considering that in the future it may be necessary for them to live permanently with us) .
Ideally on the mezzanine floor of about 100sqm we would like to obtain the living area - bathroom, kitchen, dining room and living room, the latter we would like to develop on the garden side invading the same with a veranda (winter garden), a guest room (my parents),
while on the second floor the sleeping area / study (Double bedroom with walk-in closet, two single bedrooms (one for each of the children), a study from which to carry out my professional activities, bathroom (+))
Overall, the minimum environments that the house must present are:
MANDATORY:
1. Double bedroom with walk-in closet,
2. two single bedrooms (one for each of the children),
3. a studio from which to carry out my professional activities,
4. a double room for guests (my parents),
5. a large and livable kitchen, able to accommodate a double size refrigerator
6. a dining room
7. a protected outdoor space easily accessible from the kitchen / dining area usable for informal lunches
8. a living room where you can meet with family or friends to see a movie and chat,
9. a gym,
10. at least two bathrooms,
11. a laundry,
12. a closet where you can store items for cleaning the house.
STRONGLY WANTED:
1. a second studio / multipurpose room for the use of the rest of the family,
2. a tavern to informally welcome our friends and children
3. a winter garden or a bioclimatic greenhouse,
4. an additional bathroom with direct access from the master bedroom,
5. a cellar for food and wine.
6. home cinema room.
7. a swimming pool
OPTIONAL:
1. a games room where you can install old school arcade videogames, pinball machines and the like,
2. Outdoor area for training
In detail:
we would like the whole house to have an "urban jungle" imprint to ensure interpenetration of the outdoor spaces within the building
โข entrance / stairwell - Suggested furniture style "urban jungle" -:
โข 4 bedrooms:
โข First double - Suggested โshabby / boho chicโ furniture style - must include a walk-in closet and (possibly) en-suite bathroom.
โข Second double - Furnishing style suggested โclassicโ - for grandparents, preferably on the ground floor
โข First single bedroom - Suggested "eclectic" furniture style
โข Second single bedroom - - Suggested "eclectic" furniture style
โข Bathroom 1 - sleeping area Furnishing style suggested "shabby / boho chic": window with bathtub and shower;
โข Bathroom 2 - living area Suggested โcontemporaryโ furnishing style: window with large shower tray;
โข Bathroom 3 - sleeping area Suggested furniture style "shabby / boho chic": (optional with access from the master bedroom) if possible with window with shower tray; The bathrooms must not include a portion of laundry which is obtained in the structure of the boxes.
โข Kitchen - Furnishing style suggested โcontemporary -: large and designed to accommodate various kitchen accessories (slicer, juicer, deep fryer, blender, bread maker, etc.) and with ample storage space. A peninsula or an island would be welcome solutions where possible and functional to be able to use them for quick daily lunches. The kitchen will have to be separated from the dining room, but we positively evaluate mobile structures / retractable doors that allow, if necessary, to put them in communication.
โข Dining room - Furnishing style suggested "modern classic" - adjacent and connected to the kitchen, equipped with a larger and more important table for convivial dinners and lunches
โข Lounge area - Furnishing style suggested "modern classic" -: we would like it to be welcoming for more people at the same time and able to accommodate a large TV screen and home theater system if there is no "cinema room".
โข Main Study Area: Suggested "eclectic" furniture style - large desk, bookcases and display space for objects
โข "Cinema room" area - Furnishing style suggested "eclectic / boho chic" -
Other info and / or addresses for the development of the project:
1. the kitchen, dining room and living room could include the opening of large windows and the creation of a pergola or a winter garden that protrudes towards it. It is acceptable to have the kitchen and dining room together, where it is possible to separate them with sliding doors or the like.
2. It should be possible to reach the garden directly from the living room kitchen.
3. We would like it if there was the possibility of creating a protected space or a "secret garden"
4. we would like the staircase that connects the various floors to be an element of disengagement and entrance to the property and we would like to AVOID having to go into the living room or other rooms to reach others
5. For the purpose of energy saving and to reduce maintenance costs we are inclined to install photovoltaic panels, insulation of facades by blowing into the cavity, installation of a heat pump boiler for heating
6. The brightness of each environment is important and in particular of those that will be used most during the day, all the main rooms must include a cooling system.
7. The property must include active and passive elements that increase the safety and protection of the family against the risk of thieves and assaults.
8. The property is surrounded by a large garden and we would like the internal and external space (especially during the summer) to be exploited seamlessly.
9. The garden must be designed to ensure the privacy of the property, accommodate moments of leisure and relaxation for family and friends, including corners that can stimulate the adventurous games of the two children (currently 0 and 3 years old).
10. the containment space is very important and must be well distributed in the various rooms of the building
Attic
Currently the attic does not provide usable spaces.
Underground
this floor requires minimal design which, if not located elsewhere, includes the cinema room, cellar, play area and gym or other compatible solutions.
SPANISH
RESTRICCIONES / LIMITACIONES
la villa estรก construida en territorio italiano, por lo que se aplican la ley italiana y la del municipio de Caravaggio.
http://www.comune.caravaggio.bg.it/upload/caravaggio_ecm10/documentiallegati/allegatoBRegolamentoEdilizio_13660_14474.pdf
-No debe clasificarse como vivienda de lujo de conformidad con el Decreto de 2 de agosto de 1969 - Min. Obras Pรบblicas
http://www.sicet.it/archivio-web/pages/urbanistica/leggi_urb/DM_1072-69.html
- No se esperan (prevรฉn) ni posibles ampliaciones de volumen superiores a 170 mc.
- No excluimos, pero nos gustarรญa limitar al mรญnimo los trabajos de demoliciรณn / construcciรณn / renovaciรณn
- La suma (TODO INCLUIDO) de todas las intervenciones previstas no deben de superar los 150.000 โฌ
ESTADO ACTUAL โ AS IS
La propiedad construida en 1970 y nunca sometida a renovaciรณn (a excepciรณn del techo), se identifica como una mansion unifamiliar libre por los 4 lados en una zona verde privada; Actualmente tiene tres niveles transitables (de pisoteo) y precisamente un รกrea semi-subterrรกnea de unos 100 metros cuadrados con una altura de techo de 220cm, utilizada como cava, un entrepiso de unos 100 metros cuadrados con una altura de techo de 300cm utilizado como casa residencia y un segundo piso de unos 100 metros cuadrados usados con techo de 300cm de altura para uso residencial.
El edificio se completa con una superficie de unos 400 metros cuadrados destinada a jardรญn.
Actualmente, el edificio cuenta con acceso peatonal desde la vรญa pรบblica, y dos accesos que conducen al garaje.
Los pisos de vivienda (entrepiso y segundo piso) se componen de la siguiente manera: una entrada que conduce a la cocina comedor, a travรฉs del pasillo se llega al living ( la sala de estar), los dos dormitorios y el baรฑo con tina; Los departamentos se completan con balcones para todo el lado norte y sur.
La planta del sรณtano comprende:
- de una habitaciรณn de 100 metros cuadrados con una altura de 220cm. El sรณtano estรก iluminado por luz natural externa con ventanas que se pueden abrir.
Dos cajones de mamposterรญa sobre rasante completos, divididos por un lavadero.
La escalera de caracol interna conecta todos los pisos de la villa.
Las fachadas del edificio estรกn cubiertas en su mayorรญa con azulejos (klinker) en tonos beige / rosa y tabaco que nos encantaria poder conservar, logrando.. sin embargo, renovar el aspecto del edificio haciรฉndolo mรกs contemporรกneo
ESTADO DESEADO POR EL PROYECTO - TO BE
Nos gustarรญa crear una sola casa en dos plantas; una casa luminosa, elegante, acogedora y moderna que contiene funcionalidades necesarias para el uso diario, con la inclusiรณn de caracterรญsticas y elementos teatrales que pueden sorprender a huรฉspedes y visitantes.
La casa debe estar diseรฑada para albergar cรณmodamente a una familia de 4 (2 adultos y 2 niรฑos), pero tambiรฉn brindar un alojamiento adecuado para mis padres cuando se requiera (considerando que en un futuro puede ser necesario que vivan permanentemente con nosotros).
Idealmente, en el entrepiso de unos 100m2 nos gustarรญa obtener el area living: baรฑo, cocina, comedor y sala de estar, este รบltimo nos gustarรญa desarrollar en el lado del jardรญn invadiendo el mismo con una terraza (jardรญn de invierno), una habitaciรณn de invitados (mis padres),
mientras que en el segundo piso el รกrea de dormir / estudio (habitaciรณn doble con walk-in closet, dos habitaciones individuales (una para cada uno de los niรฑos), un estudio desde el cual realizar mis actividades profesionales, baรฑo (+))
En general, los ambientes mรญnimos que debe presentar la casa son:
OBLIGATORIO:
1. Habitaciรณn doble con vestidor,
2. dos habitaciones individuales (una para cada uno de los niรฑos),
3. un estudio desde el que desarrollar mis actividades profesionales,
4. una habitaciรณn doble para invitados (mis padres),
5. una cocina grande y habitable, con capacidad para un refrigerador doble "lado a lado"
6. un comedor
7. un espacio al aire libre protegido de fรกcil acceso desde la cocina / comedor utilizable para almuerzos informales
8. una sala de estar donde puedernos reunir con familiares o amigos para ver pelรญcula y charlar
9. un gimnasio,
10. al menos dos baรฑos,
11. una lavanderรญa,
12. una sala de almacenamiento para guardar los artรญculos de limpieza del hogar.
FUERTEMENTE DESEADO:
1. un segundo estudio / salรณn multiusos para uso del resto de la familia,
2. una taberna acogedora pero informal donde puedan nuestros hijos quedarse y pasar del tiempo de calidad con amigos
3. un jardรญn de invierno o un invernadero bioclimรกtico
4. un baรฑo adicional con acceso directo desde el dormitorio principal,
5. un espacio/una bodega para comida y vino.
6. una piscina
OPCIONAL:
1. una sala juegos donde puedes instalar old school arcade videogames, flipper ecc
2. sala de cine.
3. รrea de entrenamiento ( Gym) al aire libre
En detalle: nos gustarรญa que toda la casa tuviera una impresiรณn de "jungla urbana" para garantizar la interpenetraciรณn de los espacios exteriores dentro del edificio.
โข entrada / hueco de escalera - Estilo de mobiliario sugerido de "jungla urbana"
โข 4 dormitorios:
- Primera habitaciรณn doble - Estilo de mobiliario sugerido: โclรกsico moderno / shabby chicโ - debe incluir un vestidor y (posiblemente) baรฑo en suite.
- Segunda habitaciรณn doble - Estilo de decoraciรณn sugerido: "clรกsico" - para abuelos, preferiblemente en la planta baja
- Primera habitaciรณn individual: estilo de mobiliario: "eclรฉctico"
- Segunda habitaciรณn individual - - Estilo de mobiliario "eclรฉctico"
โข 3 baรฑos
- Baรฑo 1 - ร rea de dormitorio, Estilo de decoraciรณn sugerido: "shabby / boho chic": ventana con baรฑera y ducha;
- Baรฑo 2 - en la zona living Estilo de mobiliario sugerido: โcontemporรกneoโ ventana con plato de ducha grande;
- Baรฑo 3 - en el dormitorio principal Estilo sugerido: "shabby / boho chic": (opcional con acceso desde el dormitorio principal) si es posible con ventana con plato de ducha; Los baรฑos no deben incluir una porciรณn de lavanderรญa ya que esta se encuentra afuera cerca a los garages.
โข Cocina - Estilo de mobiliario sugerido: โcontemporรกneo -: grande y diseรฑada para acomodar varios accesorios de cocina (rebanadora, exprimidor, freidora, licuadora, panificadora, etc.) y con amplio espacio de almacenamiento. Una penรญnsula o una isla serรญan bienvenidas soluciones siempre que sea posible y funcionales para poder utilizarlas para almuerzos diarios rรกpidos. La cocina debe estar separada del comedor, pero valoramos positivamente las estructuras mรณviles / puertas retrรกctiles que permitan, si es necesario, ponerlas en comunicaciรณn.
โข Comedor - Estilo de mobiliario sugerido: "clรกsico moderno" - adyacente y conectado a la cocina, equipado con una mesa mรกs grande e importante para cenas y almuerzos agradables
โข Zona salรณn - Estilo de mobiliario sugerido "clรกsico moderno" -: nos gustarรญa que fuera acogedor para varias personas al mismo tiempo y que pudiera acomodar una gran pantalla de TV en caso no sea posible obtener una "sala de cine".
โข รrea de estudio principal: estilo de mobiliario: "eclรฉctico" escritorio grande, estanterรญas para libros y espacio de exhibiciรณn para objetos
โข รrea "Sala de cine": estilo de mobiliario sugerido "eclรฉctico / boho chic"
Mas informaciรณn y / o direcciones para el desarrollo del proyecto:
1. La cocina, el comedor y la sala de estar podrรญan incluir la apertura de grandes ventanales y la creaciรณn de una pรฉrgola o un jardรญn de invierno que sobresalga hacia รฉl. Es aceptable tener la cocina y el comedor juntos, donde es posible separarlos con puertas correderas o similares.
2. Desde la cocina / sala de estar deberรญa ser posible llegar directamente al jardรญn.
3. Nos gustarรญa que existiera la posibilidad de crear un espacio protegido o un "jardรญn secreto"
4. Nos encantaria que la escalera que conecta las distintas plantas sea un elemento de pasillo y entrada a la propiedad y quisieramos EVITAR tener que pasar en la sala de estar o otras habitaciones para llegar a otras
5. Con el fin de ahorrar energรญa y reducir los costos de mantenimiento, nos inclinamos a instalar paneles fotovoltaicos, aislamiento de fachadas mediante soplado en la cavidad, instalaciรณn de una caldera con bomba de calor para calefacciรณn.
6. La luminosidad de cada ambiente es un elemento importante y en particular de los que mรกs se utilizarรกn durante el dรญa, todos los ambientes deben incluir un sistema de enfriamiento.
7. La propiedad debe incluir elementos activos y pasivos que aumenten la seguridad y protecciรณn de la familia contra el riesgo de robos y asaltos.
8. La propiedad estรก rodeada por un gran jardรญn y nos gustarรญa que el espacio interno y externo (especialmente durante el verano) se explotara sin interrupciones.
9. El jardรญn debe estar diseรฑado para garantizar la privacidad de la propiedad, albergar momentos de ocio y relajaciรณn familiares y amigos, incluyendo rincones que puedan estimular los juegos aventureros de los dos niรฑos (actualmente 0 y 3 aรฑos).
รtico: Actualmente el รกtico no proporciona espacios utilizables.
Bajo tierra
este piso requiere una planificaciรณn mรญnima que, si no se encuentra en otro lugar, incluye la sala de cine, el sรณtano, el รกrea de juegos y el gimnasio u otras soluciones compatibles.