
Naples, Metropolitan City of Naples, Italy
Residenziale - Appartamento
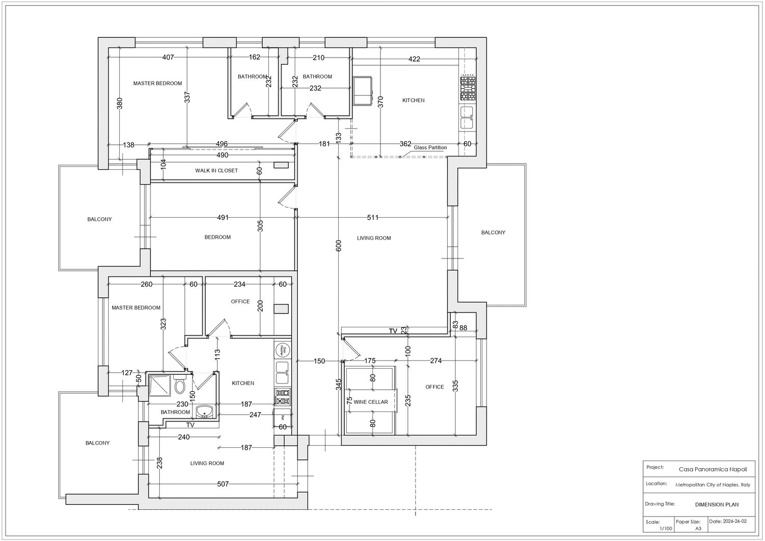
The project involves the subdivision of a 188 sqm top-floor sea-view apartment into two fully independent units, taking advantage of the existing dual entrances and the absence of load-bearing walls. The layout was reorganized to create a 118 sqm primary residence and a 42 sqm rental apartment, while preserving the north-facing sea exposure as the defining element of the design. The living room and kitchen of the main residence were positioned to maximize natural light and maintain a strong visual connection to the sea, following a modern industrial minimalist aesthetic defined by clean lines, glass partitions, and high-quality materials.
A key strategic decision was to retain the existing bathroom locations to avoid unnecessary structural and plumbing interventions. In Apartment A, the bathrooms remain unchanged apart from material and fixture upgrades, while in Apartment B only minor internal adjustments were made to improve functionality. This approach ensured construction efficiency and cost control, while delivering a refined, functional family home alongside a fully independent and well-optimized rental unit.