
Naples, Metropolitan City of Naples, Italy
Residenziale - Appartamento
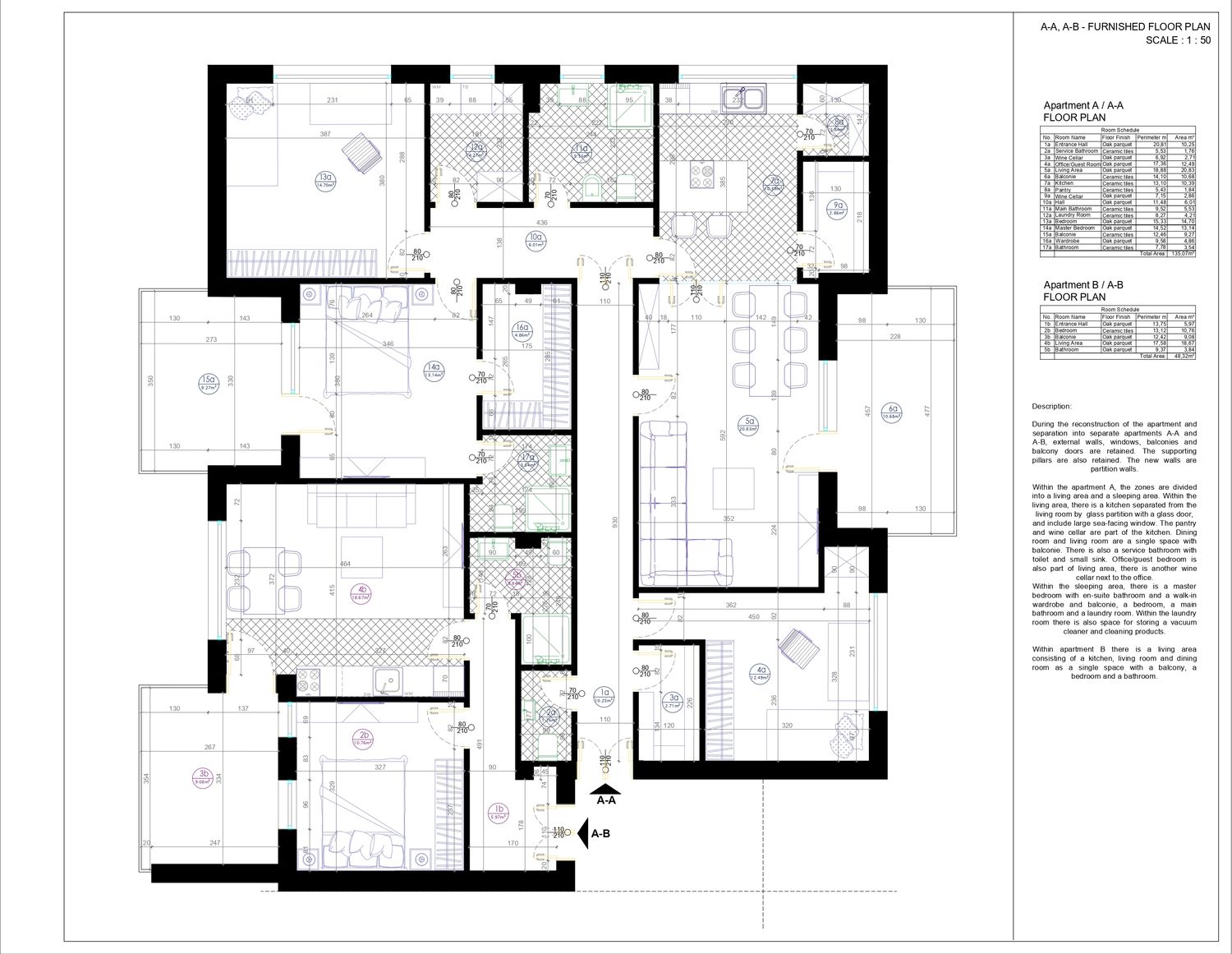
During the reconstruction of the apartment and separation into separate apartments A-A and A-B, external walls, windows, balconies and balcony doors are retained. The supporting pillars are also retained. The new walls are partition walls.
Within the apartment A, the zones are divided into a living area and a sleeping area. Within the living area, there is a kitchen separated from the living room by glass partition with a glass door,
and include large sea-facing window. The pantry and wine cellar are part of the kitchen. Dining room and living room are a single space with balconie. There is also a service bathroom with toilet and small sink. Office/guest bedroom is also part of living area, there is another wine cellar next to the office.
Within the sleeping area, there is a master bedroom with en-suite bathroom and a walk-in wardrobe and balconie, a bedroom, a main bathroom and a laundry room. Within the laundry room there is also space for storing a vacuum cleaner and cleaning products.
Within apartment B there is a living area consisting of a kitchen, living room and dining room as a single space with a balcony, a bedroom and a bathroom.