🔥 CYBER MONDAY 24H: -60% su tutti i prezzi del sito! Solo fino a mezzanotte. Usa il codice CYBERMONDAY25 👉🏼
img

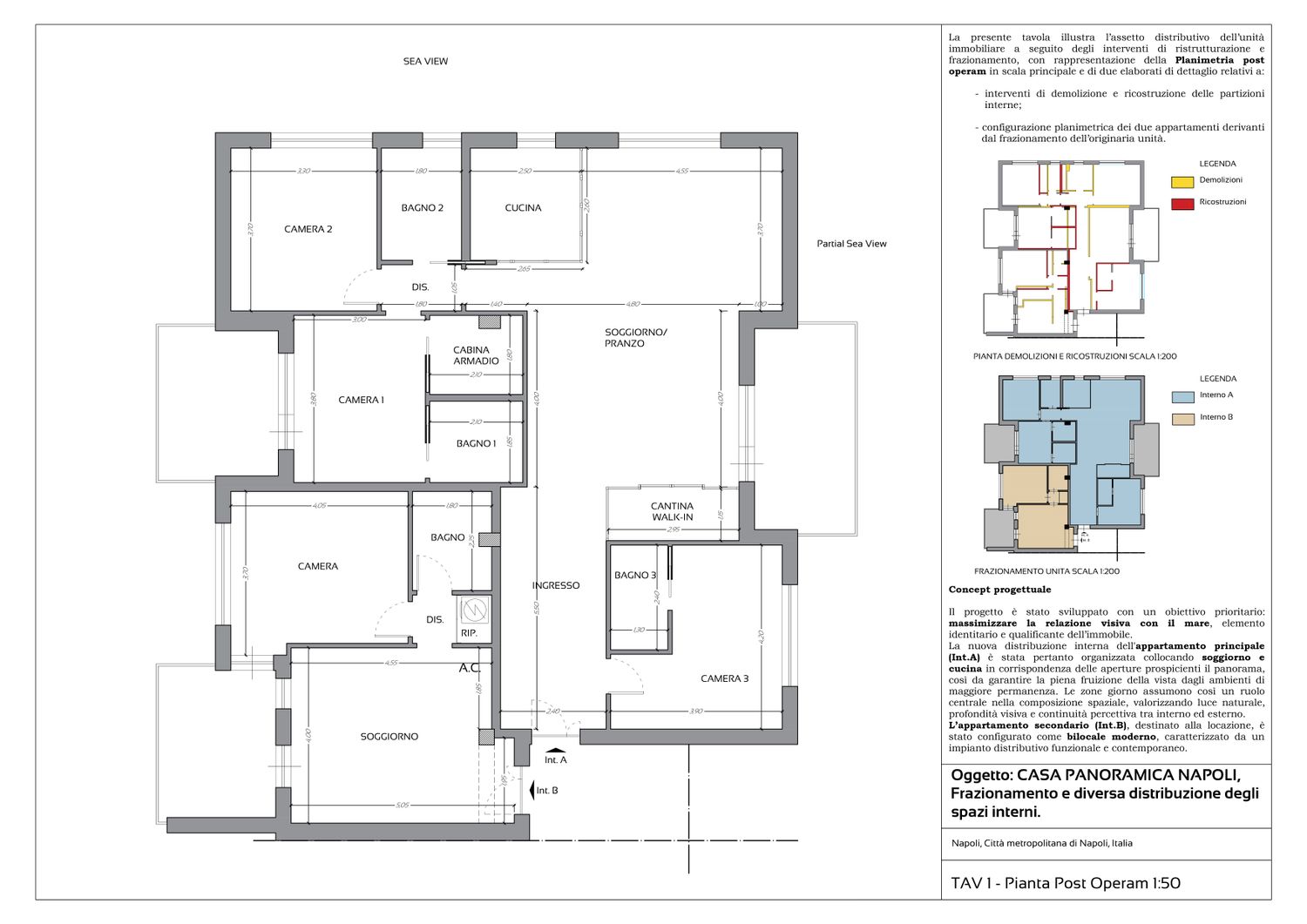
Casa Panoramica Napoli

Naples, Metropolitan City of Naples, Italy

Residenziale - Appartamento

Matteo Fiorentini

  • architect
  • Rome, Italy
Descrizione Progetto

Il progetto “Casa Panoramica a Napoli” nasce dalla volontà di valorizzare in modo deciso l’elemento identitario dell’immobile: l’affaccio verso il mare. L’intervento ha previsto la riorganizzazione completa dell’unità originaria e il suo frazionamento in due appartamenti distinti, con l’obiettivo di coniugare qualità spaziale, efficienza distributiva e massima fruizione del panorama.
Il concept progettuale si fonda su un principio chiaro: collocare gli ambienti di maggiore permanenza dell'appartamento principale, in corrispondenza delle aperture prospicienti il mare. Soggiorno e cucina sono quindi stati disposti lungo il fronte panoramico, garantendo continuità visiva, abbondante illuminazione naturale e una relazione diretta tra spazio interno ed esterno. La zona giorno diventa così il fulcro compositivo dell’abitazione, sia dal punto di vista funzionale sia percettivo.

Appartamento principale
L’appartamento principale è caratterizzato da una distribuzione ampia e articolata, con una netta distinzione tra zona giorno e zona notte, assicurando comfort e privacy.
Elemento distintivo del soggiorno è la presenza di una cantina walk-in, concepita come spazio dedicato alla conservazione e all’esposizione delle bottiglie. La cantina è separata dall’area living mediante una vetrata scorrevole, che consente la continuità visiva tra i due ambienti: dal soggiorno è possibile ammirare le bottiglie disposte sulle rastrelliere, trasformando un ambiente tecnico in elemento architettonico e scenografico integrato nello spazio di rappresentanza.
La cucina è stata progettata come ambiente chiuso ma completamente vetrato, soluzione che permette di contenere rumori e odori senza interrompere la percezione unitaria della zona giorno e della vista panoramica. La trasparenza delle superfici vetrate mantiene la connessione visiva con il soggiorno e con l’esterno. Completa la composizione un piano snack per quattro persone, che funge da elemento di mediazione tra operatività e convivialità, rafforzando la vocazione sociale dell’ambiente.

Appartamento secondario
L’appartamento secondario, destinato alla locazione, è stato sviluppato come un bilocale moderno con soggiorno open space e cucina a vista. L’impianto distributivo fluido consente di ottimizzare le superfici e amplificare la percezione dello spazio, mantenendo elevati standard di comfort. La camera da letto e i servizi sono organizzati in modo razionale, garantendo funzionalità e indipendenza.

Leggi di Più