
Naples, Metropolitan City of Naples, Italy
Residenziale - Appartamento
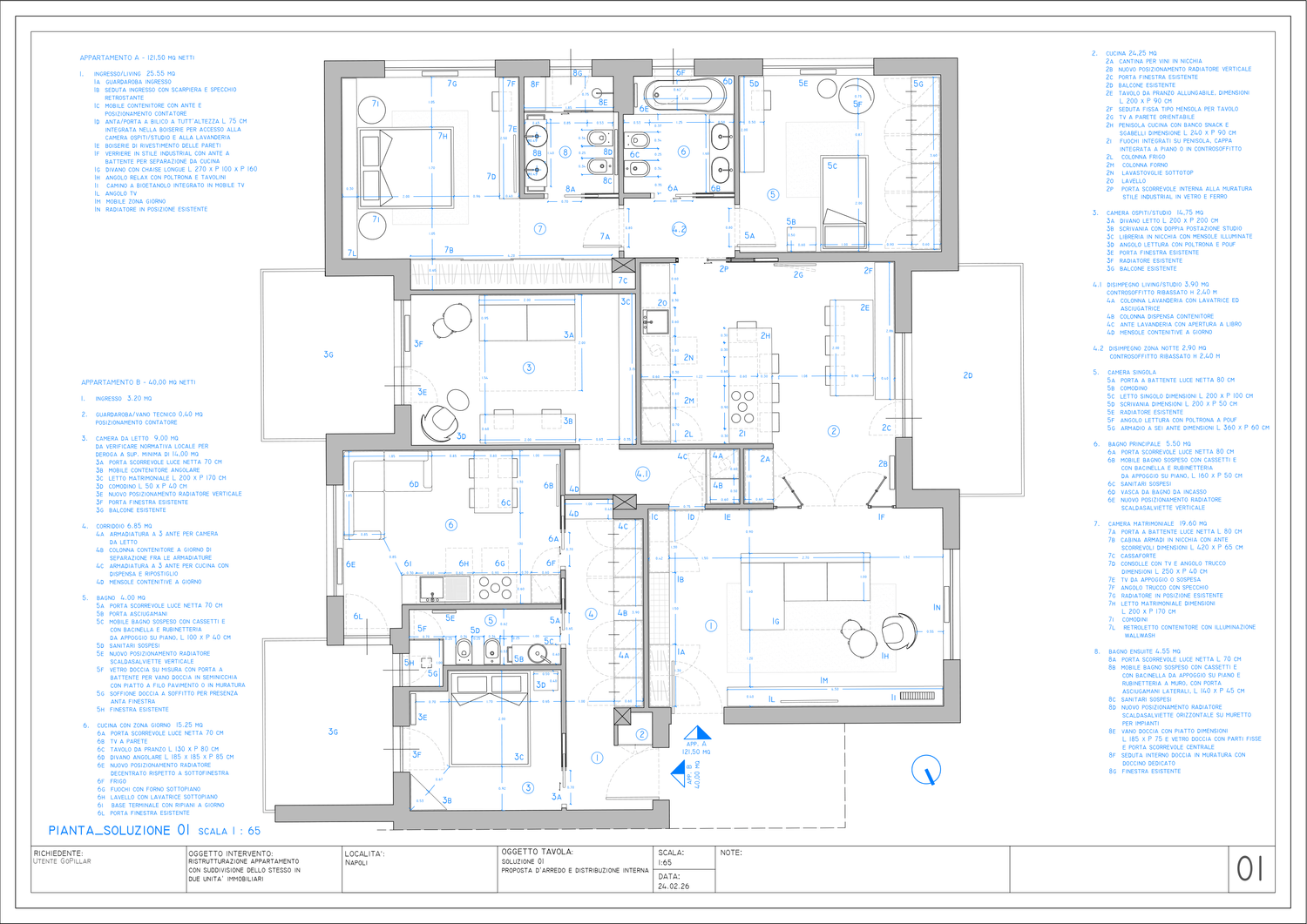
Il progetto proposto prevede due diverse alternative distributive, legate principalmente alla fattibilita' dei nuovi passaggi impiantistici e all' onerosita' economica dell'intervento.
La soluzione 01, relativamente all'appartamento A, per quanto non soddisfi la richiesta della committenza circa il mantenimento della vista mare nella zona living o cucina, viene considerata la meno problematica a livello realizzativo, consentendo nei limiti degli spessori di massetto (da verificare in sede esecutiva) la fattibilita' dei posizionamenti proposti.
Tale soluzione prevede un'ampia zona living all'ingresso dell'appartamento, corredata da mobile su misura (o in alternativa da comporre in base alle preferenze della committenza), con porzione guardaroba, scarpiera con seduta imbottita e specchio retrostante, che favorisce anche la luminosita' dell'ambiente, e parte terminale con ante contenitive, che proseguono sulla parete adiacente in una boiserie con anta/porta a tutt'altezza con apertura a bilico integrata.
Il living si compone inoltre di un grande divano con chaise longue a centro stanza, angolo lettura con poltrona ed un ampio mobile a giorno con tv e camino a bioetanolo, mantenendo la posizione del radiatore come da preesistenza.
L'anta/porta integrata nella boiserie a parete consente l'accesso al primo disimpegno dell'immobile, ove sono collocati l'angolo lavanderia con colonna lavatrice ed asciugatrice, e l'accesso allo studio, che costituisce anche camera per gli ospiti, con scrivania con doppia postazione, angolo lettura, divano letto e grande libreria in muratura con mensole illuminate.
Anche in questo ambiente viene mantenuta la posizione del radiatore come da preesistenza, e la stanza e’ dotata di un primo balcone.
Proseguendo dalla zona living verso il resto dell'appartamento troviamo una verriere in stile industrial, di separazione con la nuova cucina, che allo stato attuale e' stata pensata con ante fisse laterali ed ante centrali con apertura a battente, ma puo' essere convertita con ante scorrevoli; tramite la verriere si accede all'ampia cucina, con affaccio sul balcone con parziale vista mare, ove si propone un ampio tavolo da pranzo allungabile, con seduta fissa costituita da una mensola sottofinestra (con lo spostamento del radiatore in nuova posizione verticale su parete), penisola con fuochi integrati e cappa con aspirazione dal piano di lavoro o dal controsoffitto a discrezione della committenza, e parete cucina con colonne frigo e forno e piano di lavoro con lavello e lavastoviglie. Viene anche prevista una cantina per vini in nicchia.
L'accesso alla zona notte avviene mediante una porta scorrevole interna alla muratura con anta in vetro e ferro dello stesso stile della verriere, che da sul disimpegno su cui affacciano la camera singola, il bagno principale con vasca e mobile con doppia postazione lavello, e la camera matrimoniale, con bagno ensuite con doccia, cabina armadi in nicchia, consolle tv con angolo per il trucco e retroletto contenitore con illuminazione wallwash.
L'appartamento B, previa verifica della normativa con riferimento alle superfici minime degli ambienti e delle eventuali deroghe (presente ad esempio per il Comune di Genova), prevede invece la realizzazione di un corridoio di disimpegno, con capienti armadiature su cui affacciano i tre locali dell'immobile, ovvero una camera da letto (di dimensione singola ma con fattibilita' di posizionamento di letto matrimoniale), con affaccio su balcone, bagno nella posizione preesistente con nuova distribuzione dei sanitari e leggere modifiche murarie, e zona giorno con angolo cottura e living.
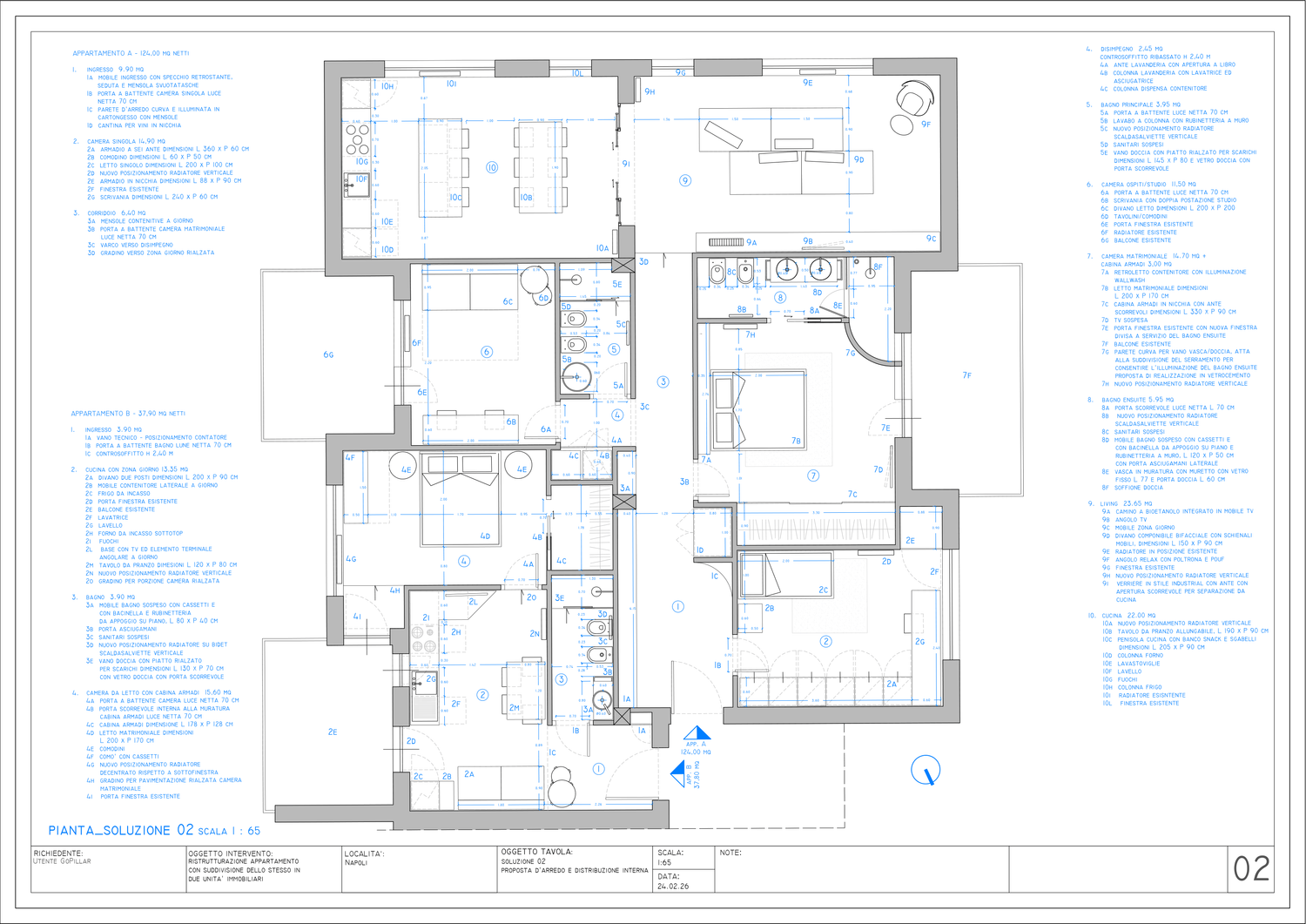
La soluzione 02, sebbene piu' impattante per gli interventi da eseguire, sia a livello edile che impiantistico, risulta essere la piu' aderente alle richieste della committenza per quanto riguarda l'appartamento A, prevedendo lo spostamento dei locali igienici per la creazione di una ampia zona living e cucina nella parte dell'immobile affacciata verso il mare.
Tale proposta prevede la possibilita' (la cui attuabilita' e' subordinata a verifiche di carico sui solai) di rialzare completamente la zona giorno rispetto al resto dell'appartamento, consentendo cosi' lo spostamento dei bagni con passaggi per gli scarichi a terra.
In questo modo la zona notte viene spostata verso l'ingresso dell'appartamento, con un lungo corridoio/disimpegno in cui sono presenti un mobile svuotatasche con specchio e seduta con scarpiera e una nicchia d'arredo realizzata su parete curva, per accompagnare il rastremarsi del corridoio verso la zona giorno e consentire l'inserimento della cantina d’arredo per i vini.
All'ingresso si trova una prima camera singola, con ampia armadiatura ed ulteriore spazio contenitore in nicchia; proseguendo sulla sinistra si apre un piccolo disimpegno con accesso alla lavanderia, al bagno principale cieco, e allo studio/camera per gli ospiti, con scrivania con doppia postazione studio, divano letto ed affaccio sul primo balcone.
Il bagno presenta un lavabo a colonna con specchio retrostante, sanitari sospesi con nuovo termoarredo e vano doccia rialzato per i passaggi degli scarichi verso le colonne condominiali, al di sotto della zona cucina.
La camera matrimoniale, ultimo ambiente sul corridoio prima della zona giorno, e' dotata come da desiderata della committenza di affaccio sul balcone con parziale vista mare, cabina armadi in nicchia e bagno ensuite con grande vano vasca/doccia in muratura realizzato su misura: per garantire l'illuminazione naturale di tale bagno è stata prevista la realizzazione di una parete curva, a ripresa ideale di quella convessa dell'ingresso, che su proposta della scrivente potrebbe essere realizzata in vetrocemento o con una partitura vetrata con finitura satinata.
Al temine del corridoio con un gradino si accede al living, ove sono posizionati grandi divani componibili con schienale mobile, che consentono molteplici possibilita' in base alle necessita' della commitenza (ampia seduta per l'home theater, zona conversazione con vista mare, zona relax per la lettura) e ampio mobile a giorno con tv e camino a bioetanolo.
Tale ambiente e' separato dalla zona cucina mediante verriere con ante scorrevoli esterne alla muratura, nella quale trovano spazio un ampio tavolo da pranzo allungabile, isola con sgabelli e cucina a portale con frigo e forno in colonna, fuochi, lavello e lavastoviglie.
L'appartamento B risulta infine configurato con lo spostamento del bagno ed il rialzo, anche in questa porzione dell'immobile, di una parte della camera matrimoniale per consentire i passaggi a terra degli scarichi.
All'ingresso si trova il nuovo bagno cieco, con vano doccia rialzato, e si prosegue nella zona giorno con divano, colona frigo (previsto da incasso per avere un terminale a giorno di servizio per il divano), tavolo da pranzo da 4 posti e cucina ad angolo con accesso alla camera matrimoniale, parzialmente rialzata come da premessa e con ampia cabina armadi dedicata.
Entrambi i locali mantengono l'accesso al balcone come da preesistenza.