.jpg)
Naples, Metropolitan City of Naples, Italy
Residenziale - Appartamento
Relazione “Casa panoramica Napoli”
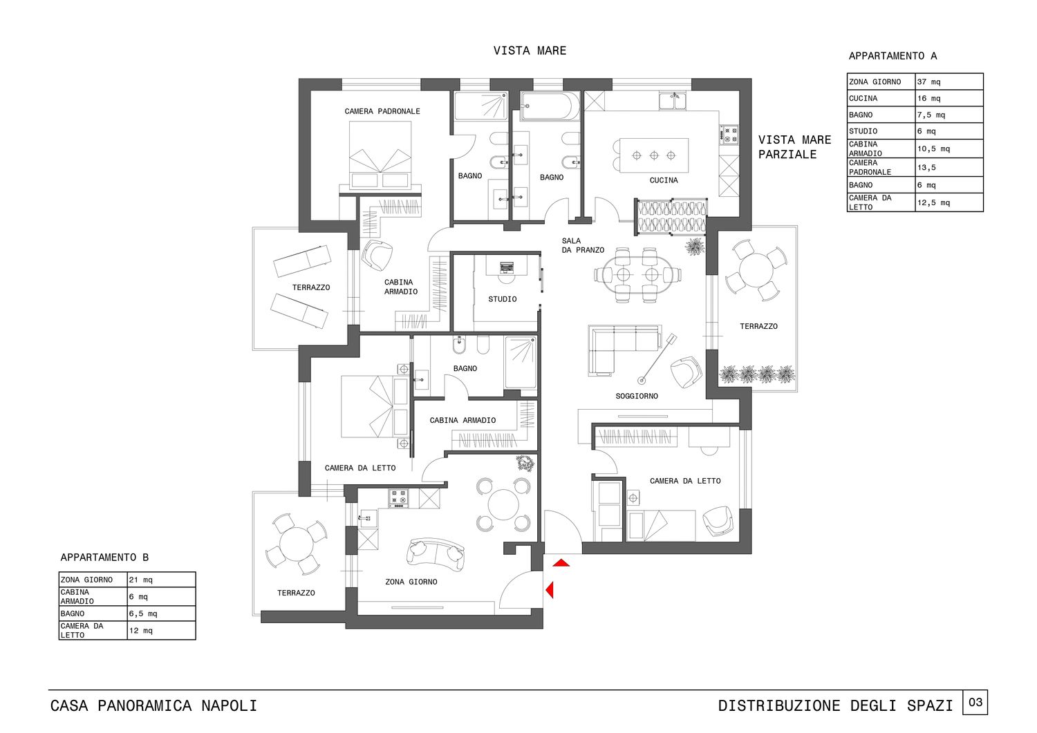
Il progetto “Casa panoramica Napoli” prevede la suddivisione di un appartamento esistente di 188 mq con vista mare, situato al 4° e ultimo piano dell’edificio, in due unità indipendenti.
La prima, che fungerà da abitazione principale, avrà una superficie di circa 120 mq. La seconda, destinata ad affitto a breve o lungo termine, avrà una superficie di circa 60 mq. L’immobile disponendo già di due ingressi separati, ha facilitato la suddivisione.
L’appartamento A, il più grande, sarà adibito a casa principale per un nucleo familiare composto da 3 persone, due adulti ed una bambina di 3 anni. La richiesta fondamentale avanzata della committenza era quella di mantenere la vista mare nella zona giorno.
In nuovo appartamento è stato suddiviso nel modo seguente:
Entrando, sulla immediata destra si trova uno scomparto avente funzione di ripostiglio e lavanderia. Proseguendo lungo il corridoio sempre sulla destra si trova la prima camera da letto singola. Questa, destinata alla figlia, gode degli spazi necessari per la sua crescita, della presenza di una grande finestra per la luce naturale e della privay, per l’avanzamento dell’età, in seguito. La scelta di dividere le due camere da letto deriva da due fattori principali: il primo, la possibilità di avere un’adeguata illuminazione naturale e la seconda per garantire la privacy necessaria ad entrambe le camere da letto.
Continauando lungo il corridoio si apre l’ampia zona giorno. Soggiorno e sala da pranzo si trovano nello stesso ambiente avendo comunque lo spazio necessario per entrambe le funzioni.
Nella prima parte si incontra il soggiorno, con il divano angolare e la televisione da 65”, richiesti dalla committenza.
Sul fondo della stanza invece si trova il tavolo da pranzo per sei persone.
Lo spazio è ampio e ben illuminato grazie alla grande vetrata e all’accesso al terrazzo da cui si gode di una parziale vista mare.
Alle spalle del tavolo da pranzo, trova spazio la piccola ma capiente cantina vini. Questa, chiusa da porte vetrate scorrevoli permette di mettere in comunicazione la zona appena descritta con la cucina.
Quest’ultima, separata da una porta vetrate, ospita un’isola centrale che accoglie anche due sgabelli per un pasto veloce. La cantina vini, anche da questo lato è chiusa da porte vetrate scorrevoli, per poter accedervi più facilmente da entrambi i lati.
La grande finestra che si trova in cucina gode della vista sul mare.
Nella zona giorno, trova spazio anche un piccolo studio, separato dal soggiorno sempre da porte vetrate. Questa scelta è stata adottata per permettere l’ingresso della luce proveniente dalla grande grande finestra del soggiorno, in quanto lo studio, trovandosi al centro dell’appartamento, risulta ceco.
Addentrandosi nella zona notte troviamo subito il bagno principale, anche a servizio degli ospiti, dotato di vasca.
Una porta ci conduce alla master bedroom, composta da ampia cabina armadio, zona notte e bagno privato. Si accede direttamente alla cabina armadio che funge anche da zona di passaggio e permette di mantenere la privacy nella zona notte. Il letto poggia su una parete imbottita.
La master bedroom gode sia della vista mare, la quale può essere ammirata direttamente dal letto, sia del terrazzo privato, al quale si accede attraversando la cabina armadio.
Il secondo appartamento invece, molto più piccolo gode comunque degli spazi necessari per svolgere ogni attività.
Entrando ci troviamo subito nella zona giorno, la quale accoglie il divano con il mobile tv, la cucina attrezzata, e un tavolo da pranzo per quattro persone. L’ambiente è abbastanza spazioso e gode dell’illuminazione proveniente dalla grande finestra attraverso la quale si accede al terrazzo.
La zona notte è divisa in tre. La prima zona ad accoglierci è la cabina armadio, che funge da zona di passaggio per andare in bagno, senza la necessità di passare per la camera da letto.
Il bagno, separato dalla zona letto, ma sempre in camera, ospita una grande doccia. In quanto ceco, la soluzione trovata è la realizzazione di un serramento fisso al lato del letto. Tramite questo, il bagno può godere della luce proveniente dalle due finestre situate nella camera da letto.
Attraverso la camera da letto, si può a sua volta accedere al terrazzo.
Per entrambi gli appartamenti lo stile usato e richiesto è quello moderno industriale con un approccio minimalista. La scelta è ricaduta su materiali come la resina, per il rivestimento dei bagni. Questa, impermeabile, perfetta quindi per i bagni, dona l’effetto industriale desiderato.
Per la scelta del legno, ho optato per un parquet di rovere naturale. Questo, seppur più chiaro rispetto ai legni usati negli ambiente industriali, permette di avvicinarci allo stile coastal, per richiamare comunque in minima parte la geografia del luogo in cui si trovano gli appartamenti.