
27100 Pavia, Province of Pavia, Italy
Residenziale - Appartamento
Descrizione
RICHIESTA PROGETTO CASA
Buongiorno a tutti, mio marito ed io abbiamo da poco comprato casa a Pavia e abbiamo intenzione di rivederla completamente. Come vedrete nella piantina, non ci sono pareti portanti, ma solo due colonne che sono state mascherate.
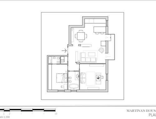
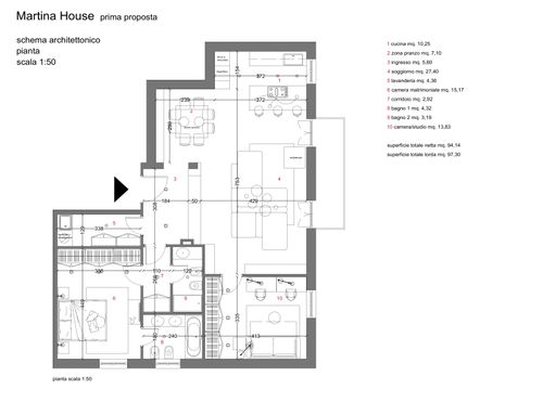
Si tratta di un appartamento di circa 100 mq, con un balcone, due stanze da letto, un bagno, un ripostiglio, una piccola cucina e una grande zona soggiorno/sala da pranzo.
Vogliamo conservare la zona giorno più ampia possibile, con un ingresso ben delimitato (non però una stanza a sé stante). Vorremmo una grande libreria, magari anche passante per delimitare l’ingresso. Vogliamo sicuramente una cucina più grande, magari a vista, con una soluzione per la dispensa, forno e microonde in una unica colonna. Vogliamo però conservare la zona pranzo con il nostro tavolo quadrato da otto posti, perché abbiamo spesso ospiti. È un ricordo di famiglia che vogliamo mantenere. Così come vogliamo tenere il mobile bar nero cubico.
Per quanto riguarda la zona notte, le camere posso essere ridotte all’essenziale. In quella principale (la più piccola delle due) vorremmo mettere un ampio armadio; l’altra camera (la più grande) dovrà essere pensata per avere uno studio, che all'occorrenza possa ospitare un amico o diventare la camera per un bambino.
Il ripostiglio adesso è diviso internamente da una parete in cartongesso. Da una parte c'è la cabina armadio, in cui si entra con una porta scorrevole in camera, dall'altra c'è una dispensa a cui si accede da una porta nella zona dell'ingresso. Questo spazio andrà ripensato perché non vogliamo tenere la cabina armadio e vorremmo mettere la dispensa in cucina.
Vorremmo ricavare due bagni, uno con vasca e uno di servizio con doccia. Ci piace molto anche la soluzione che prevede di creare un piccolo spazio nascosto per lavatrice e asciugatrice.
Indispensabile l’impianto di aria condizionata perché tutta la zona giorno e la cameretta sono esposte a ovest e in estate si scaldano molto.
Dovremo anche cambiare gli infissi del soggiorno e della cucina perché sono molto vecchi.
Ci piace uno stile moderno e pulito. Andrebbe altrettanto bene sia una soluzione più minimal (bianco e nero) che soluzioni più estrose (colori e carte da parati non ci spaventano). Però, allo stesso tempo, ci piacciono anche i pavimenti e le porte stile inizio ‘900 (cementine che creano dei disegni e porte pantografate). Vorremmo che la casa risultasse elegante, ma accogliente.
Per quanto riguarda il pavimento, abbiamo già scelto un grès porcellanato che sarà posato con uno schema che prevede quadrati di 60x60 cm di un color grigio scuro, contornati da liste di 15x60 cm di un grigio più chiaro.
Non siamo fanatici della pulizia e dell’ordine, qualsiasi soluzione dovrà essere comoda e robusta e facile da gestire.
Siamo costretti a tenere il riscaldamento con termosifoni: niente impianto a terra, non abbiamo il budget ;)
A proposito di budget, abbiamo un tetto di spesa di 50.000 Euro, quindi la ristrutturazione dovrà rimanere entro questo limite.
Non ci piacciono i colori: tortora, beige, crema e tutta la gamma del giallo. Non ci piacciono le cose troppo classiche, l’arte povera e lo stile shabby chic.
Speriamo di aver reso bene quali sono le nostre idee e siamo curiosissimi di vedere i vostri progetti. Non esitate a contattarci per qualsiasi chiarimento.
Buon lavoro!
Emma e Emmanuele
Hi everybody, my husband and I have just bought an apartment in Pavia and we'd like to renovate it almost completely. As you can see in the map, there are no load-bearing walls, but only two load-bearing columns.
The apartment is about 100 square meters, with a balcony, two bedrooms, a bathroom, a broom closet, a small kitchen and a large living / dining area.
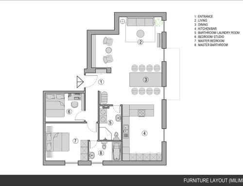
We want to keep the living/dining area as large as possible, with a well-defined entrance (but not a separate room). We would like a large book shelf. We definitely want a larger kitchen, maybe an open plan-kitchen, with a pantry solution and oven and microwave in a single column. We want to keep a dining room with our eight-seater square table, because we often have guests. We also want to keep the black cubic cocktail cabinet.
Regarding the sleeping area, the rooms can be reduced to the essential. We'd like a large closet in the main one. The other room (the largest one) must be a study, which can accommodate a friend or become the room for a child.
We would like to get two bathrooms, the main one with a bathtub, the other with a shower. We also see some houses that had a small hidden space for washing machine and dryer. We like that idea.
The storage room is now divided internally by a plasterboard wall. On one side there is the walk-in closet, where you enter with a sliding door in the room, on the other side there is a pantry which is accessed by a door in the area of the entrance. This space will have to be reconsidered because we do not want to keep the walk-in closet and we would like to put the pantry in the kitchen.
The air conditioning system is essential because the entire living area and the second bedroom are exposed to the west and in summer they get very hot.
We will also have to change the windows in the living room and the kitchen because they are very old.
We like a modern and clean style. A minimal solution (black and white) or fancy solution (colours and wallpapers don't scare us) would be just as good. But, at the same time, we also like the floors and doors in the early '900 style ("cementine" that create designs and pantographed double doors). We would like an elegant, but welcoming house.
For the floor, we have chosen to lay "grès porcellanato" tiles that will be laid with a scheme that provides squares of 60x60 cm of a dark gray color, surrounded by strips of 15x60 cm of a lighter gray.We are not fanatics of cleanliness and order, any solution must be comfortable and robust.
We are forced to keep the heating with radiators: no heating in the floor, the budget, you know ;)
Speaking of the budget, we have a spending ceiling of 50,000 euros, so the restructuring will have to remain within this limit.
What we do not like the colors: taupe, beige, cream and the whole range of yellows. We don't like things that are too classic, “arte povera” and shabby chic.
We hope we clearly explained our ideas, we are very curious to see your projects. Feel free to contact us for any question.
Best wishes,
Emma & Emmanuele