
09045 Quartu Sant'Elena, Metropolitan City of Cagliari, Italy
Residenziale - Zona Giorno/Notte
Descrizione
ENG:
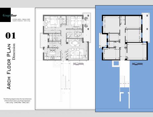
Hello everyone, my request for advice is for a part of the apartment of about 100 square meters in total. I'm interested in enhancing the living area and the small bathroom in a modern key, which at the moment has no shower and which I would like to include. I would like to use the third single bedroom to expand the living area, and at the entrance to open up the area by knocking down part of the right wall, while the one on the left which borders the kitchen should be slightly reduced by creating a slightly wider corner opening, for example by 90cm and full height as I would like to use that wall to insert the kitchen columns. I would also like access to the bathroom to have an angular opening at approximately 45 degrees with respect to the kitchen entrance. I like the walls that divide the rooms, perhaps with niches and architectural or modern designer details, even with a very aesthetic fireplace stove which, however, heats up and can be used. I am sending you some photos of the furniture that I will have to reuse, some such as an antique sideboard and table showcase in the living area, a stylish desk (which I could consider putting in the bedroom) a modern bookcase, as it joins the third single bedroom to the living room I lose what could have been a study with a library. I will also send you some photos of the style that I like, the floor will be in natural/honey oak parquet effect porcelain stoneware. I like the contrasts of colors and paints but on light hazelnut, light gray or antique pink/lilac shades.
SPA:
Hola a todos, mi pedido de consejo es para una parte del apartamento de unos 100 metros cuadrados en total. Me interesa potenciar en clave moderna la zona de estar y el pequeño baño, que de momento no tiene ducha y que me gustaría incluir. El tercer dormitorio individual me gustaría aprovechar para ampliar la zona de estar, y en la entrada abrir el espacio derribando parte de la pared derecha, mientras que la de la izquierda que bordea la cocina debería reducirse un poco creando un Apertura de esquina ligeramente más ancha, por ejemplo, 90 cm y altura completa, ya que me gustaría usar esa pared para insertar las columnas de la cocina. También me gustaría que el acceso al baño tuviera una apertura angular de aproximadamente 45 grados con respecto a la entrada de la cocina. Me gustan las paredes que dividen los ambientes, quizás con nichos y detalles arquitectónicos o de diseño moderno, incluso con una estufa a leña muy estética que, sin embargo, calienta y se puede usar. Te mando algunas fotos de los muebles que tendré que reutilizar, algunos como un aparador antiguo y vitrina de mesa en el living, un escritorio estiloso (que podría considerar poner en el dormitorio) una librería moderna, como une el tercer dormitorio individual al salón pierdo lo que pudo ser un estudio con biblioteca. También os enviaré unas fotos del estilo que me gusta, el suelo será de gres porcelánico efecto parquet natural/roble miel. Me gustan los contrastes de colores y pinturas pero en tonos avellana claro, gris claro o rosa antiguo/lila.
ITA:
Salve a tutti la mia richiesta di consulenza è per una parte dell'appartamento di circa 100 mq totali. Mi interessa valorizzare in chiave moderna l'ambiente giorno e il piccolo bagno che al momento non ha doccia e che vorrei inserire. Vorrei utilizzare la terza camera singola per ampliare la zona giorno, e all'ingresso aprire la zona buttando giù parte del muro destro , mentre quello a sinistra che confina con la cucina va leggermente ridotto creando un apertura angolare un pò più ampia , per esempio di 90cm e tutta altezza poichè vorrei sfruttare quella parete per inserire le colonne della cucina. Anche l'accesso al bagno vorrei avesse un apertura angolare a 45 gradi circa rispetto all'ingresso della cucina. mi piacciono le pareti che dividono gli ambienti , magari con nicchie e particolari architetonici o di designer moderno , anche con una stufa camino molto estetica che però riscaldi e possa essere usata. Vi invio alcune foto di mobili che dovrò riutilizzare alcuni come una vetrina credenza e un tavolo antichi nella zona giorno, uno scrittoio in stile (che potrei valutare di mettere nella camera da letto) una libreria moderna, in quanto unendo la terza camera singola al salone perdo quello che poteva essere uno studio con la libreria . Vi invierò anche alcune foto dello stile che a me piace , il pavimento sarà in gres porcellanato effetto parquet rovere naturale/miele . Mi piacciono i contrasti di colori e pitture ma su tinte nocciola chiaro, grigio chiaro o rosa antico/lilla.