Zibido San Giacomo, MI, Italia
Residenziale - Appartamento
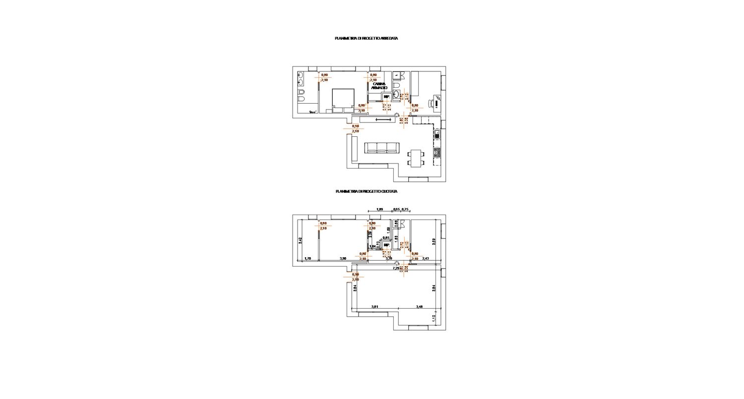
Descrizione del progetto di ridistribuzione degli spazi interni.
I vincoli posti dal committente sono stati rispettati.
Nel corso della nuova progettazione, è stato inoltre previsto lo spostamento del portone d'ingresso di 40 cm , per ottimizzare l'accesso e migliorare la distribuzione interna.
Criteri generali di progetto
L'obiettivo è stato ottimizzare la distribuzione interna garantendo:
la massima funzionalità degli ambienti, con percorsi fluidi e spazi ben proporzionati;
una suddivisione chiara tra zona giorno e zona notte;
l'integrazione dei mobili esistenti di pregio;
Articolazione degli ambienti
La zona giorno si apre in un ampio soggiorno con cucina integrata. La collocazione della cucina è stata studiata in relazione alla posizione delle finestre, così da rendere possibile una composizione lineare.
Sono previsti spazi per frigorifero combinato, colonna forno-vapore e microonde incassato, lavastoviglie a scomparsa e dispensa. Il tavolo da pranzo per 4-6 persone è disposto in continuità visiva con la zona soggiorno, che accoglie il divano Zanotta Parco, la madia Poliform e il mobile TV Poliform con televisore da 50".
La zona notte comprende:
una camera matrimoniale di circa 14 m² con bagno esclusivo e cabina armadio;
una cameretta polifunzionale 9 m², con armadi, scrivania e sedia;
un bagno padronale dotato di doccia walk-in, lavabo, WC e bidet.
È previsto inoltre un bagno di servizio con WC e lavamani, che potrà accogliere in una nicchia con chiusura lavatrice e l'asciugatrice, in colonna per ottimizzare gli spazi e mantenere pulita la zona visiva.
Un piccolo ripostiglio attrezzato ospiterà l'aspirapolvere ei prodotti per la pulizia.