
Zibido San Giacomo, MI, Italia
Residenziale - Appartamento
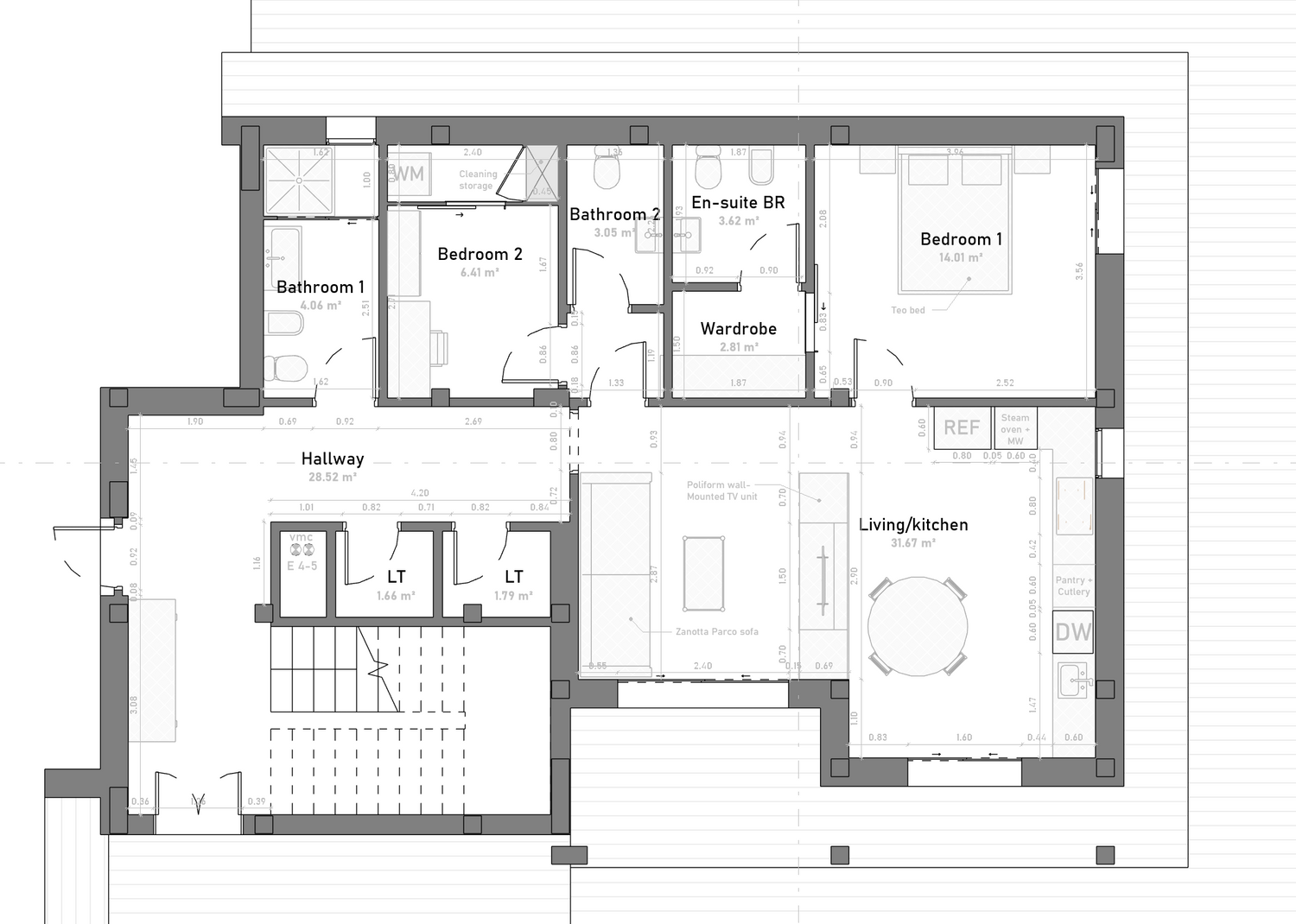
The spatial configuration establishes a clear functional zoning while maintaining visual continuity and access to the garden façades. The living and kitchen areas are positioned along the two largest French doors, maximizing natural light, visual connection, and direct access to the private outdoor space. The kitchen layout also integrates the smaller garden-facing window, allowing natural light and a direct view while working at the Bora cooktop.
The Zanotta sofa, in combination with the Poliform wall-mounted TV unit, forms a subtle spatial threshold between the kitchen and the living area. This arrangement acts as a visual and functional screen, mitigating cooking odors toward the lounge while granting the kitchen a greater sense of enclosure and privacy without compromising openness.
The second bedroom was initially conceived as a 9 m² space; however, with the integration of the laundry niche and dedicated cleaning storage, its area was slightly reduced while preserving full functional performance, including wardrobe and workspace.
The master suite maintains a 14 m² sleeping area, complemented by a walk-in wardrobe and en-suite bathroom. The main bathroom, equipped with toilet, bidet, sink, and walk-in shower, is positioned adjacent to the third French door, ensuring natural light and direct garden access.