πŸ”₯ CYBER MONDAY 24H: -60% su tutti i prezzi del sito! Solo fino a mezzanotte. Usa il codice CYBERMONDAY25 πŸ‘‰πŸΌ
img

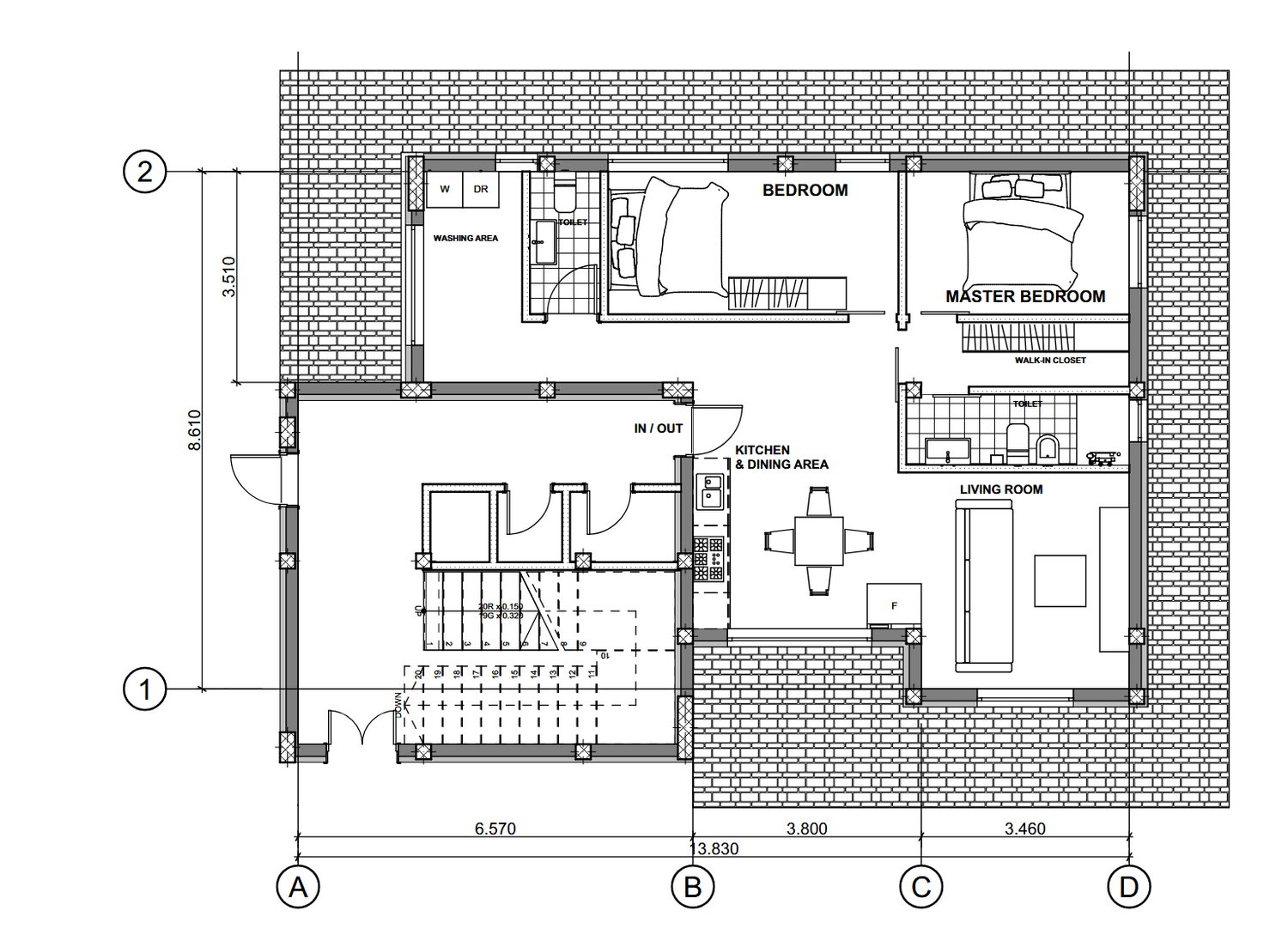
Casa E5 - Giuseppina

Zibido San Giacomo, MI, Italia

Residenziale - Appartamento

Rahmat Holiliy

  • architect
  • Singkawang, Indonesia
Descrizione Progetto

This architectural floor plan presents a refined residential layout designed with clarity, balance, and functional efficiency in mind. The spatial organization carefully separates private and communal zones while maintaining a smooth circulation flow throughout the home. The living room acts as a warm and inviting central space, visually connected to the dining and kitchen areas, creating an open yet structured social environment. Bedrooms are positioned to provide comfort and privacy, enhanced by the use of light natural wood flooring that adds warmth and continuity. Service areas such as the bathrooms and washing space are finished with practical materials, including matte ceramic tiles and exposed concrete textures, reinforcing both durability and visual contrast. Soft neutral tones on the walls create a calm interior atmosphere, while subtle shadows and clean finishes enhance depth without overwhelming the architectural clarity. Overall, the design reflects a modern, minimalist residential concept that prioritizes comfort, practicality, and elegant spatial composition suitable for contemporary living.

Leggi di PiΓΉ