🔥 CYBER MONDAY 24H: -60% su tutti i prezzi del sito! Solo fino a mezzanotte. Usa il codice CYBERMONDAY25 👉🏼
img

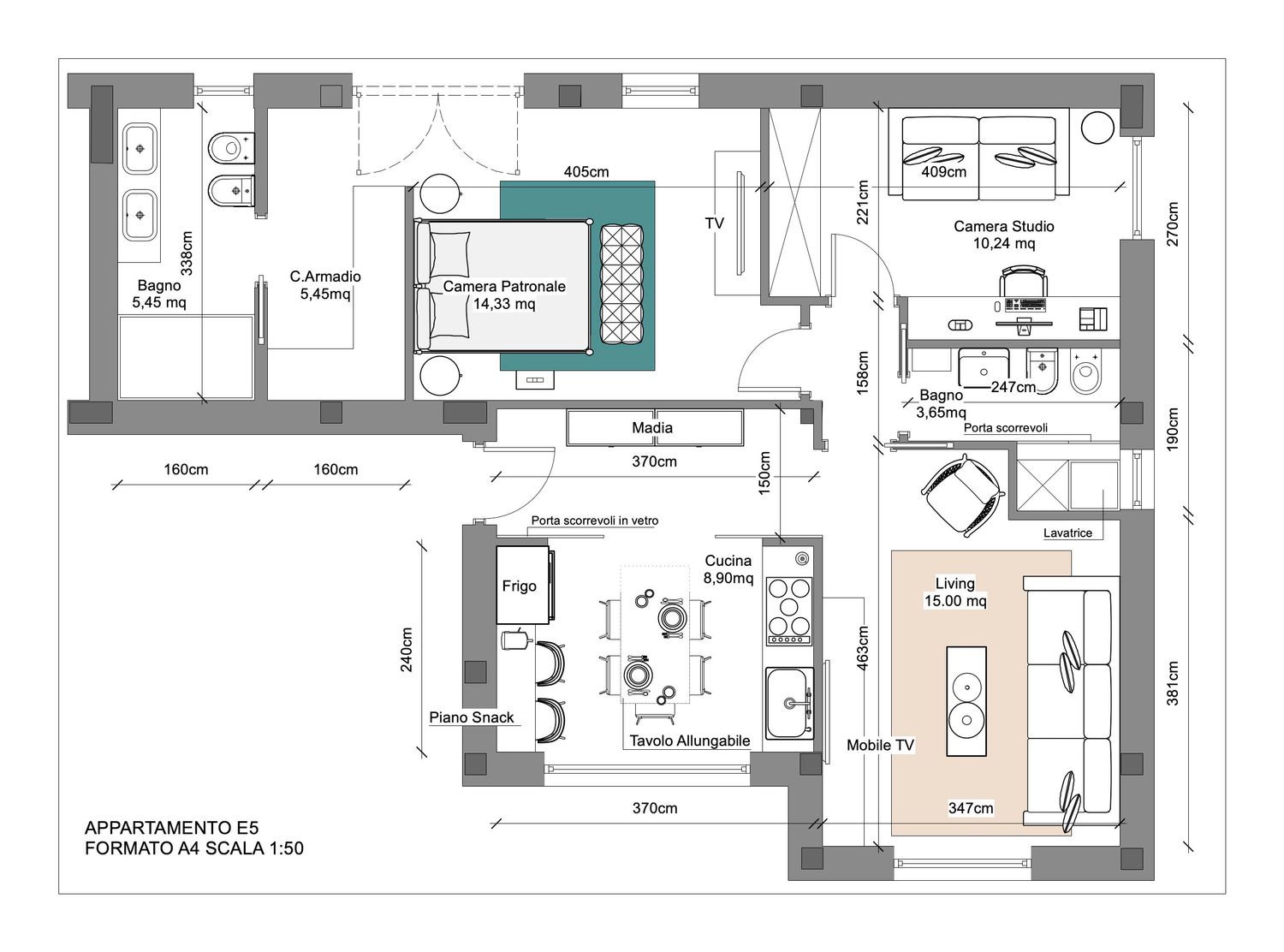
Casa E5 - Giuseppina

Zibido San Giacomo, MI, Italia

Residenziale - Appartamento

Cristina Rivaro

  • interior-designer
  • Genova, Italy
Descrizione Progetto

Buongiorno, sulla base delle sue richieste e dell'esposizione del appartamento ho rivisto gli ambienti in modo da posizionale ska zona notte verso nord mentre la zona giorno a sud. La camera patronale di 14 mq con cabina e bagno in suite; una camera/studio che può benissimo essere utilizzata come camera studio e il secondo bagno con un piccolo angolo lavanderia che può essere mascherata con porta scorrevoli o in alternativa si può optare per un mobile alto per scope e accessori pulizia e lavatrice bassa.
Per quanto riguarda la zona giorno, dando spazio agli arredi già in vostro possesso ho organizzato una cucina che si sviluppa su du lati con piano snack per la colazione vicino alla finestra e un tavolo allungabile per 6/8 persone . la ringrazio

Leggi di Più