🔥 CYBER MONDAY 24H: -60% su tutti i prezzi del sito! Solo fino a mezzanotte. Usa il codice CYBERMONDAY25 👉🏼
home / concorsi / mountain home - alpine vacation retreat 2 steps from the city
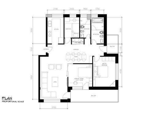
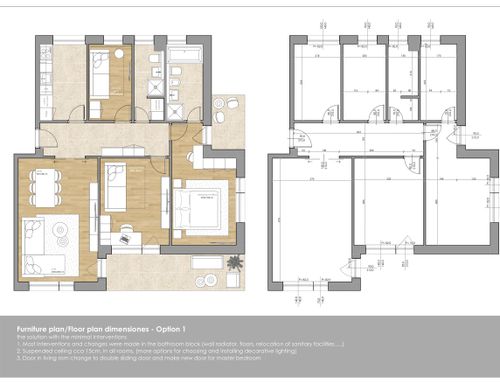
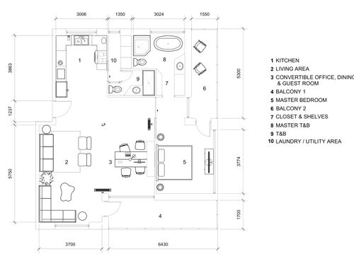
img

mountain home - alpine vacation retreat 2 steps from the city

10052 Bardonecchia, Metropolitan City of Turin, Italy

Residenziale - Appartamento

  • 1° Posto € 504
  • 2° Posto € 168
  • 3° Posto € 84
  • 4° Posto € 42
  • 5° Posto € 42