
Treviso, TV, Italia
Residenziale - Appartamento
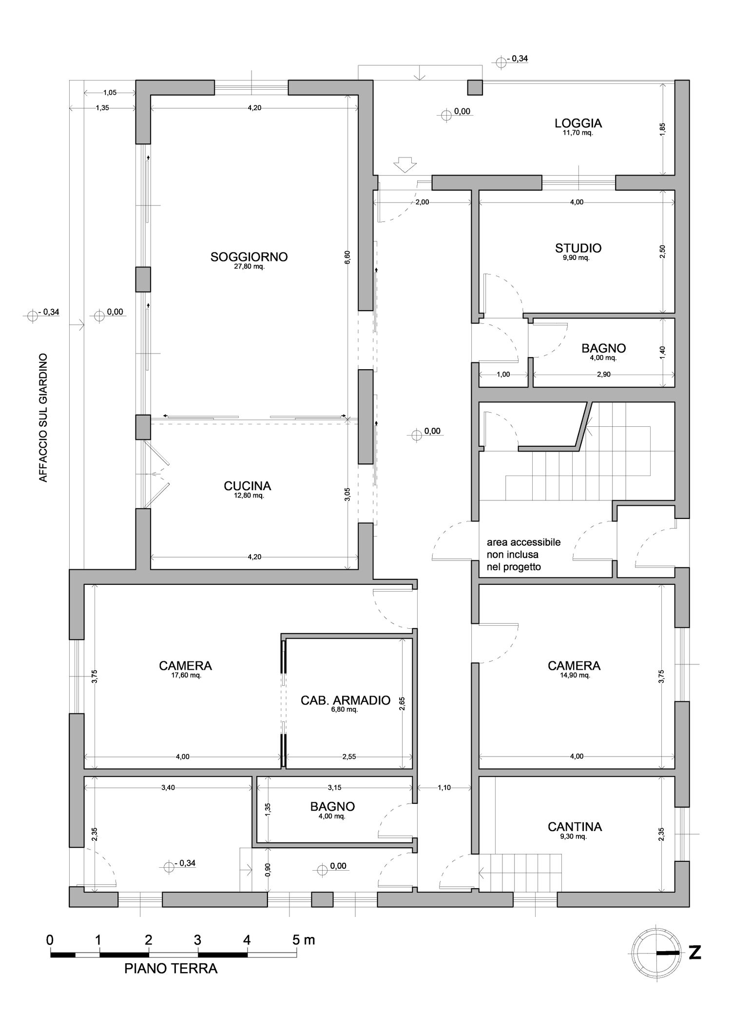
Il nostro progetto propone una ristrutturazione il più possibile attenta a limitare gli interventi strutturali sulle murature portanti, in modo da contenere i costi. Le demolizioni e le modifiche saranno quindi circoscritte allo spostamento di alcune aperture, interne ed esterne, in modo da renderle più funzionali alla nuova distribuzione interna.
La ristrutturazione si articola secondo questi punti:
⦁ L'ampiezza dell'ingresso ci consente di inserire una parete attrezzata, con anta ripostiglio, cappottiera, panca e specchio;
⦁ A destra dell'ingresso viene realizzata la zona giorno, con ampie aperture rivolte verso il giardino: questa contiene il soggiorno-pranzo e la cucina, separabile dal primo tramite una parete con ante scorrevoli vetrate; la cucina è con isola/banco breakfast;
⦁ A sinistra dell'ingresso, nello spazio dell'ex cucina, vengono ricavati il bagno dedicato alla zona giorno ed un piccolo studio arredato con divano letto, per eventuali ospiti;
⦁ Le due camere mantengono la propria posizione; all'interno della matrimoniale, al posto del bagno, viene ricavata un'ampia cabina armadio;
⦁ In una parte del locale lavanderia, il pavimento viene rialzato per portarla al livello dell'abitazione e ricavare il bagno dedicato alla zona notte;
⦁ Il locale lavanderia rimane alla quota più bassa, e viene arredata con una capiente parete attrezzata, che include lavatrice, asciugatrice, area sporco/pulito e asse da stiro pieghevole a scomparsa (cfr. https://www.edilportale.com/prodotti/alf-dafre/mobile-lavanderia/poker-funzione-lavanderia_717300.html#:~:text=Poker%20crea%20al%20suo%20interno,le%20tendenze%20dell'abitare%20contemporaneo.);
⦁ Fuori dalla zona giorno, viene realizzata una piccola area/terrazza con gradini, utile per mettere in comunicazione diretta soggiorno, cucina e giardino.