
Treviso, TV, Italia
Residenziale - Appartamento
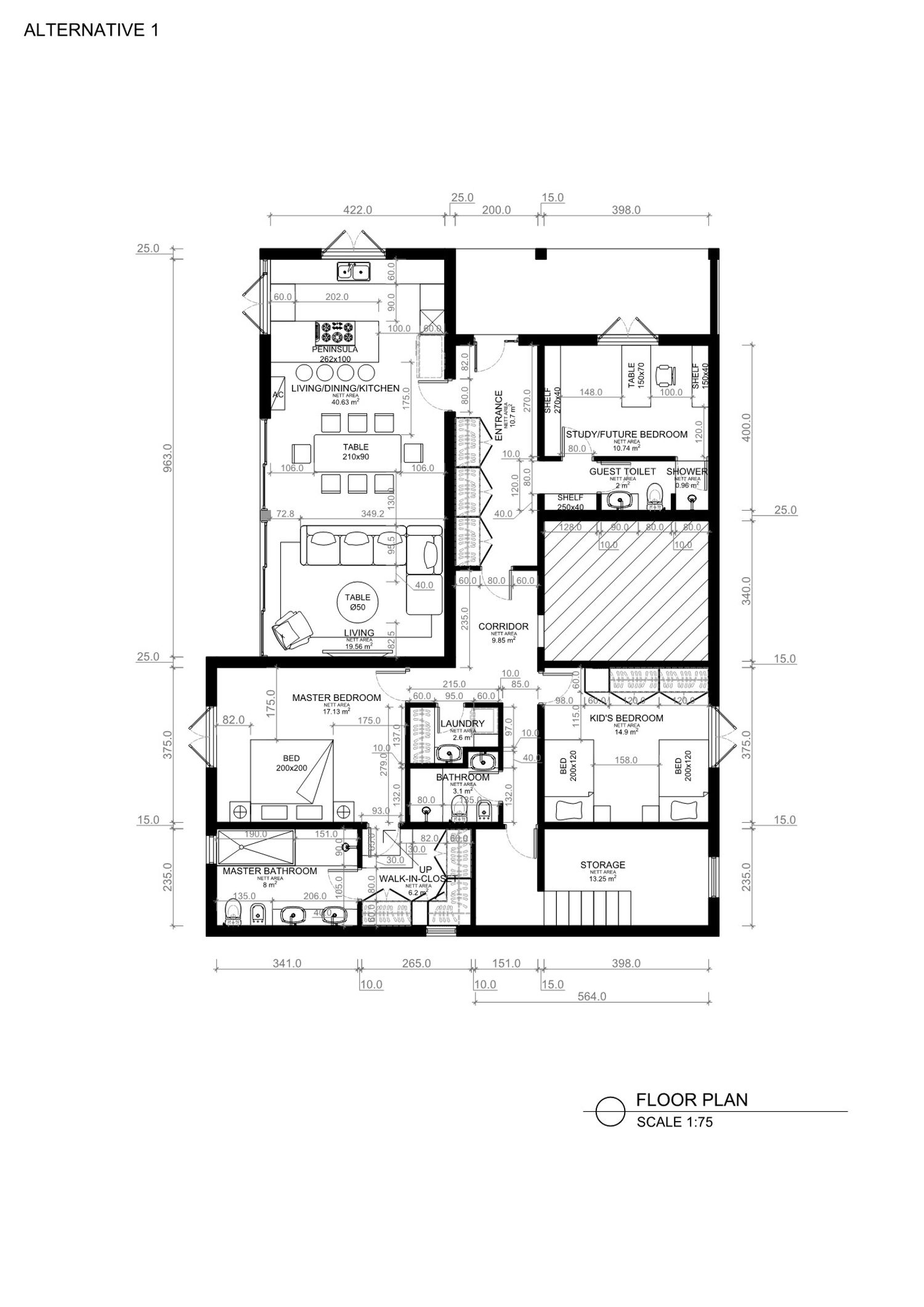
Dear client, the confirmation that it is possible to close the south door on the yellow area and replace it with a window makes it possible to make the entire area the master suite. If you want to keep the floor level, it is still enough room that could comfortably accomodate it. A small opening on the 15 cm structural wall would need to be made to connect the current bedroom to the yellow area. I am trying to make the modification as minor as possible.
There are 2 alternatives of how to arrage the bathrooms and the former kitchen. I made these options, keeping in mind that you would like to have (or maybe already have) more than 1 child. The former kitchen can be a study/office and future kid's bedroom with it's own access to shower and bathroom. The first alternative proposes a separate laundry room at the cost of smaller bathroom, the second alternative proposes a laundry room that is combined with the bigger bathroom.
Either option, I propose a merge to the big room facing south since none of its inner walls are structural, thus giving you a large space where you can seat approximately 17 persons at most. I hope you like it.